Upplýsingar
Verðsaga
Byggt 2005
135,8 m²
6 herb.
2 baðherb.
4 svefnh.
Þvottahús
Sérinngangur
Lýsing
Domusnova fasteignasala hefur fengð glæsilega og bjarta 135,8fm íbúð með stórfenglegu útsýni í einkasölu, íbúðin er efri hæð í fjórbýlishúsi og er við Fellhvarf 10 með útsýni yfir Elliðavatn, útá Reykjanes og uppí Bláfjöll. Göngu- og reiðleiðir skammt undan og útivistarparadísin við Elliðavatn steinsnar í burtu. Róleg gata og skóli og leikskóli skammt undan og stutt í aðra þjónustu og leiðir útúr bænum. Íbúðin er 4-5 herbergja skv. teikningu en hluti stofu hefur verið gerður að herbergi (með afturkræfum hætti) og eru því 4 svefnherbergi í íbúðinni auk borðstofu og stofu/sjónvarprýmis, tveggja baðherbergja, geymslu og þvottahúss. Lofthæð er 2,7m. Örstutt er í alla þjónustu, skóla, leikskóla og frábærar göngu- og reiðleiðir allt í kring. Góð eign á þessum eftirsótta og frábæra stað. Fasteignamat næsta árs er kr. 91.350.000.
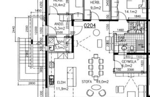
Íbúðin er á efri hæð og gengið upp tröppur vestan á húsinu. Húsið er tveggja hæða og eru 4 íbúðir í því, tvær á jarðhæð og tvær á 2. hæð. Þegar inn er komið er komið í´rúmgott anddyri með skáp. Svefnherbergi með skáp til vinstri og þvottahús með góðri innréttingu til hægri. Inn úr anddyri er gengið inn í alrými sem er gangur, stofa/sjónvarpsstofa, borðstofa og eldhús á hægri hönd. Beint af augum er gangur en úr honum aðgengi í tvö svefnherbergi, gestasalerni og baðherbergi. Hluti stofunnar er nýttur sem svefnherbergi og er frábært útsýni úr því rými, auðvelt er að bæta því við stofuna aftur. Suðurvalir eru 11,6fm og er útsýni þar afar fallegt og útgengi er úr rýminu á svalirnar. Sama fljótandi eikarparketið er á öllum gólfum nema votrýmum, eldhúsi og anddyri.
Alrými stofa, borðstofu og eldhúss er með parketi á gólfum, stórum gluggum sem veitir mikilli birtu inní íbúðina. Nýr ísskiápur og nýr bakarofn og hitaofn í eldhúsi. Þar er gaseldavél með háf yfir og góð innrétting. Útgengt er á stórar svalir (11,6fm) með dásamlegu útsýni yfir Elliðavatn og nærumhverfi.
Hjónaherbergi er innst á gangi, með góðum skápum og er þar horngluggi og er herbergið bjart og notalegt, parket á gólfi.
Annað herbergi er á ganginum, með skáp og parketi á gólfi.
Þriðja herbergið er við anddyrið og er parket á gólfi, þar er fataskápur.
Fjórða herbergið er aðskilið frá stofu með tjaldi og auðvelt að bæta því rými við stofuna aftur, engir skápar og parketið flæðir á milli rýma.
Baðherbergi og gestasalerni eru innst á gangi til móts við hjónaherbergi.
Geymsla er í íbúðinni og gengið í hana innúr stofu, rennihurð opnar og lokar rýminu.
Þvottahús er innaf anddyri með góðri vinnuaðstöðu, vask, tengi fyrir þvottavél og þurrkara í vinnuhæð.
Anddyri er með góðum fataskáp og flísum á gólfi.
Undir stiga úti er lítil geymsla og sameiginleg hjóla- og vagnageymsla er á jarðhæð ásamt tæknirými.
Íbúðinni tilheyra tvö merkt bílastæði á bílaplani og er rafhleðslustaur við þau sem tilheyrir íbúðinni. Lóðin er sameiginleg Fellahvarfi 10-16.
Húsið er hraunað að utan að stærstum hluta. Nýlega var skipt um tengla og ramma í íbúðinni.
Smelltu hér til að fá söluyfirlit
Nánari upplýsingar veita:
Árni Helgason löggiltur fasteignasali / s.663 4290 / arni@domusnova.is
Skrifstofa / s.527-1717 / eignir@domusnova.is
Um skoðunar- og aðgæsluskyldu:
Í lögum um fasteignakaup nr. 40/2002 er kveðið á um ríka skoðunarskyldu kaupenda á fasteignum. DOMUSNOVA fasteignasala bendir væntanlegum kaupendum á að kynna sér vel ástand fasteigna við skoðun og fyrir tilboðsgerð og ef þurfa þykir að leita til sérfræðinga um nánari ástandsskoðun.
Forsendur söluyfirlits:
Söluyfirlit er samið af fasteignasala í samræmi við ákvæði laga nr. 70/2015. Þær upplýsingar sem fram koma í söluyfirliti þessu eru sóttar í opinberar skrár, til seljanda sjálfs og eftir atvikum til húsfélags. Seljandi veitir upplýsingar um eign í samræmi við upplýsingaskyldu laga um fasteignakaup nr. 40/2002, og ábyrgist að þær séu réttar. Fasteignasali sannreynir að þær upplýsingar séu réttar með sjónskoðun á eigninni. Fasteignasali getur ekki fullyrt um ástand og eiginleika þeirra hluta fasteigna sem ekki eru aðgengilegir og sjást ekki berum augum, t.d. lagnir, dren, skólp og þak. Það sama á við um staðhæfingar seljanda eignar um viðhald og einstaka framkvæmdir.
Um ástand einstakra eignarhluta:
Efst í söluyfirlitli þessu er að finna dálka um ástand einstakra hluta eignarinnar. Eftirfarandi lykil er til skýringar á þeirri skráningu:
Nýtt - Eignin er nýbygging.
Upprunalegt - Seljandi veit ekki til þess að byggingarhluti hafi verið endurnýjaður.
Endurnýjað - Byggingarhlutinn hefur verið endurnýjaður í heild sinni á einhverjum tímapunkti.
Endurnýjað að hluta - Hluti byggingarhlutans hefur verið endurnýjaður á einhverjum tímapunkti.
Ekki vitað - Seljandi þekkir ekki til ástands og ekki er hægt að leggja mat á það með sjónskoðun.
Gjöld sem kaupandi þarf að standa straum af vegna kaupanna:Stimpilgjald af kaupsamningi sem er hlutfall af fasteignamati. Stimpilgjald er 0,8% fyrir einstaklinga (0,4% við fyrstu kaup) og 1,6% fyrir lögaðila. Þinglýsingargjald af kaupsamningi, veðskuldabréfum, veðleyfum o.fl. Þinglýsingargjald er kr. 2.700,- fyrir hvert skjal. Lántökugjald lánastofnunar. Um lántökugjald vísast í gjaldskrá viðkomandi lánveitanda. Umsýsluþóknun fasteignasölu skv. gjaldskrá. Ef um nýbyggingu er að ræða greiðir kaupandi skipulagsgjald, 0,3% af brunabótamáti, þegar það er lagt á.
Íbúðin er á efri hæð og gengið upp tröppur vestan á húsinu. Húsið er tveggja hæða og eru 4 íbúðir í því, tvær á jarðhæð og tvær á 2. hæð. Þegar inn er komið er komið í´rúmgott anddyri með skáp. Svefnherbergi með skáp til vinstri og þvottahús með góðri innréttingu til hægri. Inn úr anddyri er gengið inn í alrými sem er gangur, stofa/sjónvarpsstofa, borðstofa og eldhús á hægri hönd. Beint af augum er gangur en úr honum aðgengi í tvö svefnherbergi, gestasalerni og baðherbergi. Hluti stofunnar er nýttur sem svefnherbergi og er frábært útsýni úr því rými, auðvelt er að bæta því við stofuna aftur. Suðurvalir eru 11,6fm og er útsýni þar afar fallegt og útgengi er úr rýminu á svalirnar. Sama fljótandi eikarparketið er á öllum gólfum nema votrýmum, eldhúsi og anddyri.
Alrými stofa, borðstofu og eldhúss er með parketi á gólfum, stórum gluggum sem veitir mikilli birtu inní íbúðina. Nýr ísskiápur og nýr bakarofn og hitaofn í eldhúsi. Þar er gaseldavél með háf yfir og góð innrétting. Útgengt er á stórar svalir (11,6fm) með dásamlegu útsýni yfir Elliðavatn og nærumhverfi.
Hjónaherbergi er innst á gangi, með góðum skápum og er þar horngluggi og er herbergið bjart og notalegt, parket á gólfi.
Annað herbergi er á ganginum, með skáp og parketi á gólfi.
Þriðja herbergið er við anddyrið og er parket á gólfi, þar er fataskápur.
Fjórða herbergið er aðskilið frá stofu með tjaldi og auðvelt að bæta því rými við stofuna aftur, engir skápar og parketið flæðir á milli rýma.
Baðherbergi og gestasalerni eru innst á gangi til móts við hjónaherbergi.
Geymsla er í íbúðinni og gengið í hana innúr stofu, rennihurð opnar og lokar rýminu.
Þvottahús er innaf anddyri með góðri vinnuaðstöðu, vask, tengi fyrir þvottavél og þurrkara í vinnuhæð.
Anddyri er með góðum fataskáp og flísum á gólfi.
Undir stiga úti er lítil geymsla og sameiginleg hjóla- og vagnageymsla er á jarðhæð ásamt tæknirými.
Íbúðinni tilheyra tvö merkt bílastæði á bílaplani og er rafhleðslustaur við þau sem tilheyrir íbúðinni. Lóðin er sameiginleg Fellahvarfi 10-16.
Húsið er hraunað að utan að stærstum hluta. Nýlega var skipt um tengla og ramma í íbúðinni.
Smelltu hér til að fá söluyfirlit
Nánari upplýsingar veita:
Árni Helgason löggiltur fasteignasali / s.663 4290 / arni@domusnova.is
Skrifstofa / s.527-1717 / eignir@domusnova.is
Um skoðunar- og aðgæsluskyldu:
Í lögum um fasteignakaup nr. 40/2002 er kveðið á um ríka skoðunarskyldu kaupenda á fasteignum. DOMUSNOVA fasteignasala bendir væntanlegum kaupendum á að kynna sér vel ástand fasteigna við skoðun og fyrir tilboðsgerð og ef þurfa þykir að leita til sérfræðinga um nánari ástandsskoðun.
Forsendur söluyfirlits:
Söluyfirlit er samið af fasteignasala í samræmi við ákvæði laga nr. 70/2015. Þær upplýsingar sem fram koma í söluyfirliti þessu eru sóttar í opinberar skrár, til seljanda sjálfs og eftir atvikum til húsfélags. Seljandi veitir upplýsingar um eign í samræmi við upplýsingaskyldu laga um fasteignakaup nr. 40/2002, og ábyrgist að þær séu réttar. Fasteignasali sannreynir að þær upplýsingar séu réttar með sjónskoðun á eigninni. Fasteignasali getur ekki fullyrt um ástand og eiginleika þeirra hluta fasteigna sem ekki eru aðgengilegir og sjást ekki berum augum, t.d. lagnir, dren, skólp og þak. Það sama á við um staðhæfingar seljanda eignar um viðhald og einstaka framkvæmdir.
Um ástand einstakra eignarhluta:
Efst í söluyfirlitli þessu er að finna dálka um ástand einstakra hluta eignarinnar. Eftirfarandi lykil er til skýringar á þeirri skráningu:
Nýtt - Eignin er nýbygging.
Upprunalegt - Seljandi veit ekki til þess að byggingarhluti hafi verið endurnýjaður.
Endurnýjað - Byggingarhlutinn hefur verið endurnýjaður í heild sinni á einhverjum tímapunkti.
Endurnýjað að hluta - Hluti byggingarhlutans hefur verið endurnýjaður á einhverjum tímapunkti.
Ekki vitað - Seljandi þekkir ekki til ástands og ekki er hægt að leggja mat á það með sjónskoðun.
Gjöld sem kaupandi þarf að standa straum af vegna kaupanna:
Ár
Fasteignamat
Kaupverð
Stærð
Fermetraverð
8. jún. 2023
76.750.000 kr.
97.500.000 kr.
135.8 m²
717.968 kr.
25. sep. 2014
34.250.000 kr.
39.700.000 kr.
135.8 m²
292.342 kr.
14. jún. 2013
32.600.000 kr.
39.500.000 kr.
135.8 m²
290.869 kr.
Byggt á upplýsingum úr Þjóðskrá Íslands frá 2006-2025