Upplýsingar
Byggt 1997
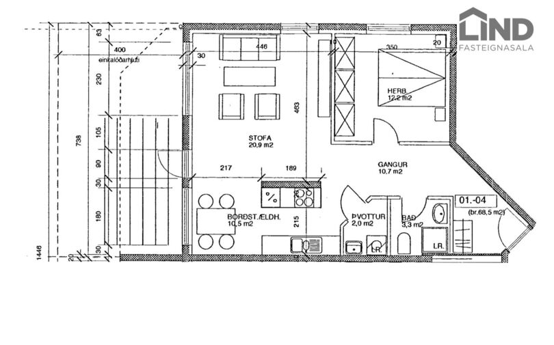
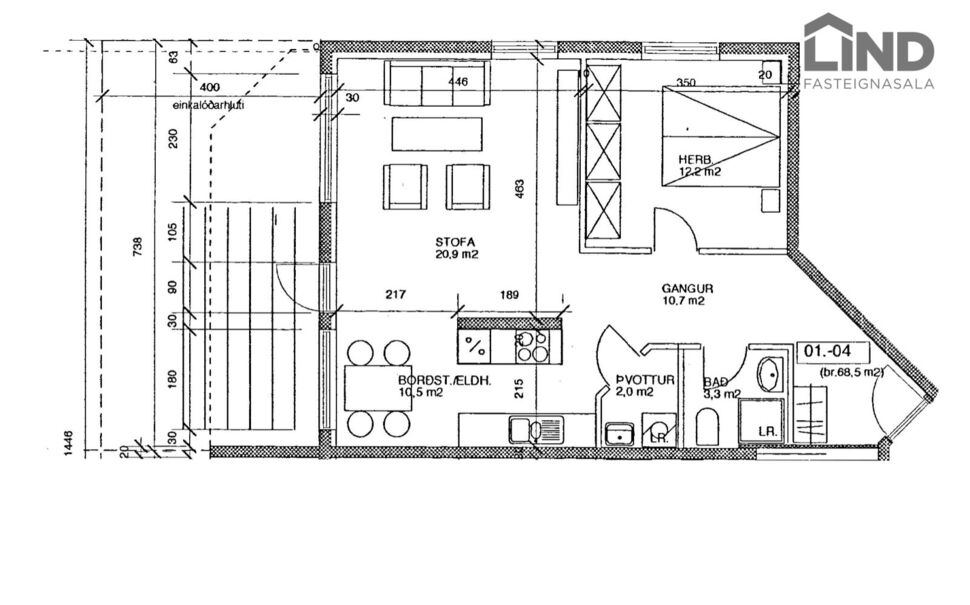
73,9 m²
2 herb.
1 baðherb.
1 svefnh.
Þvottahús
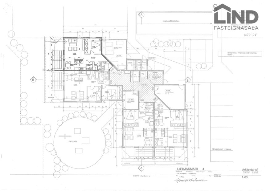
Sameiginl. inngangur
Lyfta
Laus strax
Opið hús: 19. október 2025
kl. 16:00
til 16:20
Opið hús að Lækjasmári 4 í Kópavogi (íbúð 104) klukkan 16:00 á sunnudaginn.
Lýsing
LIND fasteignasala og Þórey Ólafsdóttir, löggiltur fasteignasali, kynna í einkasölu bjarta og rúmgóða 2 herbergja íbúð á 1. hæð með afgirtri verönd, sérafnotarétti í vinsælu fjölbýlishúsi með lyftu við Lækjasmára 4 í Kópavogi. Frábær staðsetning þar sem stutt er í alla þjónustu, skóla og leikskóla. EIGNIN ER LAUS TIL AFHENDIGNAR VIÐ UNDIRRITUN KAUPSAMNINGS.
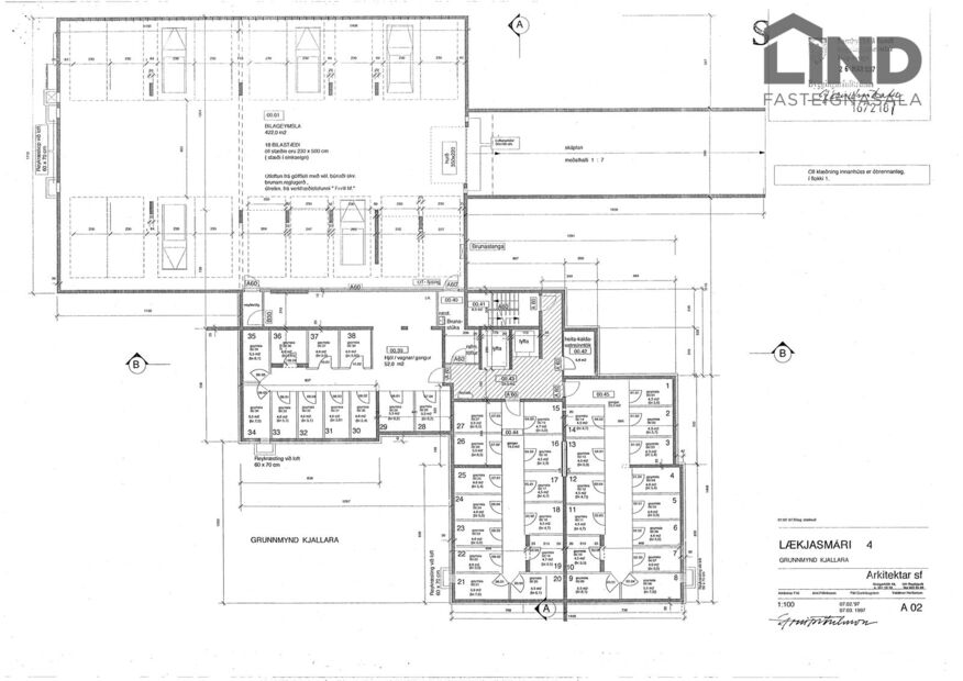
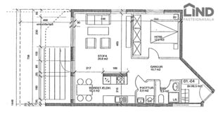
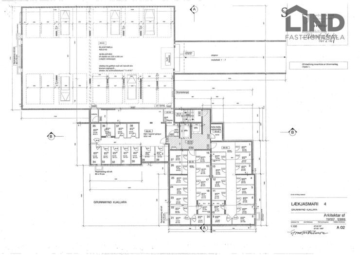
Birt stærð eignar er 73.9 fm samkvæmt Þjóðskrá Íslands, þar af er 5,4 fm geymsla í kjallara.
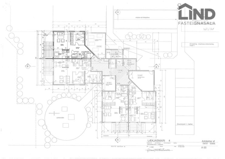
Eignin skiptist í eldhús, stofu, svefnherbergi, baðherbergi, þvottahús innan íbúðar og geymslu í kjallara en henni fylgir hlutdeild í sameign, sameiginlegri hjól- og vagnageymslu.
SMELLTU HÉR TIL AÐ FÁ SENT SÖLUYFIRLIT en annars veiti ég allar frekari upplýsingar í síma 663 2300 eða thorey@fastlind.is
Nánari lýsing:
Forstofa með fataskáp, flísar á gólfi.
Eldhús með innréttingu, bakaraofni, keramik helluborði og góðum borðkrók, parket á gólfi.
Stofa og borðstofa, bjart opið rými inn í eldhús, parket á gólfi og útgengt á hellulagða vesturverönd.
Svefnherbergi með fataskáp, parket á gólfi.
Baðherbergi, flísalagt að mestu með innréttingu, salerni og sturtu.
Þvottahús, innan íbúðar, með hillum og vask, málað gólf.
Geymsla (5,4 fm) með hillum og málað gólf.
Húsið hefur fengið gott og reglulegt viðhald, næg bílastæði á sameiginlegri lóð og snyrtileg sameign.
Húsgjöld eignar eru 27.311 kr. á mánuði og þá er innifalinn allur almennur rekstur húsfélags, allur hiti, rafmagn í sameign, þrif sameignar, húseigendatrygging, framkvæmdasjóður og þjónustukaup vegna reksturs húsfélags.
Nánari upplýsingar veitir Þórey Ólafsdóttir, löggiltur fasteignasali / B.Sc. í viðskiptafræði í síma 663 2300 eða gegnum thorey@fastlind.is
Á heimasíðunni minni www.thorey.is má skoða umsagnir ánægðra viðskiptavina og kynna sér þjónustuna mína.
Allir kaupendur okkar fá Vildarkort Lindar. Með því að framvísa kortinu færð þú 30% afslátt hjá samstarfsaðilum: Húsgagnahöllin, S. Helgason, Flugger litir, Húsasmiðjan, Z brautir og gluggatjöld, Vídd, Parki, Betra bak, Dorma og Sýn.
Birt stærð eignar er 73.9 fm samkvæmt Þjóðskrá Íslands, þar af er 5,4 fm geymsla í kjallara.
Eignin skiptist í eldhús, stofu, svefnherbergi, baðherbergi, þvottahús innan íbúðar og geymslu í kjallara en henni fylgir hlutdeild í sameign, sameiginlegri hjól- og vagnageymslu.
SMELLTU HÉR TIL AÐ FÁ SENT SÖLUYFIRLIT en annars veiti ég allar frekari upplýsingar í síma 663 2300 eða thorey@fastlind.is
Nánari lýsing:
Forstofa með fataskáp, flísar á gólfi.
Eldhús með innréttingu, bakaraofni, keramik helluborði og góðum borðkrók, parket á gólfi.
Stofa og borðstofa, bjart opið rými inn í eldhús, parket á gólfi og útgengt á hellulagða vesturverönd.
Svefnherbergi með fataskáp, parket á gólfi.
Baðherbergi, flísalagt að mestu með innréttingu, salerni og sturtu.
Þvottahús, innan íbúðar, með hillum og vask, málað gólf.
Geymsla (5,4 fm) með hillum og málað gólf.
Húsið hefur fengið gott og reglulegt viðhald, næg bílastæði á sameiginlegri lóð og snyrtileg sameign.
Húsgjöld eignar eru 27.311 kr. á mánuði og þá er innifalinn allur almennur rekstur húsfélags, allur hiti, rafmagn í sameign, þrif sameignar, húseigendatrygging, framkvæmdasjóður og þjónustukaup vegna reksturs húsfélags.
Nánari upplýsingar veitir Þórey Ólafsdóttir, löggiltur fasteignasali / B.Sc. í viðskiptafræði í síma 663 2300 eða gegnum thorey@fastlind.is
Á heimasíðunni minni www.thorey.is má skoða umsagnir ánægðra viðskiptavina og kynna sér þjónustuna mína.
Allir kaupendur okkar fá Vildarkort Lindar. Með því að framvísa kortinu færð þú 30% afslátt hjá samstarfsaðilum: Húsgagnahöllin, S. Helgason, Flugger litir, Húsasmiðjan, Z brautir og gluggatjöld, Vídd, Parki, Betra bak, Dorma og Sýn.