Upplýsingar
Verðsaga
Byggt 2006
104,1 m²
3 herb.
1 baðherb.
2 svefnh.
Þvottahús
Sérinngangur
Hjólastólaaðgengi
Opið hús: 28. október 2025
kl. 17:00
til 17:30
Opið hús í Hallakri 1, 210 Garðabær, íbúð 103, þriðjudaginn 28. október milli kl. 17:00 og kl. 17:30. Verið velkomin.
Lýsing
Valhöll kynnir rúmgóða og vel skipulagða þriggja herbergja íbúð í litlu fjölbýli á vinsælum stað í Akrahverfinu í Garðabæ. Íbúðin er á jarðhæð með sérinngangi, timburverönd, sérþvottahúsi og fínu útsýni. Dýrahald leyfilegt.
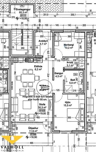
Íbúðin er á jarðhæð og er gengið inn í hana beint frá bílastæði hússins. Aðgengi er því mjög gott. Allar hurðir eru 90 cm á breidd og hentar því vel fyrir fatlaða.
Eignin er skráð 104,1 fm á stærð og skiptist í 93,3 fm íbúð og 10,8 fm geymslu í kjallara. Góð timburverönd í suður út frá stofu. Quartz borðplötur í eldhúsi.
Fasteignamat ársins 2026 er fyrirhugað 83.750.000 kr.
Nánari lýsing:
Inngangur: sérinngangur beint frá bílastæði.
Anddyri: með fataskáp og flísum á gólfi.
Eldhús: með eikarinnréttingu og eyju, quartz borðplötur, niðurlímdur vaskur, tengi fyrir uppþvottavél og parket á gólfi.
Stofa / borðstofa: í opnu alrými með eldhúsi með parketi á gólfi útgengi á timburverönd með fínu útsýni.
Svefnherbergi I: rúmgott 15,5 fm herbergi með fataskápum og parketi á gólfi.
Svefnherbergi II: 10,2 fm herbergi með fataskáp og parketi á gólfi.
Baðherbergi: með innréttngu undir vaski og snyrtiskáp fyrir ofan, sturtuklefa, upphengdu salerni og flísum á gólfi og veggjum.
Þvottahús: innan íbúðar með innréttingu með skolvaski, skápum, þvottasnúrum og flísum á gólfi.
Geymsla: 10,8 fm sérgeymsla í kjallara.
Hjóla- og vagnageymsla: sameiginleg í kjallara.
Hússjóður:
Í dag eru hússjóðsgjöldin 13.267 kr. á mánuði.
Nánari upplýsingar veitir:
Snorri Björn Sturluson fasteignasali / lögfræðingur í síma 699-4407 eða í tölvupósti á netfangið snorribs@valholl.is
Gjöld sem kaupandi þarf að standa straum af vegna kaupanna:
Stimpilgjald af kaupsamningi sem er hlutfall af fasteignamati. Stimpilgjald er 0,8% fyrir einstaklinga (0,4% við fyrstu kaup) og 1,6% fyrir lögaðila.
Þinglýsingargjald af kaupsamningi, veðskuldabréfum, veðleyfum o.fl. Þinglýsingargjald er kr. 2.700,- fyrir hvert skjal.
Lántökugjald lánastofnunar. Um lántökugjald vísast í gjaldskrá viðkomandi lánveitanda.
Umsýsluþóknun fasteignasölu skv. gjaldskrá.
Ef um nýbyggingu er að ræða greiðir kaupandi skipulagsgjald, 0,3% af brunabótamáti, þegar það er lagt á.
Íbúðin er á jarðhæð og er gengið inn í hana beint frá bílastæði hússins. Aðgengi er því mjög gott. Allar hurðir eru 90 cm á breidd og hentar því vel fyrir fatlaða.
Eignin er skráð 104,1 fm á stærð og skiptist í 93,3 fm íbúð og 10,8 fm geymslu í kjallara. Góð timburverönd í suður út frá stofu. Quartz borðplötur í eldhúsi.
Fasteignamat ársins 2026 er fyrirhugað 83.750.000 kr.
Nánari lýsing:
Inngangur: sérinngangur beint frá bílastæði.
Anddyri: með fataskáp og flísum á gólfi.
Eldhús: með eikarinnréttingu og eyju, quartz borðplötur, niðurlímdur vaskur, tengi fyrir uppþvottavél og parket á gólfi.
Stofa / borðstofa: í opnu alrými með eldhúsi með parketi á gólfi útgengi á timburverönd með fínu útsýni.
Svefnherbergi I: rúmgott 15,5 fm herbergi með fataskápum og parketi á gólfi.
Svefnherbergi II: 10,2 fm herbergi með fataskáp og parketi á gólfi.
Baðherbergi: með innréttngu undir vaski og snyrtiskáp fyrir ofan, sturtuklefa, upphengdu salerni og flísum á gólfi og veggjum.
Þvottahús: innan íbúðar með innréttingu með skolvaski, skápum, þvottasnúrum og flísum á gólfi.
Geymsla: 10,8 fm sérgeymsla í kjallara.
Hjóla- og vagnageymsla: sameiginleg í kjallara.
Hússjóður:
Í dag eru hússjóðsgjöldin 13.267 kr. á mánuði.
Nánari upplýsingar veitir:
Snorri Björn Sturluson fasteignasali / lögfræðingur í síma 699-4407 eða í tölvupósti á netfangið snorribs@valholl.is
Gjöld sem kaupandi þarf að standa straum af vegna kaupanna:
Stimpilgjald af kaupsamningi sem er hlutfall af fasteignamati. Stimpilgjald er 0,8% fyrir einstaklinga (0,4% við fyrstu kaup) og 1,6% fyrir lögaðila.
Þinglýsingargjald af kaupsamningi, veðskuldabréfum, veðleyfum o.fl. Þinglýsingargjald er kr. 2.700,- fyrir hvert skjal.
Lántökugjald lánastofnunar. Um lántökugjald vísast í gjaldskrá viðkomandi lánveitanda.
Umsýsluþóknun fasteignasölu skv. gjaldskrá.
Ef um nýbyggingu er að ræða greiðir kaupandi skipulagsgjald, 0,3% af brunabótamáti, þegar það er lagt á.
Ár
Fasteignamat
Kaupverð
Stærð
Fermetraverð
8. júl. 2014
25.700.000 kr.
34.900.000 kr.
104.1 m²
335.255 kr.
3. maí. 2007
24.270.000 kr.
24.900.000 kr.
104.1 m²
239.193 kr.
Byggt á upplýsingum úr Þjóðskrá Íslands frá 2006-2025