Löggiltir fasteignasalar innan Félags fasteignasala:
Ásdís Ósk Valsdóttir
Guðbrandur Jónasson
Ásdís Rósa Ásgeirsdóttir
Böðvar Reynisson
Sveinbjörn Rosén Guðlaugsson
Jóhanna K. Gustavsdóttir
Pétur Ísfeld Jónsson
Anna Laufey Sigurðardóttir
Vista
svg

311

svg

269  Skoðendur

svg

Skráð  15. okt. 2025

fjölbýlishús

Melabraut 16

170 Seltjarnarnes

74.700.000 kr.

897.837 þ.kr./m2
Fasteignanúmer

F2067741

Fasteignamat

65.350.000 kr.

Brunabótamat

40.250.000 kr.

Áhvílandi

0 kr.

Arion banki – Reikna lán
Upplýsingar
Verðsaga
svg
Byggt 1959
svg
83,2 m²
svg
3 herb.
svg
1 baðherb.
svg
2 svefnh.
svg
Garður
svg
Sameiginl. inngangur
Opið hús: 28. október 2025 kl. 17:00 til 17:30

Lýsing

*** SÖLUSÝNING: MELABRAUT 16 ÍBÚÐ 101, ÞRIÐJUDAGINN 28. OKTÓBER 2025 KL 17:00-17:30. JÓHANNA KRISTÍN GÚSTAVSDÓTTIR, LÖGGILTUR FASTEIGNASALI VERÐUR Á STAÐNUM OG VEITIR NÁNARI UPPLÝSINGAR Í SÍMA: 6989470 EÐA EMAIL: JOHANNA@HUSASKJOL.IS ***

SMELLTU HÉR TIL AÐ BÓKA TÍMA Í SÖLUSÝNINGU OG SÆKJA UPPLÝSINGABÆKLING FYRIR Melabraut 16 Íbúð 101.

Ef þú átt eftir að selja þá er mikilvægt er að vera með staðfest verðmat á þinni eign til að geta sent inn raunhæf tilboð og verið samkeppnishæfur við aðra kaupendur. Smelltu hér til að bóka sölumat á þinni eign.
EF ÞÚ BÓKAR ÞIG FÆRÐU TILKYNNINGU EF SÖLUSÝNING FELLUR NIÐUR.
IF YOU BOOK A SHOWING, YOU WILL BE NOTIFIED IF IT’S CANCELLED.


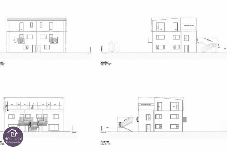
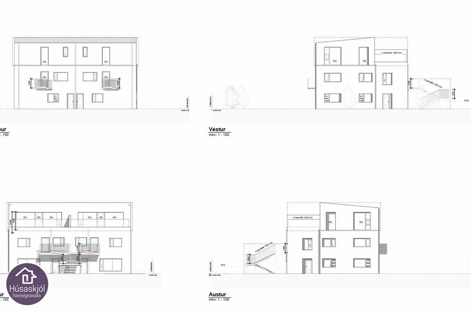
Húsaskjól og Jóhanna Gustavsdóttir löggiltur fasteignasali kynna í einkasölu: fallega og mikið endurnýjaða 3ja herbergja íbúð á jarðhæð í fjórbýlishúsi á vinsælum stað á Seltjarnarnesinu á Melabraut 16 með sameiginlegum inngangi efri hæðar. Fyrir liggur teikning og samþykki frá Seltjarnarnesbæ um að setja stiga framan á húsið og þá myndu allar íbúðirnar fá sérinngang og þessi íbúð stækka um 7,3 fm. Lóðin er stór og gróin og á hver íbúð í húsinu eitt bílastæði fyrir framan húsið og skv eignaskiptayfirlýsingu eiga neðri hæðirnar sérafnotareit sem leyfilegt er að stúka af.

Íbúðin er skráð 83,2 fm að stærð og skiptist í tvö svefnherbergi, eldhús, rúmgóða stofu og borðstofu, baðherbergi, geymslu með tengi fyrir þvottavél og sameiginlegu anddyri.með efri hæð.


FASTEIGNAMAT 2026 VERÐUR: 72.150.000 KR.


Nánari upplýsingar veitir Jóhanna Gustavsdóttir löggiltur fasteignasali í síma 698-9470, netfang: johanna@husaskjol.is

Nánari lýsing á eign:
Gólfefni íbúðarinnar eru flísar og ljóst harðparket.
Komið er inn í forstofu með sameiginlegum inngangi efri hæðar. Þaðan er gengið inn í rúmgott hol og á hægri hönd er geymsla sem er með tengi fyrir þvottavél. Stofa/borðstofa er rúmgott og bjart rými með stórum gluggum á tvo vegu. Eldhús er með endurnýjaðri hvítri eldhúsinnréttingu sem er með efri og neðri skápum, góðu skápaplássi/skúffum og eyju sem hægt er að sitja við. Endurnýjuð eldhústæki, ofn í vinnuhæð, keramikhelluborð og háfur. Einnig eru vaskur og blöndunartæki endurnýjuð. Búið er að taka loftið niður sem er með innbyggðri óbeinni lýsingu.Baðherbergið er endurnýjað með flísum í hólf og gólf, dökk baðinnrétting með skúffum og innbyggðum vaski, upphengt klósett, baðkar með sturtu og gleri, handklæðaofn. Óbein innbyggð lýsing í lofti. Svefnherbergin eru tvö og eru þau bæði rúmgóð með ljósu harðparketi á gólfum og eru rúmgóðir ljósir fataskápar úr við í hjónaherberginu.
í sameign hússins er lagnainntaksrými og þvottahús. Lóðin er stór og gróin og í bakgarðinum er góður timburskúr með timburverönd sem er notaður sem geymsla fyrir hjól,vagna og grill fyrir íbúa hússins.



Hér er um að ræða mikið endurnýjaða og bjarta 3ja herbergja íbúð á jarðhæð í fjórbýlishúsi á barnvænum og rólegum stað á Seltjarnarnesinu þar sem stutt er í leik-og grunnskóla, tónlistarskóla, þróttaaðstöðu fyrir börn og fullorðna, sundlaug, golfvöll. fallegar göngu-og hjólaleiðir meðfram sjónum og fjöruna. Einnig er ýmis verslun og þjónusta í næsta nágrenni eins og matvöruverslun, kaffihús og ísbúð á Eiðistorgi og veitingastaðurinn Ráðagerði við Gróttu svo eitthvað sé nefnt.

Allar nánari upplýsingar veitir Jóhanna Gustavsdóttir löggiltur fasteignasali í síma 698-9470, netfang: johanna@husaskjol.is


Fylgdu Húsaskjóli á TikTok


Húsaskjól fasteignasala - af því að þín fasteign skiptir máli

Ertu í söluhugleiðingum? Smelltu hér til að fá frítt verðmat
Ertu að leita að sambærilegri íbúð? Smelltu hér til að skrá þig á kaupóskalistann okkar

Fylgdu okkur á Instagram
Skoðaðu hvað okkar viðskiptavinir hafa um Skoðaðu hvað okkar viðskiptavinir hafa um okkur að segja
Hvað er í gangi á fasteignamarkaðnum? Skráðu þig á Fréttaskot Húsaskjóls

Húsaskjól advices potential buyers who do not speak or read icelandic to have a translator present when they view and sign an offer, sales agreement and other documents relating to the purchase of the property.​


Um skoðunar- og aðgæsluskyldu:
Í lögum um fasteignakaup nr. 40/2002 er kveðið á um ríka skoðunarskyldu kaupenda á fasteignum. Vill Húsaskjól fasteignasala því skora á væntanlega kaupendur að kynna sér vel ástand fasteigna fyrir kauptilboðsgerð og leita til þar til bærra sérfræðinga um nánari skoðun.


Forsendur söluyfirlits:
Söluyfirlit er samið af fasteignasala í samræmi við ákvæði laga nr. 70/2015. Þær upplýsingar sem fram koma í söluyfirliti þessu eru sóttar í opinberar skrár, til seljanda sjálfs og eftir atvikum til húsfélags. Seljandi veitir upplýsingar um eign í samræmi við upplýsingaskyldu laga um fasteignakaup nr. 40/2002. Fasteignasali sannreynir að þær upplýsingar séu réttar með sjónskoðun á eigninni.
Fasteignasali getur ekki fullyrt um ástand og eiginleika þeirra hluta fasteigna sem ekki eru aðgengilegir og sjást ekki berum augum, t.d. lagnir, dren, skólp og þak.


Gjöld sem kaupandi þarf að standa straum af vegna kaupanna:
1. Stimpilgjald af kaupsamningi, fyrstu kaup (0,4%), almenn kaup (0,8%), lögaðilar (1,6%) af heildarfasteignamati.
2. Þinglýsingargjald af kaupsamningi, veðskuldabréfi, mögulegu veðleyfi o.fl. - kr. 2.700 af hverju skjali.
3. Lántökugjald lánastofnunar - fast gjald. Sjá vefsíðu viðkomandi lánastofnanna
4. Umsýslugjald til fasteignasölu skv. kauptilboði


Húsaskjól fasteignasala

Húsaskjól fasteignasala

Hlíðasmára 2, 201 Kópavogur
Ár
Fasteignamat
Kaupverð
Stærð
Fermetraverð
7. okt. 2024
63.200.000 kr.
72.000.000 kr.
10101 m²
7.128 kr.
8. mar. 2018
37.100.000 kr.
41.500.000 kr.
83.2 m²
498.798 kr.
22. feb. 2008
19.540.000 kr.
20.500.000 kr.
83.2 m²
246.394 kr.
Byggt á upplýsingum úr Þjóðskrá Íslands frá 2006-2025
Húsaskjól fasteignasala

Húsaskjól fasteignasala

Hlíðasmára 2, 201 Kópavogur