Upplýsingar
Verðsaga
Byggt 1990
82,8 m²
2 herb.
1 baðherb.
1 svefnh.
Þvottahús
Bílskúr
Sameiginl. inngangur
Hjólastólaaðgengi
Lyfta
Heldri borgarar
Lýsing
Hreiðar Levý lögg. fasteignasali og Betri Stofan Fasteignasala kynna fallega og vel skipulagða 2ja herbergja íbúð á 3. hæð í vinsælu lyftuhúsi stað fyrir 60 ára og eldri á besta stað í miðbæ Reykjavíkur. Eigninni fylgir sérmerkt bílastæði í bílakjallara. Húsið er hannað af arkitektinum Ingimari H. Ingimarssyni. Íbúðin hefur öll verið uppgerð á undanförnum árum á vandaðan hátt. Á lóðinni eru samtals 39 sameiginleg bílastæði, 23 á fyrir sunnan hús og 16 fyrir norðan hús. Búið er að setja upp 2 sér bílastæði með rafmagnshleðslustöð á bílaplani fyrir norðan hús. Sameiginleg bílaþvottastöð fyrir íbúa er í bílakjallara. Sameignin er vegleg og snyrtileg. Húsvörður er í húsinu. Íbúar hafa möguleik á að leigja samkomusal sem er í húsinu gegn hóflegu gjaldi. Þá er á jarðhæð sameiginleg aðstaða með heitum potti og sauna fyrir íbúa. Í bílakjallara er sameiginleg aðstaða fyrir íbúa til þess að þrífa bíla. Vel skipulögð og góð eign í vinsælu hverfi sem er afar hentug fyrir eldri borgara sem vilja þægindi, nálægð við fjölbreytta þjónustu, félagsskap og skapandi umhverfi í sínum aldurshópi.
Fasteignamat fyrir árið 2026 skv. HMS er 71.550.000kr
Bókið skoðun hjá Hreiðari Levý, lögg. fasteignasala í síma 661-6021 eða hreidar@betristofan.is
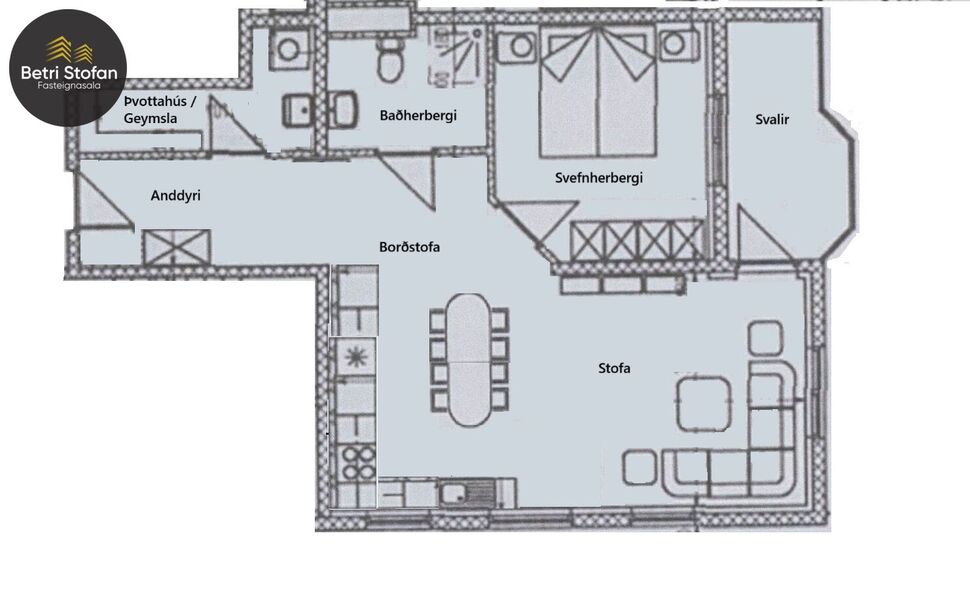
Eignin skiptist í anddyri með fataskáp, þvottahús / geymslu, baðherbergi með sturtu, rúmgott svefnherbergi með góðu skápaplássi, alrými með samliggjandi eldhúsi og stofu, yfirbyggðar svalir og sérmerkt bílastæði í upphituðum bílakjallara.
Frábær staðsetning í miðbæ Reykjavíkur þar sem menningin blómstrar og það að hafa leikhús, kvikmyndahús og tónlistarhús í göngufæri býður upp á einstaka og fjölbreytta afþreyingar möguleika. Fjölmörg kaffihús og fjölbreyttir veitingastaðir eru í nánasta nágrenni ásamt fjölbreyttri þjónustu og verslun. Það eru afar eftirsóknarverð lífsgæði að vera með alla þessa fjölbreyttu verslun, þjónustu og afþreyingarmöguleika í nokkra metra göngufjarlægð frá heimili sínu.
Lóð: Eignarlóð, 3.230 m². Lóðin er í óskiptri en hlutfallslegri sameign séreignanna og skiptist eftir hlutfallstölum.
Nánari lýsing:
Forstofa: Komið er inní forstofu með fataskáp og snögum.
Baðherbergi: Flísalagt í hólf og gólf. Baðinnrétting með háum skáp, neðri skúffum, vask og efri speglaskáp. Sturtuklefi, salerni og upphengd handklæðaslá.
Þvottahús / Geymsla: Innaf íbúð. Aðstaða fyrir þvottavél og þurrkara. Upphengdar hillur.
Herbergi: Rúmgott með góðu skápaplássi.
Borðstofa: Staðsett bakvið eldhúsvegg. Í góðri tengingu við stofu og eldhús.
Stofa: Björt og falleg stofa með gluggum í 3 áttir. Góð tenging við eldhús. Útgengt út á yfirbyggðar svalir.
Eldhús: Innrétting með efri og neðri skápum, flísar á milli skápa. Gott skápa og vinnupláss. Ofn er innbyggður í innréttingu í vinnuhæð, vaskur og helluborð. Aðstaða fyrir tvöfalldan ísskáp og uppþvottavél. Léttur veggur er á milli borðstofu og eldhúss sem möguleiki er á að fjarlægja og stækka þar með alrýmið með samliggjandi stofu, borðstofu og eldhús.
Bílastæði: Sérmerkt bílastæði í upphituðum bílakjallara merkt nr. 50 fylgir eigninni.
Geymsla í sameign: Hægt er að leigja auka geymslu gegn hóflegu gjaldi.
Sameign: Vegleg og snyrtileg sameign. Eignin á hlutdeild í húsvarðaríbúð, rúmgóðum samkomusalur þar sem eigendum í húsinu gefst kostur að halda veislur gegn vægu gjaldi ásamt spa aðstöðu á jarðhæð með heitum potti, sauna klefa, tveimur sturtum og búningsklefum sem íbúar hafa aðgang að gjaldfrjálst. Sameiginleg bílastæði norðan- og sunnanmegin við húsið og inngangar í húsið. Eitt húsfélag er rekið yrir Skúlagötu 40, 40a og 40b og er í þjónustu hjá Eignaumsjón.
Eign með fastanúmerið 200-3487 ásamt öllu því sem eigninni fylgir, þar með talið tilheyrandi lóðaréttindum.
Samkvæmt skráningu Þjóðskrár Íslands er birt flatarmál eignarinnar 82,8 fm. Íbúðin er 67,8 fm og bílastæði í lokuðum bílakjallara er 15,0 fm. Til viðbótar eru 6,5 fm svalir með svalalokun sem ekki er inn í birtri fermetratölu eignar.
Vitatorg samfélagshús er í aðeins 5 mínútna göngufjarlægð. Vitatorg býður upp á opið félags- og tómstundastarf auk fjölda námskeiða. Félagsstarfið er vettvangur samfunda, mannlegra samskipta og skapandi athafna. Sem dæmi má nefna: vinnustofur, hagleikssmiðjur, listasmiðjur og klúbbastarf ýmiskonar, spilamennsku, skoðunarferðir, dans og leikfimi. Síðan eru ýmsir viðburðir árlegir og/eða tilfallandi, svo sem grillveisla, haustfagnaður og þorrablót. Lögð er áhersla á sjálfsprottið félagsstarf og hver og einn getur haft áhrif á þróun þess. Á Vitatorgi við Lindargötu er hádegisverður í boði kl. 11:30 til 12:30 alla daga ársins, líka um helgar og hátíðisdaga. Á virkum dögum er einnig síðdegiskaffi milli kl. 14:30–15:30. Einnig er fótaaðgerðarstofa og hársnyrtistofa á staðnum.
Vitatorg - Lindargata 59
Íbúðina má aðeins selja félagsmönnum í Félagi eldri borgara, sem eru 60 ára eða eldri.
Nánari upplýsingar veitir Hreiðar Levý Guðmundsson löggiltur fasteignasali, í síma 661- 6021, tölvupóstur hreidar@betristofan.is.
Fasteignamat fyrir árið 2026 skv. HMS er 71.550.000kr
Bókið skoðun hjá Hreiðari Levý, lögg. fasteignasala í síma 661-6021 eða hreidar@betristofan.is
Eignin skiptist í anddyri með fataskáp, þvottahús / geymslu, baðherbergi með sturtu, rúmgott svefnherbergi með góðu skápaplássi, alrými með samliggjandi eldhúsi og stofu, yfirbyggðar svalir og sérmerkt bílastæði í upphituðum bílakjallara.
Frábær staðsetning í miðbæ Reykjavíkur þar sem menningin blómstrar og það að hafa leikhús, kvikmyndahús og tónlistarhús í göngufæri býður upp á einstaka og fjölbreytta afþreyingar möguleika. Fjölmörg kaffihús og fjölbreyttir veitingastaðir eru í nánasta nágrenni ásamt fjölbreyttri þjónustu og verslun. Það eru afar eftirsóknarverð lífsgæði að vera með alla þessa fjölbreyttu verslun, þjónustu og afþreyingarmöguleika í nokkra metra göngufjarlægð frá heimili sínu.
Lóð: Eignarlóð, 3.230 m². Lóðin er í óskiptri en hlutfallslegri sameign séreignanna og skiptist eftir hlutfallstölum.
Nánari lýsing:
Forstofa: Komið er inní forstofu með fataskáp og snögum.
Baðherbergi: Flísalagt í hólf og gólf. Baðinnrétting með háum skáp, neðri skúffum, vask og efri speglaskáp. Sturtuklefi, salerni og upphengd handklæðaslá.
Þvottahús / Geymsla: Innaf íbúð. Aðstaða fyrir þvottavél og þurrkara. Upphengdar hillur.
Herbergi: Rúmgott með góðu skápaplássi.
Borðstofa: Staðsett bakvið eldhúsvegg. Í góðri tengingu við stofu og eldhús.
Stofa: Björt og falleg stofa með gluggum í 3 áttir. Góð tenging við eldhús. Útgengt út á yfirbyggðar svalir.
Eldhús: Innrétting með efri og neðri skápum, flísar á milli skápa. Gott skápa og vinnupláss. Ofn er innbyggður í innréttingu í vinnuhæð, vaskur og helluborð. Aðstaða fyrir tvöfalldan ísskáp og uppþvottavél. Léttur veggur er á milli borðstofu og eldhúss sem möguleiki er á að fjarlægja og stækka þar með alrýmið með samliggjandi stofu, borðstofu og eldhús.
Bílastæði: Sérmerkt bílastæði í upphituðum bílakjallara merkt nr. 50 fylgir eigninni.
Geymsla í sameign: Hægt er að leigja auka geymslu gegn hóflegu gjaldi.
Sameign: Vegleg og snyrtileg sameign. Eignin á hlutdeild í húsvarðaríbúð, rúmgóðum samkomusalur þar sem eigendum í húsinu gefst kostur að halda veislur gegn vægu gjaldi ásamt spa aðstöðu á jarðhæð með heitum potti, sauna klefa, tveimur sturtum og búningsklefum sem íbúar hafa aðgang að gjaldfrjálst. Sameiginleg bílastæði norðan- og sunnanmegin við húsið og inngangar í húsið. Eitt húsfélag er rekið yrir Skúlagötu 40, 40a og 40b og er í þjónustu hjá Eignaumsjón.
Eign með fastanúmerið 200-3487 ásamt öllu því sem eigninni fylgir, þar með talið tilheyrandi lóðaréttindum.
Samkvæmt skráningu Þjóðskrár Íslands er birt flatarmál eignarinnar 82,8 fm. Íbúðin er 67,8 fm og bílastæði í lokuðum bílakjallara er 15,0 fm. Til viðbótar eru 6,5 fm svalir með svalalokun sem ekki er inn í birtri fermetratölu eignar.
Vitatorg samfélagshús er í aðeins 5 mínútna göngufjarlægð. Vitatorg býður upp á opið félags- og tómstundastarf auk fjölda námskeiða. Félagsstarfið er vettvangur samfunda, mannlegra samskipta og skapandi athafna. Sem dæmi má nefna: vinnustofur, hagleikssmiðjur, listasmiðjur og klúbbastarf ýmiskonar, spilamennsku, skoðunarferðir, dans og leikfimi. Síðan eru ýmsir viðburðir árlegir og/eða tilfallandi, svo sem grillveisla, haustfagnaður og þorrablót. Lögð er áhersla á sjálfsprottið félagsstarf og hver og einn getur haft áhrif á þróun þess. Á Vitatorgi við Lindargötu er hádegisverður í boði kl. 11:30 til 12:30 alla daga ársins, líka um helgar og hátíðisdaga. Á virkum dögum er einnig síðdegiskaffi milli kl. 14:30–15:30. Einnig er fótaaðgerðarstofa og hársnyrtistofa á staðnum.
Vitatorg - Lindargata 59
Íbúðina má aðeins selja félagsmönnum í Félagi eldri borgara, sem eru 60 ára eða eldri.
Nánari upplýsingar veitir Hreiðar Levý Guðmundsson löggiltur fasteignasali, í síma 661- 6021, tölvupóstur hreidar@betristofan.is.
Gjöld sem kaupandi þarf að standa straum af ef að kaupum verður:
1. Stimpilgjald af fasteignamati fasteignar er 0.8%, en 0,4% fyrir fyrstu kaup og 1,6% fyrir lögaðila.
2. Þinglýsingargjald: kaupsamningi, skuldabréfi, veðleyfi, afsali o.s.frv. er kr. 2.700 af hverju skjali.
3. Lántökukostnaður samkvæmt verðskrá viðkomandi lánastofnunar.
4. Umsýslugjald til fasteignasölu skv. gjaldskrá.
Ár
Fasteignamat
Kaupverð
Stærð
Fermetraverð
4. sep. 2019
40.400.000 kr.
39.000.000 kr.
82.8 m²
471.014 kr.
3. jan. 2012
20.400.000 kr.
17.500.000 kr.
82 m²
213.415 kr.
Byggt á upplýsingum úr Þjóðskrá Íslands frá 2006-2025