Löggiltir fasteignasalar innan Félags fasteignasala:
Sverrir Kristinsson
Kjartan Hallgeirsson
Guðlaugur Ingi Guðlaugsson
Daði Hafþórsson
Gunnar Helgi Einarsson
Gunnar Bergmann Jónsson
Lilja Guðmundsdóttir
Jenný Sandra Gunnarsdóttir
Kári Sighvatsson
Vista
svg

30

svg

29  Skoðendur

svg

Skráð  21. okt. 2025

fjölbýlishús

Brautarholt 4

105 Reykjavík

75.900.000 kr.

1.096.821 þ.kr./m2
Fasteignanúmer

F2519169

Fasteignamat

54.550.000 kr.

Brunabótamat

40.450.000 kr.

Áhvílandi

0 kr.

Arion banki – Reikna lán
Upplýsingar
Verðsaga
svg
Byggt 1958
svg
69,2 m²
svg
3 herb.
svg
1 baðherb.
svg
2 svefnh.
svg
Útsýni
svg
Sameiginl. inngangur
svg
Lyfta
svg
Laus strax

Lýsing

Eignamiðlun kynnir:

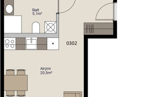
Íbúð 302.
Nýjar glæsilegar og vel skipulagðar íbúðir við Brautarholt 4a. Íbúðir eru 2-3 herbergja í lyftuhúsi. Íbúðirnar afhendast fullbúnar með vönduðum gólfefnum , þvottavél og þurrkara ásamt öllum eldhústækjum.
Íbúðirnar eru flestar tilbúnar til afhendingar.

Eign 302 er 3ja herbergja íbúð á þriðju hæð, alls 69,2 fm. 

*BÓKIÐ SKOÐUN SÝNUM SAMDÆGURS: Rögnvaldur sími 660-3452, Daði sími 824-9096 og Hilmar sími 824-9098

**Smellið hér fyrir söluyfirlit**


Um er að ræða 4. hæða 14 íbúða lyftuhús við Brautarholt 4a. 1-hæð: 2 íbúðir eru á fyrstu hæð með inngangi frá bakhlið, ásamt sameiginlegum inngangi á framhlið hússins og atvinnurými sem hefur sérinngang á framhlið.
2-4 hæð: 4 íbúðir á hverri hæð.
Geymslur fyrir íbúðir, sameiginleg hjóla- og vagnageymsla og inntaksherbergi fyrir veitur eru í bakhúsi. Sorpgeymsla er sameiginleg milli húsa nr. 4 og 4a og er staðsett á baklóð á milli húsanna.

Opinber skráning eignarinnar: Birt flatarmál er 69,2 fm, þar af sérgeymsla í sameign sem er merkt 0-117, skráð 6,6 fm.
 
Nánari lýsing :
Eldhús:
Í eldhúsi er eldhúsinnrétting með plastlagðri eik frá Voke 3 með plastlagðri borðplötu í dökkgráum lit. Eldhúsinnréttingin er fullbúin með blöndunartækjum og innbyggðum eldhústækjum. Eldhús er afhent með helluborði, viftu í innréttingu eða eyjuháfi yfir helluborði þar sem það á við ásamt ísskáp og uppþvottavél skv teikningum.
Baðherbergi/Þvottahús:
Baðinnrétting er úr plastlagðri eik frá Voke 3 með plastlagðri borðplötu í dökkgráum lit og er skápur með spegli fyrir ofan ásamt lýsingu. Í íbúðum eru hreinlætis- og blöndunartæki af viðurkenndri gerð og eru sturtutæki utanáliggjandi.
Salernið er upphengt og innbyggt með hæglokandi setu.
Baðherbergi afhendist með þvottavél og þurrkara.
Alrými : Eru parketlögð.
 
SKIPULAGSGJALD: Kaupendur greiða skipulagsgjald þ.e 0,3 % af endanlegu brunabótamati þegar það verður innheimt. 

UPPLÝSINGAR UM EIGNIRNAR GEFA: 
Rögnvaldur Örn Jónsson lögg fs sími 660-3452, rognvaldur@eignamidlun.is
Hilmar Hafsteinsson lögg fs sími 824-9098, hilmar@eignamidlun.is
Daði Hafþórsson lögg fs sími 824-9096, dadi@eignamidlun.is

***
Ábyrg þjónusta í áratugi. Eignamiðlun var stofnuð 1957 og er elsta starfandi fasteignasala á Íslandi. Reynsla, heiðarleiki og þekking á fasteignamarkaðnum eru grunnur að farsælum viðskiptum. 

Eignamiðlun Grensásvegi 11, 108 Reykjavík - Opið frá kl. 9-17 mánudaga til fimmtudaga og 9-16 á föstudögum.

Heimasíða Eignamiðlunar

Eignamiðlun á Facebook

Eignamiðlun

Eignamiðlun

Grensásvegi 11, 108 Reykjavík
Ár
Fasteignamat
Kaupverð
Stærð
Fermetraverð
17. júl. 2025
54.550.000 kr.
366.600.000 kr.
10302 m²
35.585 kr.
Byggt á upplýsingum úr Þjóðskrá Íslands frá 2006-2025
Eignamiðlun

Eignamiðlun

Grensásvegi 11, 108 Reykjavík