Upplýsingar
Verðsaga
Byggt 1969
106,8 m²
3 herb.
1 baðherb.
2 svefnh.
Þvottahús
Sameiginl. inngangur
Lýsing
Hraunhamar fasteignasala og Vala löggiltur fasteignasali s.691-7500 kynna í einkasölu bjarta og rúmgóða 106,8 fm 3 herbergja íbúð á 1 hæð, merkt 102. Samkv. birtum fm er íbúðin 96,9 fm og sérgeymsla í kjallara merkt 0004 er 7,9 fm. Húsið er klætt að utan og malbikað bílastæði er fyrir framan húsið.
samkv. uppl. frá seljendum var eldhús og gler á norðurhlið endurnýjað 2019-2020, baðherbergi og elvarnarhurð 2023. Á vegum húsfélagsins voru múrvðgerðir og á tréverki á gluggum 201-2020, bílastæði malbikað 2021, gert við þak og settar rafhleðslustöðvar 2022.
Mjög góð staðsetning í hrauninu í norðurbæ Hafnarfjarðar þ.s er stutt í grunn og leikskóla, matvöruverslun og fjölbreytta verslun og þjónustu í nágrenninu. Göngustígar eru um hverfið og stutt á útivistarsvæðið á Víðistaðatúni. Miðbær Hafnarfjarðar er í þægilegu göngufæri.
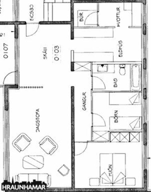
Nánari lýsing:
Hol með harðparketi á gólfi.
Stofa/borðstofa er björt og rúmgóð með harðparketi á gólfi og er útgengt á suðvestursvalir.
Eldhús var endurnýjað 2019/2020 er með flísum á gólfi. Ljós innrétting með helluborði, bakaraofni og háfi. Góður borðkrókur.
Gangur er með korkflísum á gólfi og fataskap.
Hjónaherbergi er rúmgott með harðparketi á gólfi og innbyggðum fataskáp.
Svefnherbergi er með harðparketi á gólfi og innbyggðum fataskáp.
Baðherbergi var endurnýjað 2023 og er með flísum á gólfi og veggjum, ljós innrétting með speglaskáp og handlaug. Baðkar með sturtu og upph. veggsalerni. Gluggi með opnanlegu fagi.
Þvottahús/búr er innaf elhúsi og með glugga.
Geymsla í kjallara er 7,9 fm.
Góð eign á rólegum og fjölskylduvænum stað í norðurbæ Hafnarfjarðar.
Fasteignamat 2026 verður kr.65.950.000.-.
Allar nánari upplýsingar veitir Vala Gissurardóttir löggiltur fasteignasali í síma 791-7500 eða sendið tölvupóst á netfangið vala@hraunhamar.is
Einar Örn Ágústsson, löggiltur fasteignasali, s. 888-7979, einar@hraunhamar.is
Um skoðunar- og aðgæsluskyldu:
Í lögum um fasteignakaup nr. 40/2002 er kveðið á um ríka skoðunarskyldu kaupenda á fasteignum. Hraunhamar fasteignasala bendir væntanlegum kaupendum á að kynna sér vel ástand fasteigna við skoðun og fyrir tilboðsgerð og ef þurfa þykir að leita til sérfræðinga um nánari ástandsskoðun.
Forsendur söluyfirlits:
Söluyfirlit er samið af fasteignasala í samræmi við ákvæði laga nr. 70/2015. Þær upplýsingar sem fram koma í söluyfirliti þessu eru sóttar í opinberar skrár, til seljanda sjálfs og eftir atvikum til húsfélags. Seljandi veitir upplýsingar um eign í samræmi við upplýsingaskyldu laga um fasteignakaup nr. 40/2002. Fasteignasali sannreynir að þær upplýsingar séu réttar með sjónskoðun á eigninni. Fasteignasali getur ekki fullyrt um ástand og eiginleika þeirra hluta fasteigna sem ekki eru aðgengilegir og sjást ekki berum augum, t.d. lagnir, dren, skólp og þak.
Gjöld sem kaupandi þarf að standa straum af vegna kaupanna:
1. Stimpilgjald af kaupsamningi - 0,8%(einstaklingar) 1.6% (lögaðilar) af heildarfasteignamati.
2. Stimpilgjald af veðskuldabréfi - 0% af höfuðstól skuldabréfs.
3. Þinglýsingargjald af kaupsamningi, veðskuldabréfi, mögulegu veðleyfi o.fl. - kr. 2.700 af hverju skjali.
4. Lántökugjald lánastofnunar - almennt 0,5 - 1,0% af höfuðstól skuldabréfs. Nánari upplýsingar á t.d. heimasíðu lánastofnana.
5. Umsýslugjald til fasteignasölu kr.68.200.-m.vsk.
Hraunhamar er elsta fasteignasala Hafnarfjarðar, stofnuð 1983 og fagnar því 40 ára afmæli á árinu 2023.
Hraunhamar, í fararbroddi í 40 ár. – Hraunhamar.is
Smelltu hér til að fá frítt söluverðmat.
samkv. uppl. frá seljendum var eldhús og gler á norðurhlið endurnýjað 2019-2020, baðherbergi og elvarnarhurð 2023. Á vegum húsfélagsins voru múrvðgerðir og á tréverki á gluggum 201-2020, bílastæði malbikað 2021, gert við þak og settar rafhleðslustöðvar 2022.
Mjög góð staðsetning í hrauninu í norðurbæ Hafnarfjarðar þ.s er stutt í grunn og leikskóla, matvöruverslun og fjölbreytta verslun og þjónustu í nágrenninu. Göngustígar eru um hverfið og stutt á útivistarsvæðið á Víðistaðatúni. Miðbær Hafnarfjarðar er í þægilegu göngufæri.
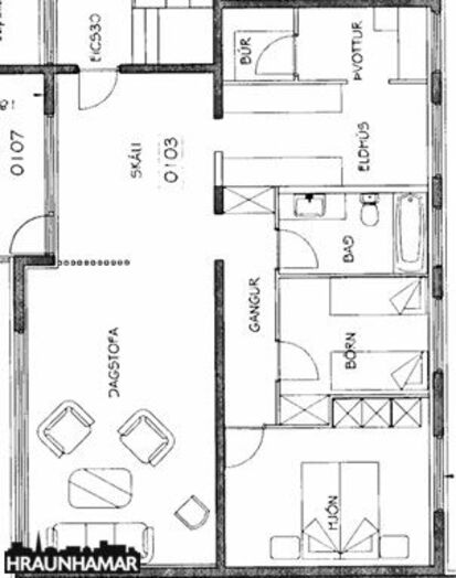
Nánari lýsing:
Hol með harðparketi á gólfi.
Stofa/borðstofa er björt og rúmgóð með harðparketi á gólfi og er útgengt á suðvestursvalir.
Eldhús var endurnýjað 2019/2020 er með flísum á gólfi. Ljós innrétting með helluborði, bakaraofni og háfi. Góður borðkrókur.
Gangur er með korkflísum á gólfi og fataskap.
Hjónaherbergi er rúmgott með harðparketi á gólfi og innbyggðum fataskáp.
Svefnherbergi er með harðparketi á gólfi og innbyggðum fataskáp.
Baðherbergi var endurnýjað 2023 og er með flísum á gólfi og veggjum, ljós innrétting með speglaskáp og handlaug. Baðkar með sturtu og upph. veggsalerni. Gluggi með opnanlegu fagi.
Þvottahús/búr er innaf elhúsi og með glugga.
Geymsla í kjallara er 7,9 fm.
Góð eign á rólegum og fjölskylduvænum stað í norðurbæ Hafnarfjarðar.
Fasteignamat 2026 verður kr.65.950.000.-.
Allar nánari upplýsingar veitir Vala Gissurardóttir löggiltur fasteignasali í síma 791-7500 eða sendið tölvupóst á netfangið vala@hraunhamar.is
Einar Örn Ágústsson, löggiltur fasteignasali, s. 888-7979, einar@hraunhamar.is
Um skoðunar- og aðgæsluskyldu:
Í lögum um fasteignakaup nr. 40/2002 er kveðið á um ríka skoðunarskyldu kaupenda á fasteignum. Hraunhamar fasteignasala bendir væntanlegum kaupendum á að kynna sér vel ástand fasteigna við skoðun og fyrir tilboðsgerð og ef þurfa þykir að leita til sérfræðinga um nánari ástandsskoðun.
Forsendur söluyfirlits:
Söluyfirlit er samið af fasteignasala í samræmi við ákvæði laga nr. 70/2015. Þær upplýsingar sem fram koma í söluyfirliti þessu eru sóttar í opinberar skrár, til seljanda sjálfs og eftir atvikum til húsfélags. Seljandi veitir upplýsingar um eign í samræmi við upplýsingaskyldu laga um fasteignakaup nr. 40/2002. Fasteignasali sannreynir að þær upplýsingar séu réttar með sjónskoðun á eigninni. Fasteignasali getur ekki fullyrt um ástand og eiginleika þeirra hluta fasteigna sem ekki eru aðgengilegir og sjást ekki berum augum, t.d. lagnir, dren, skólp og þak.
Gjöld sem kaupandi þarf að standa straum af vegna kaupanna:
1. Stimpilgjald af kaupsamningi - 0,8%(einstaklingar) 1.6% (lögaðilar) af heildarfasteignamati.
2. Stimpilgjald af veðskuldabréfi - 0% af höfuðstól skuldabréfs.
3. Þinglýsingargjald af kaupsamningi, veðskuldabréfi, mögulegu veðleyfi o.fl. - kr. 2.700 af hverju skjali.
4. Lántökugjald lánastofnunar - almennt 0,5 - 1,0% af höfuðstól skuldabréfs. Nánari upplýsingar á t.d. heimasíðu lánastofnana.
5. Umsýslugjald til fasteignasölu kr.68.200.-m.vsk.
Hraunhamar er elsta fasteignasala Hafnarfjarðar, stofnuð 1983 og fagnar því 40 ára afmæli á árinu 2023.
Hraunhamar, í fararbroddi í 40 ár. – Hraunhamar.is
Smelltu hér til að fá frítt söluverðmat.
Ár
Fasteignamat
Kaupverð
Stærð
Fermetraverð
6. sep. 2016
24.850.000 kr.
29.000.000 kr.
106.8 m²
271.536 kr.
Byggt á upplýsingum úr Þjóðskrá Íslands frá 2006-2025