Upplýsingar
Verðsaga
Byggt 1999
90 m²
3 herb.
1 baðherb.
2 svefnh.
Þvottahús
Sérinngangur
Lýsing
EIGNAVER 460-6060
Snægil 36 íbúð 101. *** OPIÐ HÚS FIMMTUDAGINN 23. OKTÓBER KL. 16.15 - 17.00 ***
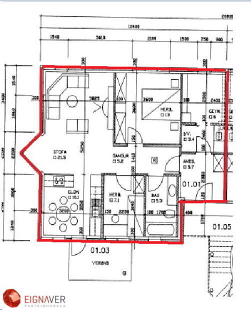
Björt og falleg 90,0 fm þriggja herbergja neðri hæð í fjórbýli með góðum sólpalli á vinsælum stað í Giljahverfi.
Forstofa, flísar á gólfi (2021) og fataskápur.
Þvottahús, dúkur á gólfi, góð hvít innrétting.
Geymsla inn af þvottahúsi er nýtt sem herbergi í dag. Parket á gólfi.
Hol/gangur parket á gólfi.
Svefnherbergin eru tvö, parket á gólfum herbergja og fataskápar í þeim báðum.
Baðherbergið er með lökkuðum flísum á gólfi og hluta veggja, ágæt eldri innrétting og sturta, gluggi með opnanlegu fagi.
Stofa og borðstofa, rúmgóð stofa, parket á gólfi, fallegur gluggi sem snýr til vesturs úr borðstofu.
Eldhús, spónlögð innrétting í eldhúsi, flísar á milli skápa, borðkrókur, parket á gólfI.
Gengið er úr eldhúsi út á góða timburverönd sem snýr til suðurs.
Annað:
- Ljósleiðari kominnn í hús.
- Gler endurnýjað í þessari íbuð árið 2025 nema í stofu en það var endurnýjað 2023.
- Parket á íbúð lagt 2019.
- Innihurðir og skápar sprautað 2019 nema í hjónaherbergi, þar voru skápar sprautaðir 2025.
- Vinsæl staðsetning.
- Merkt bílastæði.
- Mjög góð verönd.
- Sameiginleg útigeymsla
- Sameiginlegt geymsluloft
Eignin er í einkasölu hjá Eignaveri fasteignasölu.
Nánari upplýsingar veita:
Tryggvi s: 862-7919 / tryggvi@eignaver.is
Arnar s: 898-7011 / arnar@eignaver.is
Begga s. 845-0671 / begga@eignaver.is
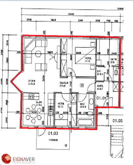
Snægil 36 íbúð 101. *** OPIÐ HÚS FIMMTUDAGINN 23. OKTÓBER KL. 16.15 - 17.00 ***
Björt og falleg 90,0 fm þriggja herbergja neðri hæð í fjórbýli með góðum sólpalli á vinsælum stað í Giljahverfi.
Forstofa, flísar á gólfi (2021) og fataskápur.
Þvottahús, dúkur á gólfi, góð hvít innrétting.
Geymsla inn af þvottahúsi er nýtt sem herbergi í dag. Parket á gólfi.
Hol/gangur parket á gólfi.
Svefnherbergin eru tvö, parket á gólfum herbergja og fataskápar í þeim báðum.
Baðherbergið er með lökkuðum flísum á gólfi og hluta veggja, ágæt eldri innrétting og sturta, gluggi með opnanlegu fagi.
Stofa og borðstofa, rúmgóð stofa, parket á gólfi, fallegur gluggi sem snýr til vesturs úr borðstofu.
Eldhús, spónlögð innrétting í eldhúsi, flísar á milli skápa, borðkrókur, parket á gólfI.
Gengið er úr eldhúsi út á góða timburverönd sem snýr til suðurs.
Annað:
- Ljósleiðari kominnn í hús.
- Gler endurnýjað í þessari íbuð árið 2025 nema í stofu en það var endurnýjað 2023.
- Parket á íbúð lagt 2019.
- Innihurðir og skápar sprautað 2019 nema í hjónaherbergi, þar voru skápar sprautaðir 2025.
- Vinsæl staðsetning.
- Merkt bílastæði.
- Mjög góð verönd.
- Sameiginleg útigeymsla
- Sameiginlegt geymsluloft
Eignin er í einkasölu hjá Eignaveri fasteignasölu.
Nánari upplýsingar veita:
Tryggvi s: 862-7919 / tryggvi@eignaver.is
Arnar s: 898-7011 / arnar@eignaver.is
Begga s. 845-0671 / begga@eignaver.is
Ár
Fasteignamat
Kaupverð
Stærð
Fermetraverð
3. des. 2014
17.850.000 kr.
19.300.000 kr.
115 m²
167.826 kr.
Byggt á upplýsingum úr Þjóðskrá Íslands frá 2006-2025