Löggiltir fasteignasalar innan Félags fasteignasala:
Ástþór Reynir Guðmundsson
Vigdís R. S. Helgadóttir
Guðbjörg Helga Jóhannesdóttir
Gylfi Jens Gylfason
Sigrún Matthea Sigvaldadóttir
Sveinn Gíslason
Páll Guðmundsson
Þórarinn Arnar Sævarsson
Berglind Hólm Birgisdóttir
Þorsteinn Gíslason
Guðrún Lilja Tryggvadóttir
Brynjar Ingólfsson
Guðný Þorsteinsdóttir
Bjarni Blöndal
Þorsteinn Ólafs
Þórdís Björk Davíðsdóttir
Jóhann Kristinn Jóhannesson
Bjarný Björg Arnórsdóttir
Salvör Þóra Davíðsdóttir
Magga Sigríður Gísladóttir
Upplýsingar
Verðsaga
Byggt 1963
70,2 m²
2 herb.
1 baðherb.
1 svefnh.
Sérinngangur
Lýsing
RE/MAX og Bára Jónsdóttir Löggiltur fasteignasali kynna: Háaleitisbraut 44, kjallaraíbúð með SÉRINNGANGI.
Virkilega björt og vel skipulögð tveggja herbergja íbúð í góðu fjórbýlishúsi með sérinngangi. Eignin er á besta stað í bænum þar sem stutt er í verslunarmiðstöðina Kringluna, verslunarkjarnann Skeifuna, skóla og alla helstu þjónustu.
Samkvæmt skráningu Þjóðskrár Íslands er birt flatarmál eignarinnar 70,20 m² og skráð byggingarár er 1963.
Samkvæmt eignaskiptayfirlýsingu telst eignin ekki með í sameignarhluta Háaleitisbrautar 44, en er með aðgengi að sorpgeymslu.
Sækja söluyfirlit HÉR
Nánari lýsing:
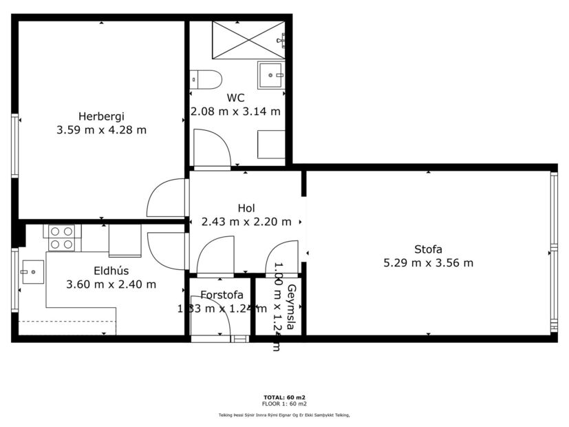
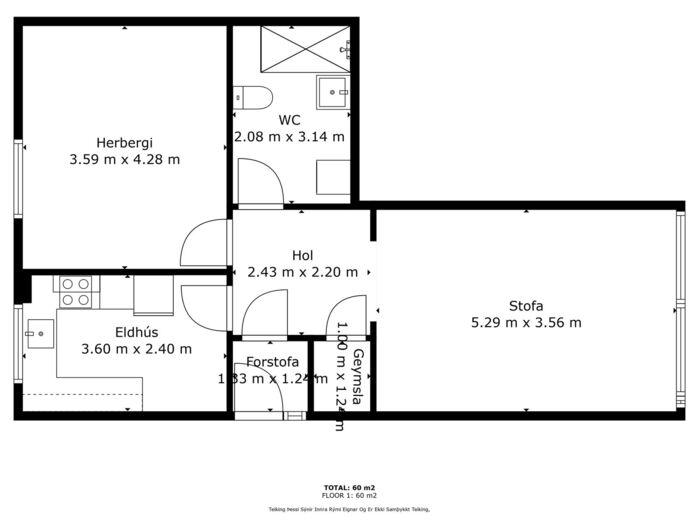
Eignin skiptist í: Forstofu, eldhús, svefnherbergi, baðherbergi, stofu og geymslu.
- Gengið er inn um sérinngang á jarðhæð og inn í flísalagða forstofu.
- Geymsla er innan íbúðar, og rúmgóðir geymsluskápar að utan sem tilheyra íbúðinni.
- Eldhúsið er flísalagt með góðu skápaplássi og spanhelluborði.
- Stofan er opin og björt með partketi á gólfi.
- Baðherbergið er flísalagt með tengi fyrir þvottavél og þurrkara.
- Svefnherbergið er mjög rúmgott með parketi á gólfi.
Fallega gróinn garður með tyrfðum flötum sunnan og vestan megin á lóðinni. Snjóbræðsla undir stétt fyrir framan hús og malbikuð bílastæði.
Framkvæmdir síðustu ára í fjölbýlishúsinu voru endurnýjun frárennslilagna undir húsinu árin 2023-2024.
Múrviðgerðir, málun og gluggaskipti á þeim gluggum sem komnir voru á tíma árin 2017-2021.
Ert þú í söluhugleiðingum? Hafðu samband HÉR fyrir FRÍTT og skuldbindingarlaust verðmat á þína eign.
Allar nánari upplýsingar og bókun á skoðun veitir:
Bára Jónsdóttir
Löggiltur fasteignasali
RE/MAX senter
Skeifan 17 / 108 Reykjavík
E-mail: bara@remax.is
Sími: 773-7404
Hér er facebook síðan mín
Heimasíða RE/MAX
Um skoðunar- og aðgæsluskyldu kaupenda:
Í lögum um fasteignakaup nr. 40/2002 er kveðið á um ríka skoðunarskyldu kaupenda á fasteignum. Vill því RE/MAX skora á væntanlega kaupendur að kynna sér vel ástand fasteigna fyrir kauptilboðsgerð og leita til þar til bærra sérfræðinga um nánari skoðun ef með þarf.
Forsendur söluyfirlits: Söluyfirlit er samið af fasteignasala í samræmi við ákvæði laga nr. 70/2015. Þær upplýsingar sem fram koma í söluyfirliti þessu eru sóttar í opinberar skrár, til seljanda sjálfs og eftir atvikum til húsfélags. Seljandi veitir upplýsingar um eign í samræmi við upplýsingaskyldu laga um fasteignakaup nr. 40/2002. Fasteignasali sannreynir að þær upplýsingar séu réttar með sjónskoðun á eigninni. Fasteignasali getur ekki fullyrt um ástand og eiginleika þeirra hluta fasteigna sem ekki eru aðgengilegir og sjást ekki berum augum, t.d. lagnir, dren, skólp og þak.
Gjöld sem kaupandi þarf að standa straum af vegna kaupanna:
· Stimpilgjald af kaupsamningi - 0,8% (0,4% ef um fyrstu kaup er að ræða) og 1,6% (ef lögaðilar) af heildarfasteignamati.
· Þinglýsingargjald af kaupsamningi, veðskuldabréfi, veðleyfi og fl. 2.700 kr. af hverju skjali.
· Lántökugjald lánastofnunar - samkvæmt gjaldskrá lánastofnunar.
Virkilega björt og vel skipulögð tveggja herbergja íbúð í góðu fjórbýlishúsi með sérinngangi. Eignin er á besta stað í bænum þar sem stutt er í verslunarmiðstöðina Kringluna, verslunarkjarnann Skeifuna, skóla og alla helstu þjónustu.
Samkvæmt skráningu Þjóðskrár Íslands er birt flatarmál eignarinnar 70,20 m² og skráð byggingarár er 1963.
Samkvæmt eignaskiptayfirlýsingu telst eignin ekki með í sameignarhluta Háaleitisbrautar 44, en er með aðgengi að sorpgeymslu.
Sækja söluyfirlit HÉR
Nánari lýsing:
Eignin skiptist í: Forstofu, eldhús, svefnherbergi, baðherbergi, stofu og geymslu.
- Gengið er inn um sérinngang á jarðhæð og inn í flísalagða forstofu.
- Geymsla er innan íbúðar, og rúmgóðir geymsluskápar að utan sem tilheyra íbúðinni.
- Eldhúsið er flísalagt með góðu skápaplássi og spanhelluborði.
- Stofan er opin og björt með partketi á gólfi.
- Baðherbergið er flísalagt með tengi fyrir þvottavél og þurrkara.
- Svefnherbergið er mjög rúmgott með parketi á gólfi.
Fallega gróinn garður með tyrfðum flötum sunnan og vestan megin á lóðinni. Snjóbræðsla undir stétt fyrir framan hús og malbikuð bílastæði.
Framkvæmdir síðustu ára í fjölbýlishúsinu voru endurnýjun frárennslilagna undir húsinu árin 2023-2024.
Múrviðgerðir, málun og gluggaskipti á þeim gluggum sem komnir voru á tíma árin 2017-2021.
Ert þú í söluhugleiðingum? Hafðu samband HÉR fyrir FRÍTT og skuldbindingarlaust verðmat á þína eign.
Allar nánari upplýsingar og bókun á skoðun veitir:
Bára Jónsdóttir
Löggiltur fasteignasali
RE/MAX senter
Skeifan 17 / 108 Reykjavík
E-mail: bara@remax.is
Sími: 773-7404
Hér er facebook síðan mín
Heimasíða RE/MAX
Um skoðunar- og aðgæsluskyldu kaupenda:
Í lögum um fasteignakaup nr. 40/2002 er kveðið á um ríka skoðunarskyldu kaupenda á fasteignum. Vill því RE/MAX skora á væntanlega kaupendur að kynna sér vel ástand fasteigna fyrir kauptilboðsgerð og leita til þar til bærra sérfræðinga um nánari skoðun ef með þarf.
Forsendur söluyfirlits: Söluyfirlit er samið af fasteignasala í samræmi við ákvæði laga nr. 70/2015. Þær upplýsingar sem fram koma í söluyfirliti þessu eru sóttar í opinberar skrár, til seljanda sjálfs og eftir atvikum til húsfélags. Seljandi veitir upplýsingar um eign í samræmi við upplýsingaskyldu laga um fasteignakaup nr. 40/2002. Fasteignasali sannreynir að þær upplýsingar séu réttar með sjónskoðun á eigninni. Fasteignasali getur ekki fullyrt um ástand og eiginleika þeirra hluta fasteigna sem ekki eru aðgengilegir og sjást ekki berum augum, t.d. lagnir, dren, skólp og þak.
Gjöld sem kaupandi þarf að standa straum af vegna kaupanna:
· Stimpilgjald af kaupsamningi - 0,8% (0,4% ef um fyrstu kaup er að ræða) og 1,6% (ef lögaðilar) af heildarfasteignamati.
· Þinglýsingargjald af kaupsamningi, veðskuldabréfi, veðleyfi og fl. 2.700 kr. af hverju skjali.
· Lántökugjald lánastofnunar - samkvæmt gjaldskrá lánastofnunar.
Ár
Fasteignamat
Kaupverð
Stærð
Fermetraverð
5. jún. 2018
27.000.000 kr.
33.000.000 kr.
70.2 m²
470.085 kr.
29. ágú. 2008
15.095.000 kr.
18.000.000 kr.
70.2 m²
256.410 kr.
Byggt á upplýsingum úr Þjóðskrá Íslands frá 2006-2025