Upplýsingar
Verðsaga
Byggt 1968
136,8 m²
5 herb.
2 baðherb.
4 svefnh.
Þvottahús
Útsýni
Sérinngangur
Lýsing
Íbúðin er SELD - Með fyrirvara!
FALLEG, VEL SKIPULÖGÐ 5-6 HERBERGJA NEÐRI SÉRHÆÐ MEÐ SÉRINNGANGI - SUÐVESTUR SVALIR - ÚTSÝNI!
Samkvæmt skráningu HMS er birt flatarmál eignarinnar 136,8 fm. Fyrirhugað fasteignamat 2026 kr. 92.900.000,-
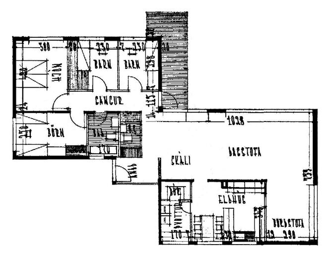
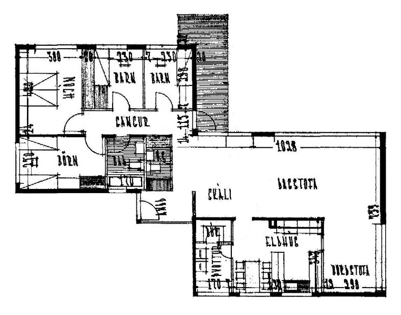
Um er að ræða fallega og rúmgóða 5-6 herb. íbúð með sérinngangi í steinsteyptu þriggja íbúða húsi, teiknað af Kjartani Sveinssyni og byggt árið 1968.
Gengið er inn í forstofu sem er opin í hol eða alrými með gestasnyrtingu sem skiptir vistarverum íbúðarinnar upp, til vinstri er svefnálman með fjórum góðum svefnherbergjum, gangi og baðherbergi, útgangur er þaðan út á rúmgóðar suðvestur svalir. Hægra megin við inngang er löng stofa, nú sjónvarpsrými og stofa (arinn) með borðstofu í endann til hægri. Rúmgott eldhús er inn af stofunni og þar inn af einnig þvottahúsið. Í sameign í kjallara hússins er sér geymsla sem fylgir eigninni og einnig sameiginleg vagna- og hjólageymsla.
Forstofa: Fatahengi og náttúrusteinn á gólfi, opin í holið.
Stofa/borðstofa: Bjartar og rúmgóðar með parketi á gólfum, steyptur glæsilegur arinn, stórir gluggar og fallegt úsýni.
Sjónvarpshol: Parket á gólfi og nýtist mjög vel sem alrými íbúðarinnar.
Eldhús: Sérsmíðuð eldhúsinnrétting sem var endurnýjuð árið 2009, sprautulökkuð hvít, stál er á milli efri-og neðri skápa. Pláss fyrir tvöfaldan ísskáp, bökunarofn frá Siemens, keramik helluborð, háfur með útsogi, náttúrusteinn er á gólfi.
Baðherbergi: Endurnýjað árið 2024, flísalagt í hólf og gólf, rúmgóð sturta með gleri, upphengt salerni og hvítur skápur og innrétting með innbyggðum glervaski með led lýsingu í og handklæðaofn. Góður opnanlegur gluggi.
Svefnherbergin: Fjögur herbergi, hjónaherbergi er rúmgott með góðum hvítum fataskáp, parket á gólfum.
Gestasnyrting: Uppgert 2024, innrétting með innbyggðum glervaski með led lýsingu, upphengt klósett. Ljósar flísar á gólfi og klósettkassa.
Þvottahús: Inn af eldhúsi, hvít innrétting með skúffum, skáp og vaski í borðplötu og góðum glugga, náttúrusteinn á gólfi.
Svalir: Skjól- og rúmgóðar "grill" suðvestur L-laga svalir með útsýni.
Geymsla: Sér geymsla um 4. fm. fylgir íbúðinni í kjallara með hillum og vinnuborði, væntanlega ekki skráð í fermetratölu yfir eignina.
Lóðin: Sameiginleg 803 fm. lóð með góðum bílastæðum.
Að sögn eigenda hefur húsið fengið gott viðhald í gegnum tíðina; en árið 2007 voru raflagnir voru endurnýjaðar í íbúðinni. Árið 2016 var grindverk sett meðfram allri lóðinni og þvottahúsið tekið í gegn, innréttingar(skápar), snúrur og vaskur sett upp. Árið 2019 var húsið múrað og málað að utan. Árið 2021 var sett upp ný útidyrahurð, skiptu um einn glugga inn í stofu og opnanlegu fagi bætt við. Árið 2024 var bæði baðherbergið og gestasnyrting tekinn í gegn, flísalagt í hólf og gólf, ný blöndunartæki (vaskur og sturta), vaskur, handklæðaofn, klósett og innréttingar, einnig var skólp og dren endurnýjað að fullu alla leið út í nýjan brunn. Árið 2025 var farið í frágang á lóð eftir endurnýjun á skólp og dreni árið áður. Hellulagt plan fyrir framan, ruslatunnuskýli og malbikað hluta af bílastæði.
- Fjölskyldu væn eign á frábærum stað í suðurhlíðum Kópavogs.
- Heimild fyrir að sækja um bílskúrsrétt hefur fylgt þessari íbúð, sjá teikningar.
- Ljósleiðari er komin inn í íbúðina.
Staðsetning eignarinnar er virkilega góð, skjólsæll og gróinn staður í suðurhlíðum Kópavogs þaðan sem stutt er í leikskóla, skóla, verslanir, almenningssamgöngur og þjónustu auk þess sem stutt er út á aðalbraut. Stutt er í góðar gönguleiðir í Kópavogsdalnum sem er frábær til útvistar.
Allar nánari uppl. og skoðun veitir: Jóhann Friðgeir, lgf. GSM: 896-3038 e-mail: johann@hofdi.is
FALLEG, VEL SKIPULÖGÐ 5-6 HERBERGJA NEÐRI SÉRHÆÐ MEÐ SÉRINNGANGI - SUÐVESTUR SVALIR - ÚTSÝNI!
Samkvæmt skráningu HMS er birt flatarmál eignarinnar 136,8 fm. Fyrirhugað fasteignamat 2026 kr. 92.900.000,-
Um er að ræða fallega og rúmgóða 5-6 herb. íbúð með sérinngangi í steinsteyptu þriggja íbúða húsi, teiknað af Kjartani Sveinssyni og byggt árið 1968.
Gengið er inn í forstofu sem er opin í hol eða alrými með gestasnyrtingu sem skiptir vistarverum íbúðarinnar upp, til vinstri er svefnálman með fjórum góðum svefnherbergjum, gangi og baðherbergi, útgangur er þaðan út á rúmgóðar suðvestur svalir. Hægra megin við inngang er löng stofa, nú sjónvarpsrými og stofa (arinn) með borðstofu í endann til hægri. Rúmgott eldhús er inn af stofunni og þar inn af einnig þvottahúsið. Í sameign í kjallara hússins er sér geymsla sem fylgir eigninni og einnig sameiginleg vagna- og hjólageymsla.
Forstofa: Fatahengi og náttúrusteinn á gólfi, opin í holið.
Stofa/borðstofa: Bjartar og rúmgóðar með parketi á gólfum, steyptur glæsilegur arinn, stórir gluggar og fallegt úsýni.
Sjónvarpshol: Parket á gólfi og nýtist mjög vel sem alrými íbúðarinnar.
Eldhús: Sérsmíðuð eldhúsinnrétting sem var endurnýjuð árið 2009, sprautulökkuð hvít, stál er á milli efri-og neðri skápa. Pláss fyrir tvöfaldan ísskáp, bökunarofn frá Siemens, keramik helluborð, háfur með útsogi, náttúrusteinn er á gólfi.
Baðherbergi: Endurnýjað árið 2024, flísalagt í hólf og gólf, rúmgóð sturta með gleri, upphengt salerni og hvítur skápur og innrétting með innbyggðum glervaski með led lýsingu í og handklæðaofn. Góður opnanlegur gluggi.
Svefnherbergin: Fjögur herbergi, hjónaherbergi er rúmgott með góðum hvítum fataskáp, parket á gólfum.
Gestasnyrting: Uppgert 2024, innrétting með innbyggðum glervaski með led lýsingu, upphengt klósett. Ljósar flísar á gólfi og klósettkassa.
Þvottahús: Inn af eldhúsi, hvít innrétting með skúffum, skáp og vaski í borðplötu og góðum glugga, náttúrusteinn á gólfi.
Svalir: Skjól- og rúmgóðar "grill" suðvestur L-laga svalir með útsýni.
Geymsla: Sér geymsla um 4. fm. fylgir íbúðinni í kjallara með hillum og vinnuborði, væntanlega ekki skráð í fermetratölu yfir eignina.
Lóðin: Sameiginleg 803 fm. lóð með góðum bílastæðum.
Að sögn eigenda hefur húsið fengið gott viðhald í gegnum tíðina; en árið 2007 voru raflagnir voru endurnýjaðar í íbúðinni. Árið 2016 var grindverk sett meðfram allri lóðinni og þvottahúsið tekið í gegn, innréttingar(skápar), snúrur og vaskur sett upp. Árið 2019 var húsið múrað og málað að utan. Árið 2021 var sett upp ný útidyrahurð, skiptu um einn glugga inn í stofu og opnanlegu fagi bætt við. Árið 2024 var bæði baðherbergið og gestasnyrting tekinn í gegn, flísalagt í hólf og gólf, ný blöndunartæki (vaskur og sturta), vaskur, handklæðaofn, klósett og innréttingar, einnig var skólp og dren endurnýjað að fullu alla leið út í nýjan brunn. Árið 2025 var farið í frágang á lóð eftir endurnýjun á skólp og dreni árið áður. Hellulagt plan fyrir framan, ruslatunnuskýli og malbikað hluta af bílastæði.
- Fjölskyldu væn eign á frábærum stað í suðurhlíðum Kópavogs.
- Heimild fyrir að sækja um bílskúrsrétt hefur fylgt þessari íbúð, sjá teikningar.
- Ljósleiðari er komin inn í íbúðina.
Staðsetning eignarinnar er virkilega góð, skjólsæll og gróinn staður í suðurhlíðum Kópavogs þaðan sem stutt er í leikskóla, skóla, verslanir, almenningssamgöngur og þjónustu auk þess sem stutt er út á aðalbraut. Stutt er í góðar gönguleiðir í Kópavogsdalnum sem er frábær til útvistar.
Allar nánari uppl. og skoðun veitir: Jóhann Friðgeir, lgf. GSM: 896-3038 e-mail: johann@hofdi.is
Ár
Fasteignamat
Kaupverð
Stærð
Fermetraverð
6. maí. 2016
83.850.000 kr.
43.000.000 kr.
10101 m²
4.257 kr.
12. nóv. 2009
25.190.000 kr.
29.300.000 kr.
136.8 m²
214.181 kr.
20. apr. 2007
22.580.000 kr.
29.000.000 kr.
136.8 m²
211.988 kr.
Byggt á upplýsingum úr Þjóðskrá Íslands frá 2006-2026