Löggiltir fasteignasalar innan Félags fasteignasala:
Eiríkur Svanur Sigfússon
Aron Freyr Eiríksson
Melkorka Guðmundsdóttir
Kristófer Fannar Guðmundsson
Svala Haraldsdóttir
Stefán Rafn Sigurmannsson
Arnór Daði Eiríksson
Vista
svg

127

svg

122  Skoðendur

svg

Skráð  27. okt. 2025

fjölbýlishús

Baughamar 3 íb 204

221 Hafnarfjörður

75.300.000 kr.

822.951 þ.kr./m2
Fasteignanúmer

F2534647

Fasteignamat

46.750.000 kr.

Brunabótamat

0 kr.

Áhvílandi

0 kr.

Arion banki – Reikna lán
Upplýsingar
svg
Byggt 2024
svg
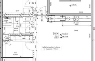
91,5 m²
svg
3 herb.
svg
2 svefnh.
svg
Sameiginl. inngangur
svg
Lyfta
Opið hús: 3. desember 2025 kl. 16:30 til 17:00

Opið hús miðvikudaginn 3. des. milli kl. 16:30 & 17:00 við Baughamar 3 í Hamranesi, Hafnarfirði - Verið velkomin!

Lýsing

Glæsilegar 2ja, 3ja, 4ra og 5 herbergja íbúðir,  í nýju sex hæða lyftufjölbýli við Baughamar 3 í Hamranesinu, Hafnarfirði.
Íbúðirnar skilast fullbúnar með parketi og flísum á gólfi. Baðherbergi og þvottahús verða flísalögð. Hægt er að kaupa sér bílastæði í bílakjallara, verð á því er 4. milljónir. 


Stærðir: 73,9 - 190,9 fm
Herbergi: 2ja, 3ja, 4ra og 5 herbergja
Verð: 61,2 - 160 mkr.

Smelltu hér til að skoða sölusíðu verkefnisins og lausar íbúðir.

- Innréttingar frá Nobilia, steinplata á borðum í eldhúsi.
- Innbyggður ísskápur og uppþvottavél.
- Eignirnar skilast með Quick Step 2 harðparketi en flísum á votrýmum.
- Útveggir staðsteyptir, húsið einangrað að utan og klætt með álklæðningu.
- Ál-tré gluggakerfi.

Hamranesið er nýtt og glæsilegt hverfi þar sem stutt er í alla helstu þjónstu, s.s. verslanir, grunn- og leikskóla, útibú tónlistarskóla Hafnarfjarðar, íþróttasvæði Hauka, sundlaugar, líkamsræktarstöðvar, apótek og falleg útivistarsvæði. 

Byggingaraðili er traustur verktaki:
Skuggi 6 ehf.

Bókið skoðun og fáið nánari upplýsingar hjá sölumönnum Ás fasteignasölu: 
Stefán Rafn Sigurmannsson löggiltur fasteignasali s. 655-7000 / stefan@as.is
Arnór Daði Eiríksson aðsoðarmaður fasteignasala s. 777-0939 / arnor@as.is
Svala Haraldsdóttir löggiltur fasteignasali s. 820-9699 / svala@as.is
Aron Freyr Eiríksson löggiltur fasteignasali s. 772-7376 / aron@as.is
Eiríkur Svanur Sigfússon löggiltur fasteignasali í s. 862-3377 / eirikur@as.is


Frábær staðsetning þar sem stutt er í helstu þjónustu og falleg útivistarsvæði.

Ás fasteignasala er rótgróið fyrirtæki sem hefur veitt alla almenna þjónustu í fasteignaviðskiptum frá árinu 1988.
www.facebook.com/asfasteignasala
www.instagram.com/as_fasteignasala
www.as.is

Ás fasteignasala

Ás fasteignasala

Fjarðargötu 17, 220 Hafnarfirði
phone
Ás fasteignasala

Ás fasteignasala

Fjarðargötu 17, 220 Hafnarfirði
phone