Upplýsingar
Verðsaga
Byggt 2022
130 m²
3 herb.
1 baðherb.
2 svefnh.
Bílskúr
Sérinngangur
Laus strax
Lýsing
Valný fasteignasala og Valgeir Leifur löggiltur fasteignasali kynna:
Víðidalur 22, 260 Reykjanesbær
Vandað endaraðhús á einni hæð með innbyggðum bílskúr á rólegum og fjölskylduvænum stað. Eignin er með gólfhita, snjóbræðslu í innkeyrslu og afgirtum sólpalli.
Smelltu hér til að fá söluyfirlit.
Samkvæmt fasteignaskrá HMS er eignin skráð samtals 130.0 m², þar af er íbúðarrými 108,5 m² og innbyggður bílskúr 21,5 m².
Eign merkt 01-01, fastanúmer 230-0971 ásamt öllu því sem eigninni fylgir, þar með talið tilheyrandi lóðar og sameignarréttindi.
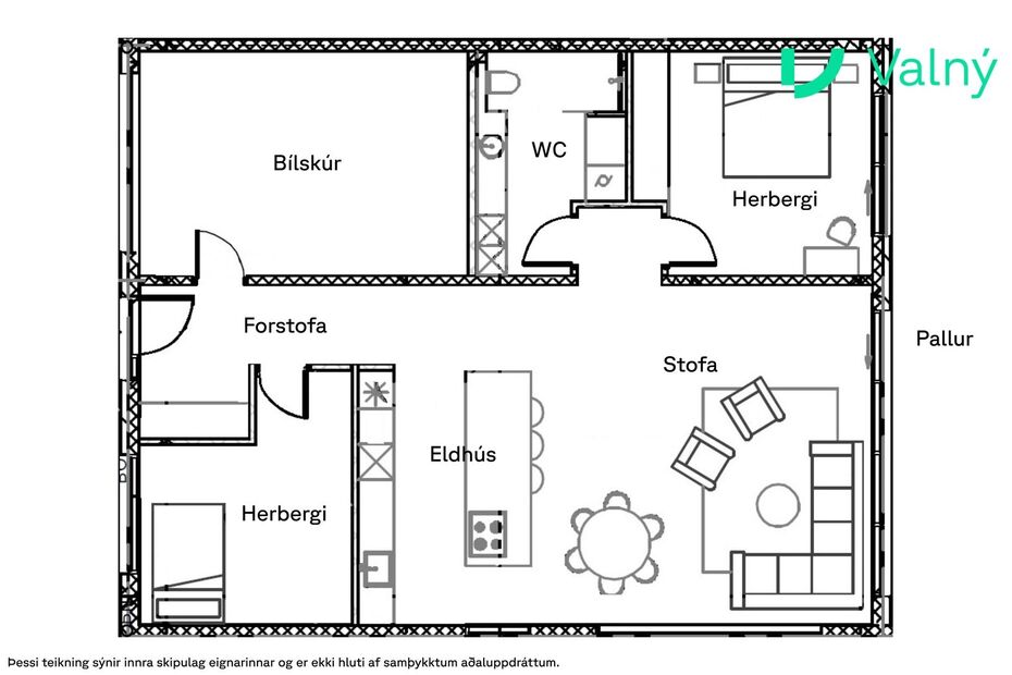
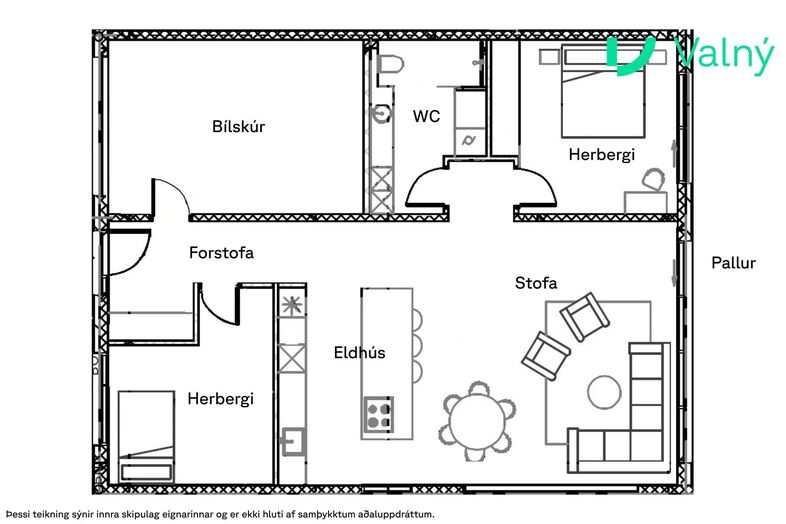
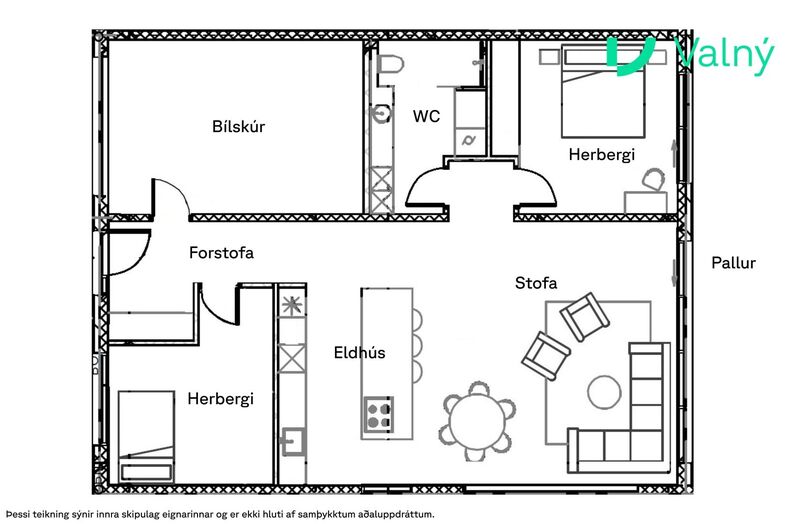
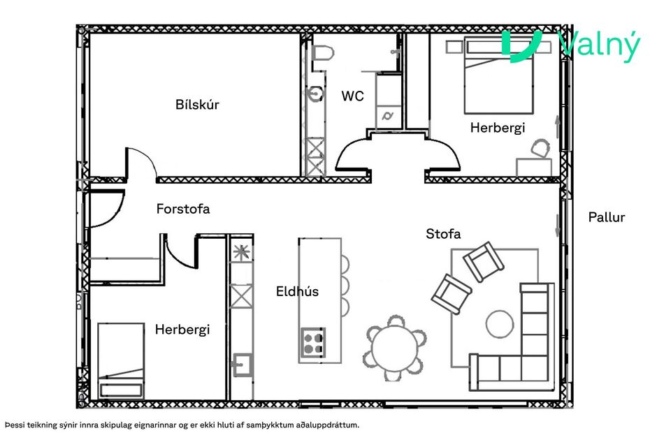
Lýsing og skipulag eignar:
Forstofa er flísalögð með fatskáp upp í loft.
Eldhús með fallegri innréttingu frá HTH með skápum upp í loft. Innbyggður ísskápur og uppþvottavél. Helluborð er í eyju, ofn í vinnuhæð og örbylgjuofn. Harðparket á gólfi.
Stofa og borðstofa er með stórum gólfsíðum gluggum sem gerir rýmið bjart og fallegt. Úr stofunni er útgengt á afgirtan pall. Harðparket á gólfi.
Hjónaherbergi með góðum fataskáp, harðparketi og útgengi á pall.
Svefnherbergi með fataskáp og harðparketi á gólfi.
Baðherbergi með flísum á gólfi og veggjum, walk-in sturtu, innréttingu við vask og aðstöðu fyrir þvottavél og þurrkara í vinnuhæð.
Bílskúr er innangengur frá forstofu, með flotuðu gólfi og bílskúrshurðaropnara.
Byggingarlýsing:
Húsið er byggt árið 2022, staðsteypt á einni hæð með innbyggðum bílskúr. Það er einangrað að utan og klætt álplötum. Gólfhiti er í öllum rýmum. Gert er ráð fyrir hleðslustöð fyrir rafbíl við innkeyrslu.
Lóð og aðkoma:
Innkeyrsla er hellulögð með snjóbræðslukerfi. Lóð er tyrfð að mestu. Afgirtur sólpallur er að aftan við húsið.
Allar nánari upplýsingar veitir:
Valgeir Leifur / Löggiltur fasteignasali / 780-2575 / valgeir@valny.is
Ertu að leita að nýbyggingum? Skoðaðu úrvalið hjá Valný – smelltu hér.
Ertu að hugsa um að selja? Smelltu hér og fáðu frítt verðmat.
Ekki missa af draumaeigninni – fylgstu með okkur á Instagram og Facebook
Lestu reynslusögur frá ánægðum viðskiptavinum okkar.
- Fasteignasalan sem opnar dyrnar að þinni eign.
Valný fasteignasala | www.valny.is | Tjarnargötu 2, 230 Reykjanesbær | Opið alla virka daga frá 9:00-16:00
Víðidalur 22, 260 Reykjanesbær
Vandað endaraðhús á einni hæð með innbyggðum bílskúr á rólegum og fjölskylduvænum stað. Eignin er með gólfhita, snjóbræðslu í innkeyrslu og afgirtum sólpalli.
Smelltu hér til að fá söluyfirlit.
Samkvæmt fasteignaskrá HMS er eignin skráð samtals 130.0 m², þar af er íbúðarrými 108,5 m² og innbyggður bílskúr 21,5 m².
Eign merkt 01-01, fastanúmer 230-0971 ásamt öllu því sem eigninni fylgir, þar með talið tilheyrandi lóðar og sameignarréttindi.
Lýsing og skipulag eignar:
Forstofa er flísalögð með fatskáp upp í loft.
Eldhús með fallegri innréttingu frá HTH með skápum upp í loft. Innbyggður ísskápur og uppþvottavél. Helluborð er í eyju, ofn í vinnuhæð og örbylgjuofn. Harðparket á gólfi.
Stofa og borðstofa er með stórum gólfsíðum gluggum sem gerir rýmið bjart og fallegt. Úr stofunni er útgengt á afgirtan pall. Harðparket á gólfi.
Hjónaherbergi með góðum fataskáp, harðparketi og útgengi á pall.
Svefnherbergi með fataskáp og harðparketi á gólfi.
Baðherbergi með flísum á gólfi og veggjum, walk-in sturtu, innréttingu við vask og aðstöðu fyrir þvottavél og þurrkara í vinnuhæð.
Bílskúr er innangengur frá forstofu, með flotuðu gólfi og bílskúrshurðaropnara.
Byggingarlýsing:
Húsið er byggt árið 2022, staðsteypt á einni hæð með innbyggðum bílskúr. Það er einangrað að utan og klætt álplötum. Gólfhiti er í öllum rýmum. Gert er ráð fyrir hleðslustöð fyrir rafbíl við innkeyrslu.
Lóð og aðkoma:
Innkeyrsla er hellulögð með snjóbræðslukerfi. Lóð er tyrfð að mestu. Afgirtur sólpallur er að aftan við húsið.
Allar nánari upplýsingar veitir:
Valgeir Leifur / Löggiltur fasteignasali / 780-2575 / valgeir@valny.is
Ertu að leita að nýbyggingum? Skoðaðu úrvalið hjá Valný – smelltu hér.
Ertu að hugsa um að selja? Smelltu hér og fáðu frítt verðmat.
Ekki missa af draumaeigninni – fylgstu með okkur á Instagram og Facebook
Lestu reynslusögur frá ánægðum viðskiptavinum okkar.
- Fasteignasalan sem opnar dyrnar að þinni eign.
Valný fasteignasala | www.valny.is | Tjarnargötu 2, 230 Reykjanesbær | Opið alla virka daga frá 9:00-16:00
Ár
Fasteignamat
Kaupverð
Stærð
Fermetraverð
2. feb. 2023
52.000.000 kr.
59.900.000 kr.
130 m²
460.769 kr.
Byggt á upplýsingum úr Þjóðskrá Íslands frá 2006-2026