Upplýsingar
Byggt 2025
193,7 m²
3 herb.
3 baðherb.
2 svefnh.
Þvottahús
Sameiginl. inngangur
Bílastæði
Lyfta
Lýsing
Betri Stofan Fasteignasala kynnir: Glæsilegar nýjar íbúðir við Vetrarbraut 2-4, í nýju og heillandi og nýlegu hverfi í Garðabæ.
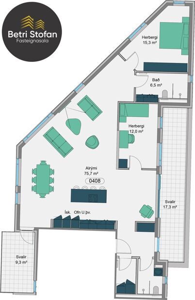
Íbúð 408 er 193,7 fermetra endaíbúð á fjórðu hæð, efstu hæð sem er með gólfhita. Steinn á borðplötum og loftskiptikerfi. Eigninni fylgir bílskúr ásamt bílastæði N28 í lokaðri bílageymslu. Lofthæðin er góð í íbúðinni. Fallegt útsýni. Tvennar svalir.
https://vetrarbraut.is/
Nánari lýsing:
Eignin skiptist í anddyri, hol, eldhús, borðstofu og stofu í rúmgóðu og björtu alrými þaðan sem gengið er út á tvennar svalir. Gott Svefnherbergi með fataskápum. Aukasvefnherbergi er rúmgott með fataskáp, tvö baðherbergi og þvottahús innan íbúðar. Í sameign er hjóla og vagnageysmla, ásamt 11,6 fm sérgeymslu íbúðar. Bílastæði nr. N28, sérmerkt í lokaðri bílageymslu.
Eldhús er vel útbúið, sérsmíðaðar Voke III spónlagðar eikar innréttingar með innfelldum gripum, á borðplötum er kvarts steinn. Vönduð tæki eru í eldhúsi innbyggður Siemens ísskápur, uppþvottavél og vínskápur. Gaggenau ofn, og sambyggður ofn/örbylgjuofn (Combi ofn) í vinnuhæð, helluborð með innbyggðri viftu, eldhús- og blöndunartæki að vandaðri gerð.
Íbúðin skilast án gólfefna utan baðherbergja og þvottahús sem skilast flísalögð.
Rými eru hönnuð með áherslu á loftgæði, hljóðvist og náttúrulega birtu. Hver íbúð hefur loftskiptikerfi sem stjórnað er innan íbúðar, slíkt eykur loftgæði og stuðlar að heilnæmu innilofti.
Húsið er klætt flísum og álkæðningu, slétt og bára. klæðningar eru í mismunandi litum, náttúrulegum jarðlitum sem tengir bygginguna umhverfinu, lögð er áhersla á að húsin séu viðhaldslétt, flísar og álklæðningar og ál/tré gluggar.
Um er að ræða bjartar og fallegar íbúðir í vandaðri nýbyggingu í einstöku umhverfi, nálægð við Golfvöll GKG, útivistarsvæði Heiðmerkur, nýja íþróttaaðstöðu Stjörnunnar svo fátt sé upptalið í skemmtilegu nýju hverfi.
Með öllum íbúðum fylgir bílastæði í lokaðri bílageymslu í það minnsta eitt fyrir hverja íbúð og fylgja bílskúrar sumum íbúðum að auki.
Vandað hefur verið að allri hönnun innan sem utan.
Byggingar eru hannaðar af Arkís, aðalhönnuður er Arnar Þór Jónsson arkitekt og hafði Thelma Guðmundsdóttir innanhúsarkitekt umsjón með innanhúshönnun. Hverfið í heild, Vetrarmýri, er hannað af Sigurði Einarssyni arkitekt og skipulagshönnuði hjá Batteríinu.
Nánari upplýsingar veita:
Jason Kristinn Ólafsson, í síma 775-1515, tölvupóstur jason@betristofan.is
Guðbjörg Guðmundsdóttir , í síma 899-5533, tölvupóstur gudbjorg@betristofan.is.
Dagrún Davíðsdóttir, í síma 866-1763, tölupóstur dagrun@betristofan.is
Þórhallur Biering Guðjónsson, í síma 896-8232, tölvupóstur thorhallur@betristofan.is
Íbúð 408 er 193,7 fermetra endaíbúð á fjórðu hæð, efstu hæð sem er með gólfhita. Steinn á borðplötum og loftskiptikerfi. Eigninni fylgir bílskúr ásamt bílastæði N28 í lokaðri bílageymslu. Lofthæðin er góð í íbúðinni. Fallegt útsýni. Tvennar svalir.
https://vetrarbraut.is/
Nánari lýsing:
Eignin skiptist í anddyri, hol, eldhús, borðstofu og stofu í rúmgóðu og björtu alrými þaðan sem gengið er út á tvennar svalir. Gott Svefnherbergi með fataskápum. Aukasvefnherbergi er rúmgott með fataskáp, tvö baðherbergi og þvottahús innan íbúðar. Í sameign er hjóla og vagnageysmla, ásamt 11,6 fm sérgeymslu íbúðar. Bílastæði nr. N28, sérmerkt í lokaðri bílageymslu.
Eldhús er vel útbúið, sérsmíðaðar Voke III spónlagðar eikar innréttingar með innfelldum gripum, á borðplötum er kvarts steinn. Vönduð tæki eru í eldhúsi innbyggður Siemens ísskápur, uppþvottavél og vínskápur. Gaggenau ofn, og sambyggður ofn/örbylgjuofn (Combi ofn) í vinnuhæð, helluborð með innbyggðri viftu, eldhús- og blöndunartæki að vandaðri gerð.
Íbúðin skilast án gólfefna utan baðherbergja og þvottahús sem skilast flísalögð.
Rými eru hönnuð með áherslu á loftgæði, hljóðvist og náttúrulega birtu. Hver íbúð hefur loftskiptikerfi sem stjórnað er innan íbúðar, slíkt eykur loftgæði og stuðlar að heilnæmu innilofti.
Húsið er klætt flísum og álkæðningu, slétt og bára. klæðningar eru í mismunandi litum, náttúrulegum jarðlitum sem tengir bygginguna umhverfinu, lögð er áhersla á að húsin séu viðhaldslétt, flísar og álklæðningar og ál/tré gluggar.
Um er að ræða bjartar og fallegar íbúðir í vandaðri nýbyggingu í einstöku umhverfi, nálægð við Golfvöll GKG, útivistarsvæði Heiðmerkur, nýja íþróttaaðstöðu Stjörnunnar svo fátt sé upptalið í skemmtilegu nýju hverfi.
Með öllum íbúðum fylgir bílastæði í lokaðri bílageymslu í það minnsta eitt fyrir hverja íbúð og fylgja bílskúrar sumum íbúðum að auki.
Vandað hefur verið að allri hönnun innan sem utan.
Byggingar eru hannaðar af Arkís, aðalhönnuður er Arnar Þór Jónsson arkitekt og hafði Thelma Guðmundsdóttir innanhúsarkitekt umsjón með innanhúshönnun. Hverfið í heild, Vetrarmýri, er hannað af Sigurði Einarssyni arkitekt og skipulagshönnuði hjá Batteríinu.
Nánari upplýsingar veita:
Jason Kristinn Ólafsson, í síma 775-1515, tölvupóstur jason@betristofan.is
Guðbjörg Guðmundsdóttir , í síma 899-5533, tölvupóstur gudbjorg@betristofan.is.
Dagrún Davíðsdóttir, í síma 866-1763, tölupóstur dagrun@betristofan.is
Þórhallur Biering Guðjónsson, í síma 896-8232, tölvupóstur thorhallur@betristofan.is
Gjöld sem kaupandi þarf að standa straum af ef að kaupum verður:
1. Stimpilgjald af fasteignamati fasteignar er 0.8%, en 0,4% fyrir fyrstu kaup og 1,6% fyrir lögaðila.
2. Þinglýsingargjald: kaupsamningi, skuldabréfi, veðleyfi, afsali o.s.frv. er kr. 2.700 af hverju skjali.
3. Lántökukostnaður samkvæmt verðskrá viðkomandi lánastofnunar.
4. Umsýslugjald til fasteignasölu skv. gjaldskrá.