Löggiltir fasteignasalar innan Félags fasteignasala:
Björn Guðmundsson
Berglind Jónasardóttir
Greta Huld Mellado
Vista
fjölbýlishús

Hjallatún 5

600 Akureyri

62.900.000 kr.

639.878 þ.kr./m2
Fasteignanúmer

F2313975

Fasteignamat

56.300.000 kr.

Brunabótamat

56.250.000 kr.

Áhvílandi

0 kr.

Arion banki – Reikna lán
Upplýsingar
Verðsaga
svg
Byggt 2015
svg
98,3 m²
svg
3 herb.
svg
1 baðherb.
svg
2 svefnh.
svg
Útsýni

Lýsing

    

Fasteignasalan Byggð 464-9955 - Einkasölu 

Hjallatún 5 - 203

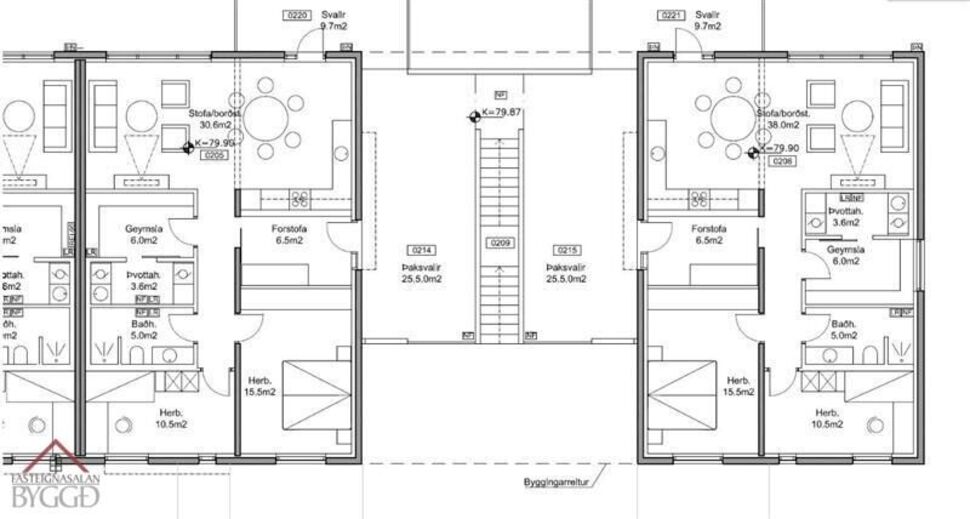
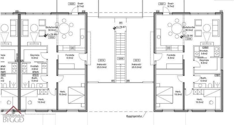
Vel skipulögð og rúmgóð þriggja herbergja íbúð á góðum stað í Naustahverfi. Íbúðin er á annarri hæð í tveggja hæða tengihúsi, með góðri verönd fyrir framan inngang. Samtals er eignin 98,3 fm. en sameiginleg geymsla fylgir í geymsluskúr við bílastæði. 


Eignin skiptist í forstofu, gang, eldhús og samliggjandi stofu, geymslu, þvottahús, baðherbergi og tvö svefnherbergi. 

Forstofa er rúmgóð með ljósum flísum á gólfi og stórum föstum skápum. 
Stofa er björt og rúmgóð og er samliggjandi við eldhús. Parket er á gólfi og stór gluggi til vesturs. 
Eldhús er með parket á gólfi góðri eldhúsinnréttingu og ljósum flísum á milli efri og neðri skápa. Úr eldhúsi er gengið út á steypta verönd til vesturs. 
Svefnherbergi eru tvö, bæði rúmgóð með parket á gólfi og góðu skápaplássi. 
Baðherbergi er með flísum á gólfi og við votsvæði, rúmgóðri sturtu og fallegri og góðri innréttingu við hlið og undir vaski.
Geymsla er með parket á gólfi.
Þvottahús er inn af geymslu með flísar á gólfi, vask og stæði fyrir þvottavél og þurkara. 

Annað: 
-Allar innréttingar eru eikarinnréttingar frá Brúnás 
-Hiti er í gólfum
-Stór og góð hellulögð verönd er yfir bílskúr neðri hæðar og snýr í norður. Verönd og svalir sem snúa til vesturs eru samtengdar 
-Geymsluskúr er fyrir framan húsið sem íbúðin á hlutdeild að. 
-Frábær staðsetning, stutt í leik- og grunnskóla ásamt útivistarparadís í Naustaborgum og golfvöll

Gjöld sem kaupandi þarf að standa straum af vegna kaupanna:  
1. Stimpilgjald af kaupsamningi - 0.8% af heildarfasteignamati / 1.6% fyrir lögaðila.    (0.4% við fyrstu kaup einstaklinga m.v. að lágmarki 50% eignarhlut).
2. Þinglýsingagjald af kaupsamningi, veðskuldabréfi, veðleyfi o.fl.- kr. 2.700 af hverju skjali.
3. Lántökugjald lánastofnunar -almennt 0,5-1,0% af höfuðstól skuldabréfs (nánari upplýsingar m.a. á heimasíðum lánastofnanna).
4. Umsýsluþóknun til fasteignasölu, sbr.kauptilboð. 


Frekari upplýsingar:
bjorn@byggd.is
greta@byggd.is
berglind@byggd.is
olafur@byggd.is

Skipagötu 16 á 2. hæð.
S:464 9955 


 

Byggð fasteignasala

Byggð fasteignasala

Skipagata 16, 600 Akureyri
phone
Ár
Fasteignamat
Kaupverð
Stærð
Fermetraverð
22. des. 2021
39.550.000 kr.
39.000.000 kr.
98.3 m²
396.745 kr.
Byggt á upplýsingum úr Þjóðskrá Íslands frá 2006-2026
Byggð fasteignasala

Byggð fasteignasala

Skipagata 16, 600 Akureyri
phone