Upplýsingar
Verðsaga
Byggt 1966
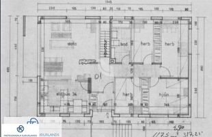
275,9 m²
11 herb.
4 baðherb.
7 svefnh.
Þvottahús
Sérinngangur
Aukaíbúð
Lýsing
Fasteignasala Suðurlands (s 483 3424) kynnir í einkasölu: Reykjabraut 20, Þorlákshöfn. Fallega og mjög mikið endurnýjaða 276m2 eign sem telur
117,5m2 efri sérhæð og 3 AUKA ÍBÚÐIR; tvær á neðri hæð hússins og glænýja 2ja herbergja íbúð á lóð. Verulega góðir tekjumöguleikar eru á útleigu íbúðanna!
Öll efri hæð hússins ásamt stórum hluta í aukaíbúðunum var allt endurnýjað á árunum 2018 og 2019.
Húsið hefur fengið gott viðhald undanfarið; múrun og málningu, skipt um rennur, stigi pússaður ofl.
**Bóka má skoðun og fá allar nánari upplýsingar á fastsud@gmail.com og í síma 483 3242**
Steyptur stigi liggur upp á Efri sérhæðina sem telur:
* Flísalagða forstofu. Fyrir framan forstofu er góður sérsmíðaður skápur frá Fagus.
* Mjög fallegt eldhús með nýrri innréttingu með stórri eyju frá Fríform og vönduðum, nýjum heimilistækjum.
* Rúmgóða stofu og borðstofu. Utangengt er á góðar svalir (eftir að setja handrið).
* 4 góð svefnherbergi. Í öllum herbergjum eru nýjir fataskápar frá Fagus.
* Mjög fallegt, nýupptekið, baðherbergi með hvítri innréttingu, baðkari með sturtu-þili og flísum á gólfi og veggjum.
* Þvottahús með vinnuborði.
** Á efri hæð hússins er búið að endurnýja allar vatnslagnir, allar rafmagnslagnir, allt gler og glugga. Allar innihurðar eru nýlegar. Alls staðar er nýtt, fallegt harðparket, nema á blautflötum eru nýjar flísar.
Á neðri hæð hússins eru tvær, 2ja herbergja, mikið endurnýjaðar íbúðir með sér inngang, sem eru í útleigu. Íbúðirnar eru einni kjörnar til notkunar fyrir stærri fjölskyldur með efri sérhæðinni:
Íbúð 1 (í útleigu): Algjörlega endurnýjað baðherbergi með hvítri innréttingu, sturtu og flísum á gólfi og veggjum. Eldhús með nýrri, hvítri innréttingu. Rúmgott svefnherbergi og stofu. Nýtt harðparket er á stofu, gangi og eldhúsi.
Þvottavél er staðsett í eldhúsi.
Íbúð 2 (í útleigu): Baðherbergi með nýjum sturtuklefa og flísum á gólfi. Eldhús með fínni innréttingu. Þvottavélartengill í eldhúsi. Rúmgott svefnherbergi með nýjum fataskáp og stofu með nýju harðparketi.
Góð geymsla, ca 12m2.
Íbúð 3 (í útleigu): Glæný 2ja herbergja íbúð (merkt bílskúr á teikningum)með fallegri eldhúsinnréttingu, baðherbergi, stofu og stóru svefnherbergi.
SJÓN ER SÖGU RÍKARI !
FASTEIGNASALA SUÐURLANDS HEFUR VEITT VANDAÐA OG GÓÐA ÞJÓNUSTU SÍÐAN 2003 !
Fasteignasala Suðurlands, Unubakka 3b, Þorlákshöfn.
Heimasíða fasteignasölunnar: https://www.eignin.is/
Sími 483 3424
Í Þorlákshöfn er þjónustustig mjög gott - hagnýtar upplýsingar:
Verslun og þjónusta: Hér má m.a. finna:
KRÓNU VERSLUN
Apótekarann.
Hárgreiðslustofuna Kompuna (facebook: kompan klippistofa)
Rakarstofu Kjartans (facebook: kjartan rakari)
Vínbúðina.
Veitingastaðina: Thai Sakhon Restaurant (facebook: thai sakhon restaurant)
Svarta Sauðinn (facebook: svarti sauðurinn)
Skálann, sem jafnframt er sölustaður Orkunnar. Einnig er hér ÓB-stöð.
Caffe Bristól.
Hér er mjög góð heilsugæsla.
Hér er tannlæknir.
Í Ráðhúsi bæjarins eru, auk skrifstofu sveitarfélagsins:
Mjög gott bókasafn (facebook: Bæjarbókasafn Ölfuss) Landsbankinn
Tómstundir og afþreying:
Íþróttaiðkun í Þorlákshöfn er gríðarlega öflug og þá helst meðal barna og unglinga og er aðstaða til íþróttaiðkunar öll til mikillar fyrirmyndar.
Frá fjögurra ára aldri er í boði að iðka fótbolta (aegirfc.is), fimleika (facebook: fimleikadeild Þórs), körfubolta (facebook: Þór Þorlákshöfn) og frjálsar, ásamt því að iðkaður er badminton. Hér er svo einnig Litli íþróttaskólinn á vegum fimleikadeildarinnar fyrir börn frá eins árs aldri.
Motorcrossá braut rétt utan við bæinn.
Hestamennska (facebook: hestamannafélagið háfeti) með fallegum reiðleiðum allt um kring
Golf (facebook: golfklúbbur Þorlákshafnar) á rómuðum golfvelli sem staðsettur er í jaðri byggðarinnar, rétt við sjávarsíðuna.
Í íþróttamiðstöðinni er mjög góð líkamsræktar-aðstaða þar sem hægt er að komast í einka- þjálfun, spinning, hóptíma, líkamsrækt fyrir eldri borgara o.m.fl. Þar er að finna góða sundaðstöðumeð útilaug, heitum pottum, vaðlaug og skemmtilegri innilaug fyrir fjölskyldufólk. Jógastúdíó (Jógahornið). Öflug sjúkraþjálfun.
Afþreying er hér af ýmsum toga:
hér má meðal annars finna: Fallegt útivistarsvæði við vitann með útsýnispalli og göngustíg meðfram bjarginu í einstakri náttúrufegurð. Heilsustíg má finna í bænum þar sem líkamsræktartæki eru við göngu/hlaupastíga.
Hér er æðisleg strönd sem mikið er mikið notuð til útivistar og þar má oft sjá menn á brimbrettum, en slíkt er gott að stunda hér. Í sjónum við útsýnispallinn er einn vinsælasta staður til brimbrettaiðkunar á Íslandi.
Blackbeach tours (www.blackbeachtours.is) er afþreyingar fyrirtæki sem býður upp á fjórhjólaferðir bæði í fjöruna og um hraunið, RIB bátaferðir meðfram bjarginu og adrenalínferðir, snekkjuleigu og sjóstöng og jógaferðir úti í náttúrunni.
Einnig er hér: Öflugt leikfélag (facebook: leikfélag ölfuss).
Hinir ýmsu kórar (facebook: Tónar og Trix, Kyrjukórinn, ofl.) Einn stærsti Kiwanisklúbbur landsins (facebook: Kiwanisklúbburinn Ölver) O.sfr. o.s.frv.
** Allar helstu fréttir úr sveitarfélaginu má finna á www.hafnarfrettir.is
117,5m2 efri sérhæð og 3 AUKA ÍBÚÐIR; tvær á neðri hæð hússins og glænýja 2ja herbergja íbúð á lóð. Verulega góðir tekjumöguleikar eru á útleigu íbúðanna!
Öll efri hæð hússins ásamt stórum hluta í aukaíbúðunum var allt endurnýjað á árunum 2018 og 2019.
Húsið hefur fengið gott viðhald undanfarið; múrun og málningu, skipt um rennur, stigi pússaður ofl.
**Bóka má skoðun og fá allar nánari upplýsingar á fastsud@gmail.com og í síma 483 3242**
Steyptur stigi liggur upp á Efri sérhæðina sem telur:
* Flísalagða forstofu. Fyrir framan forstofu er góður sérsmíðaður skápur frá Fagus.
* Mjög fallegt eldhús með nýrri innréttingu með stórri eyju frá Fríform og vönduðum, nýjum heimilistækjum.
* Rúmgóða stofu og borðstofu. Utangengt er á góðar svalir (eftir að setja handrið).
* 4 góð svefnherbergi. Í öllum herbergjum eru nýjir fataskápar frá Fagus.
* Mjög fallegt, nýupptekið, baðherbergi með hvítri innréttingu, baðkari með sturtu-þili og flísum á gólfi og veggjum.
* Þvottahús með vinnuborði.
** Á efri hæð hússins er búið að endurnýja allar vatnslagnir, allar rafmagnslagnir, allt gler og glugga. Allar innihurðar eru nýlegar. Alls staðar er nýtt, fallegt harðparket, nema á blautflötum eru nýjar flísar.
Á neðri hæð hússins eru tvær, 2ja herbergja, mikið endurnýjaðar íbúðir með sér inngang, sem eru í útleigu. Íbúðirnar eru einni kjörnar til notkunar fyrir stærri fjölskyldur með efri sérhæðinni:
Íbúð 1 (í útleigu): Algjörlega endurnýjað baðherbergi með hvítri innréttingu, sturtu og flísum á gólfi og veggjum. Eldhús með nýrri, hvítri innréttingu. Rúmgott svefnherbergi og stofu. Nýtt harðparket er á stofu, gangi og eldhúsi.
Þvottavél er staðsett í eldhúsi.
Íbúð 2 (í útleigu): Baðherbergi með nýjum sturtuklefa og flísum á gólfi. Eldhús með fínni innréttingu. Þvottavélartengill í eldhúsi. Rúmgott svefnherbergi með nýjum fataskáp og stofu með nýju harðparketi.
Góð geymsla, ca 12m2.
Íbúð 3 (í útleigu): Glæný 2ja herbergja íbúð (merkt bílskúr á teikningum)með fallegri eldhúsinnréttingu, baðherbergi, stofu og stóru svefnherbergi.
SJÓN ER SÖGU RÍKARI !
FASTEIGNASALA SUÐURLANDS HEFUR VEITT VANDAÐA OG GÓÐA ÞJÓNUSTU SÍÐAN 2003 !
Fasteignasala Suðurlands, Unubakka 3b, Þorlákshöfn.
Heimasíða fasteignasölunnar: https://www.eignin.is/
Sími 483 3424
Í Þorlákshöfn er þjónustustig mjög gott - hagnýtar upplýsingar:
Verslun og þjónusta: Hér má m.a. finna:
KRÓNU VERSLUN
Apótekarann.
Hárgreiðslustofuna Kompuna (facebook: kompan klippistofa)
Rakarstofu Kjartans (facebook: kjartan rakari)
Vínbúðina.
Veitingastaðina: Thai Sakhon Restaurant (facebook: thai sakhon restaurant)
Svarta Sauðinn (facebook: svarti sauðurinn)
Skálann, sem jafnframt er sölustaður Orkunnar. Einnig er hér ÓB-stöð.
Caffe Bristól.
Hér er mjög góð heilsugæsla.
Hér er tannlæknir.
Í Ráðhúsi bæjarins eru, auk skrifstofu sveitarfélagsins:
Mjög gott bókasafn (facebook: Bæjarbókasafn Ölfuss) Landsbankinn
Tómstundir og afþreying:
Íþróttaiðkun í Þorlákshöfn er gríðarlega öflug og þá helst meðal barna og unglinga og er aðstaða til íþróttaiðkunar öll til mikillar fyrirmyndar.
Frá fjögurra ára aldri er í boði að iðka fótbolta (aegirfc.is), fimleika (facebook: fimleikadeild Þórs), körfubolta (facebook: Þór Þorlákshöfn) og frjálsar, ásamt því að iðkaður er badminton. Hér er svo einnig Litli íþróttaskólinn á vegum fimleikadeildarinnar fyrir börn frá eins árs aldri.
Motorcrossá braut rétt utan við bæinn.
Hestamennska (facebook: hestamannafélagið háfeti) með fallegum reiðleiðum allt um kring
Golf (facebook: golfklúbbur Þorlákshafnar) á rómuðum golfvelli sem staðsettur er í jaðri byggðarinnar, rétt við sjávarsíðuna.
Í íþróttamiðstöðinni er mjög góð líkamsræktar-aðstaða þar sem hægt er að komast í einka- þjálfun, spinning, hóptíma, líkamsrækt fyrir eldri borgara o.m.fl. Þar er að finna góða sundaðstöðumeð útilaug, heitum pottum, vaðlaug og skemmtilegri innilaug fyrir fjölskyldufólk. Jógastúdíó (Jógahornið). Öflug sjúkraþjálfun.
Afþreying er hér af ýmsum toga:
hér má meðal annars finna: Fallegt útivistarsvæði við vitann með útsýnispalli og göngustíg meðfram bjarginu í einstakri náttúrufegurð. Heilsustíg má finna í bænum þar sem líkamsræktartæki eru við göngu/hlaupastíga.
Hér er æðisleg strönd sem mikið er mikið notuð til útivistar og þar má oft sjá menn á brimbrettum, en slíkt er gott að stunda hér. Í sjónum við útsýnispallinn er einn vinsælasta staður til brimbrettaiðkunar á Íslandi.
Blackbeach tours (www.blackbeachtours.is) er afþreyingar fyrirtæki sem býður upp á fjórhjólaferðir bæði í fjöruna og um hraunið, RIB bátaferðir meðfram bjarginu og adrenalínferðir, snekkjuleigu og sjóstöng og jógaferðir úti í náttúrunni.
Einnig er hér: Öflugt leikfélag (facebook: leikfélag ölfuss).
Hinir ýmsu kórar (facebook: Tónar og Trix, Kyrjukórinn, ofl.) Einn stærsti Kiwanisklúbbur landsins (facebook: Kiwanisklúbburinn Ölver) O.sfr. o.s.frv.
** Allar helstu fréttir úr sveitarfélaginu má finna á www.hafnarfrettir.is
Ár
Fasteignamat
Kaupverð
Stærð
Fermetraverð
12. maí. 2023
62.100.000 kr.
83.000.000 kr.
235 m²
353.191 kr.
25. mar. 2021
42.650.000 kr.
55.900.000 kr.
235 m²
237.872 kr.
23. feb. 2017
25.800.000 kr.
18.000.000 kr.
235 m²
76.596 kr.
12. mar. 2010
24.000.000 kr.
20.000.000 kr.
235 m²
85.106 kr.
Byggt á upplýsingum úr Þjóðskrá Íslands frá 2006-2025