Upplýsingar
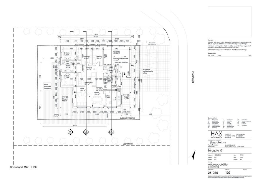
205,5 m²
5 herb.
2 baðherb.
4 svefnh.
Þvottahús
Sérinngangur
Lýsing
Glæsilegt einnar hæðar 205 fm einbýli í smíðum á frábærum stað í Þorlákshöfn, leikskóli og öll helsta þjónusta í göngufæri.
Í húsinu er m.a. gert ráð fyrir 4 rúmgóðum svefnherbergjum, innbyggðum 37 fm bílskúr tvö baðherbergi og fleira. Óskráð 20 fm geymsluloft. Húsið verður til afhendingar innan 3 mánaða, tilbúið að utan með viðhaldsfrírri fíber sements klæðningu og hitameðhöndlaðri timburklæðningu ( thermowood), lóð grófjöfnuð. Að innan verður húsið tilbúið til innréttinga. Gluggar með þreföldu gleri, ál/tré. Aukin einangrun er í öllu húsinu og verður það loft þéttleikaprófað fyrir afhendingu. Vönduð þakklæðning, RUUKI classic með snjóstoppara og rennum í stíl.
Lóð verður grófjöfnuð.
Möguleiki er að fá húsið tæplega tilbúið til innréttinga eða lengra komið í samráði við kaupendur og breytist verðið þá til hækkunar eða lækkunar.
Allar nánari upplýsingar veitir Ásmundur Skeggjason fasteignasali as@hofdi.is Gsm 895 3000.-
Nánari lýsing :
Hár orkuflokkur og þar af leiðandi mikill sparnaður í hitun. (B eða B low)
Góð einangrun:
250 mm í þaki
200 mm í veggjum
Sökklar einangraðir að innan og utan (50 + 100 mm)
Þrefalt gler í gluggum og hurðum
Mikið lagt upp úr gæðum, í hönnun, efnivið, orkusparnaði, framkvæmd og gæða frágangur.
Opið flæði eldhús, borðstofa og stofa
Rými vel nýtt og gott flæði um hús
Gert ráð fyrir heitum pott
Opið upp í loft
2.6 metra lofthæð í herbergjum
4 svefnherbergi og 2 af þeim stór
Góð hljóðvist, mikil einangrun og þykkir innveggir
Hágæða loftun, loftun fyrir veggi og þak samtengt
Viðbótar
Geymsluloft til viðbótar í bílageymslu - 9 m2
Geymsluloft til viðbótar inn í íbúð. – 11 m2
Möguleiki væri á að byggja sólskála með tilskyldum leyfum. .
Klæðning á útveggjum er viðhaldsfrí
Fiber sement plötur
Hitameðhöndlaður viður
Þakplötur á þaki með snjóstoppara
Viking ál/timbur gluggar/hurðir með þreföldu gleri
Afhent með staðfesta loftþéttleika prófun. Slíkt tryggir, minni líkur á rakamyndun og myglu, minna orkutap, betri hljóðeinangrun og vörn gegn mengun að utan.
Í húsinu er m.a. gert ráð fyrir 4 rúmgóðum svefnherbergjum, innbyggðum 37 fm bílskúr tvö baðherbergi og fleira. Óskráð 20 fm geymsluloft. Húsið verður til afhendingar innan 3 mánaða, tilbúið að utan með viðhaldsfrírri fíber sements klæðningu og hitameðhöndlaðri timburklæðningu ( thermowood), lóð grófjöfnuð. Að innan verður húsið tilbúið til innréttinga. Gluggar með þreföldu gleri, ál/tré. Aukin einangrun er í öllu húsinu og verður það loft þéttleikaprófað fyrir afhendingu. Vönduð þakklæðning, RUUKI classic með snjóstoppara og rennum í stíl.
Lóð verður grófjöfnuð.
Möguleiki er að fá húsið tæplega tilbúið til innréttinga eða lengra komið í samráði við kaupendur og breytist verðið þá til hækkunar eða lækkunar.
Allar nánari upplýsingar veitir Ásmundur Skeggjason fasteignasali as@hofdi.is Gsm 895 3000.-
Nánari lýsing :
Hár orkuflokkur og þar af leiðandi mikill sparnaður í hitun. (B eða B low)
Góð einangrun:
250 mm í þaki
200 mm í veggjum
Sökklar einangraðir að innan og utan (50 + 100 mm)
Þrefalt gler í gluggum og hurðum
Mikið lagt upp úr gæðum, í hönnun, efnivið, orkusparnaði, framkvæmd og gæða frágangur.
Opið flæði eldhús, borðstofa og stofa
Rými vel nýtt og gott flæði um hús
Gert ráð fyrir heitum pott
Opið upp í loft
2.6 metra lofthæð í herbergjum
4 svefnherbergi og 2 af þeim stór
Góð hljóðvist, mikil einangrun og þykkir innveggir
Hágæða loftun, loftun fyrir veggi og þak samtengt
Viðbótar
Geymsluloft til viðbótar í bílageymslu - 9 m2
Geymsluloft til viðbótar inn í íbúð. – 11 m2
Möguleiki væri á að byggja sólskála með tilskyldum leyfum. .
Klæðning á útveggjum er viðhaldsfrí
Fiber sement plötur
Hitameðhöndlaður viður
Þakplötur á þaki með snjóstoppara
Viking ál/timbur gluggar/hurðir með þreföldu gleri
Afhent með staðfesta loftþéttleika prófun. Slíkt tryggir, minni líkur á rakamyndun og myglu, minna orkutap, betri hljóðeinangrun og vörn gegn mengun að utan.