Löggiltir fasteignasalar innan Félags fasteignasala:
Hannes Steindórsson
Bogi Molby Pétursson
Guðrún Antonsdóttir
Heimir Hallgrímsson
Hrafnkell P. H. Pálmason
Viðar Marinósson
Elías Haraldsson
Kristján Þórir Hauksson
Albert Bjarni Úlfarsson
Ragnar Þorsteinsson
Þórey Ólafsdóttir
Andri Freyr Halldórsson
Upplýsingar
Verðsaga
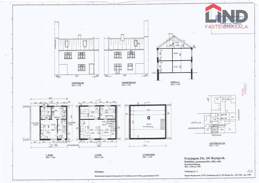
Byggt 1927
102,8 m²
3 herb.
1 baðherb.
2 svefnh.
Þvottahús
Sameiginl. inngangur
Lýsing
Hrafnkell á Lind kynnir þessa virkilega björtu og fallega íbúð við Freyjugötu 25C í Þingholtunum í Reykjavík.
Íbúðin hefur verið mikið endurnýjuð á einstaklega vandaðan og smekklagan máta. Svefnherbergi á 2. hæð er í dag nýtt sem stofa, hjónaherbergi er hluti af risi.
Gólfflötur er þó töluvert stærri þar sem mikilli hluti efri hæðar er undir súð. Skemmtilegur garður og útisvæði er við enda hússins.
Einstaklega falleg íbúð á þessum vinsæla og skemmtilega stað nálægt miðbæ Reykjavíkur.
*LAUS TIL AFHENDINGAR VIÐ KAUPSAMNING*
Nánari upplýsingar og bóka skoðun:
Hrafnkell P. H. Pálmason Löggiltur fasteignasali, í síma 690 8236, tölvupóstur hrafnkell@fastlind.is.
Fyrirhugað fasteignamat 2026 er kr. 80.850.000.-
Nánari lýsing:
Gengið er inn um sameiginlegan inngang frá götu með neðri hæð og upp á 2. hæð.
Aðalrými íbúðarinnar er opið og skemmtilegt með björtu og fallegu opnu eldhúsi með nýlegri hvítri innréttingu og eyju. Vönduð tæki, niðurfellt spanhelluborð, undirlímdur vaskur, innbyggður ísskápur, uppþvottavél og vínkælir.
Skv. teikningu er svefnherbergi á aðalhæðinni en það er í dag nýtt sem stofa, auðveldlega mætti breyta því í herbergi.
Stofan og alrýmið er sannarlega hjarta hússins með fallegu parketi á gólfum og góðu útsýni.
Baðherbergið hefur verið endurnýjað, er stórt og rúmgott með gólfhita, flísum á gólfum og veggjum. Fallegar innréttingar og góð sturta. Tengi fyrir þvottavél og þurrkara. Opnanlegur gluggi.
Úr alrými er svo gengið uppí risið um fallegan stiga með kókosteppi.
Þegar komið er upp stigann tekur við opið rými sem í dag er nýtt sem gestaherbergi.
Innaf því rými er svo rúmgott og fallegt hjónaherbergi.
Rishæðin er skráð 25,9 fm en gólfflötur er í heildina um 60 fm.
Vinnustofa/Sérgeymsla á lóðinni, 15,1 fm., var endurnýjuð á síðasta ári. Hægt að nýta sem vinnustofu og geymsla.
Eignin sem er í tvíbýlishúsi er á tveimur hæðum og er skráð 102,8 m², þar af er íbúðin 87,7 m² og geymsla á lóð 15,1 m².
Skv. seljanda var íbúðin mikið endurnýjuð á árunum 2020-2021 þegar skipulagi var breytt á aðalhæð, m.a. voru útveggir eingangraðir og múraðir uppá nýtt, gólfhiti lagður, nýtt eldhús og öll gólfefni endurnýjuð ásamt lögnum og rafmagni. Baðherbergi var endurnýjað 2010.
Veggir voru einangraðir að innan og múraðir, gólf flotað, loft einangrað og loftun sett upp. Loftið timburklætt ásamt tveimum veggjum. Nýr opnanlegur gluggi settur og timbur bæsað. 2017 var einangrað að utanverðu, settar rennur og nýtt þak.
Húsið sjálft virðist í góðu ásigkomulagi, var sprunguviðgert og málað 2010, skipt um þakjárn, rennur og niðurföll, gluggar og gler endurnýjað.
Lóðin á bakvið húsið er sameiginleg.
Staðsetningin er ákjósanleg í rólegu hverfi en samt nálægt miðbænum og þar að leiðandi stutt í alla þjónustu.
Freyjugata 25C, 101 Reykjavík, nánar tiltekið eign merkt 02-01, fastanúmer 223-8690 ásamt öllu því sem eigninni fylgir, þar með talið tilheyrandi lóðar og sameignarréttindi.
Eignin Freyjugata 25 er skráð sem hér segir hjá FMR: Eign 223-8690, birt stærð 102.8 fm.
Nánari upplýsingar veitir Hrafnkell P. H. Pálmason Löggiltur fasteignasali, í síma 690 8236, tölvupóstur hrafnkell@fastlind.is.
-----------------------------------------------------------------------
Gjöld sem kaupandi þarf að standa straum af vegna kaupanna:
1. Stimpilgjald af kaupsamningi - 0.8% af heildarfasteignamati / 1.6% fyrir lögaðila
Fyrstu kaup - 0,4% af heildarfasteignamati
2. Þinglýsingagjald af kaupsamningi, veðskuldabréfi, veðleyfi o.fl.- kr. 2.700 af hverju skjali.
3. Lántökugjald lánastofnunar
4. Umsýsluþóknun til fasteignasölu, sbr.kauptilboð.
Íbúðin hefur verið mikið endurnýjuð á einstaklega vandaðan og smekklagan máta. Svefnherbergi á 2. hæð er í dag nýtt sem stofa, hjónaherbergi er hluti af risi.
Gólfflötur er þó töluvert stærri þar sem mikilli hluti efri hæðar er undir súð. Skemmtilegur garður og útisvæði er við enda hússins.
Einstaklega falleg íbúð á þessum vinsæla og skemmtilega stað nálægt miðbæ Reykjavíkur.
*LAUS TIL AFHENDINGAR VIÐ KAUPSAMNING*
Nánari upplýsingar og bóka skoðun:
Hrafnkell P. H. Pálmason Löggiltur fasteignasali, í síma 690 8236, tölvupóstur hrafnkell@fastlind.is.
Fyrirhugað fasteignamat 2026 er kr. 80.850.000.-
Nánari lýsing:
Gengið er inn um sameiginlegan inngang frá götu með neðri hæð og upp á 2. hæð.
Aðalrými íbúðarinnar er opið og skemmtilegt með björtu og fallegu opnu eldhúsi með nýlegri hvítri innréttingu og eyju. Vönduð tæki, niðurfellt spanhelluborð, undirlímdur vaskur, innbyggður ísskápur, uppþvottavél og vínkælir.
Skv. teikningu er svefnherbergi á aðalhæðinni en það er í dag nýtt sem stofa, auðveldlega mætti breyta því í herbergi.
Stofan og alrýmið er sannarlega hjarta hússins með fallegu parketi á gólfum og góðu útsýni.
Baðherbergið hefur verið endurnýjað, er stórt og rúmgott með gólfhita, flísum á gólfum og veggjum. Fallegar innréttingar og góð sturta. Tengi fyrir þvottavél og þurrkara. Opnanlegur gluggi.
Úr alrými er svo gengið uppí risið um fallegan stiga með kókosteppi.
Þegar komið er upp stigann tekur við opið rými sem í dag er nýtt sem gestaherbergi.
Innaf því rými er svo rúmgott og fallegt hjónaherbergi.
Rishæðin er skráð 25,9 fm en gólfflötur er í heildina um 60 fm.
Vinnustofa/Sérgeymsla á lóðinni, 15,1 fm., var endurnýjuð á síðasta ári. Hægt að nýta sem vinnustofu og geymsla.
Eignin sem er í tvíbýlishúsi er á tveimur hæðum og er skráð 102,8 m², þar af er íbúðin 87,7 m² og geymsla á lóð 15,1 m².
Skv. seljanda var íbúðin mikið endurnýjuð á árunum 2020-2021 þegar skipulagi var breytt á aðalhæð, m.a. voru útveggir eingangraðir og múraðir uppá nýtt, gólfhiti lagður, nýtt eldhús og öll gólfefni endurnýjuð ásamt lögnum og rafmagni. Baðherbergi var endurnýjað 2010.
Veggir voru einangraðir að innan og múraðir, gólf flotað, loft einangrað og loftun sett upp. Loftið timburklætt ásamt tveimum veggjum. Nýr opnanlegur gluggi settur og timbur bæsað. 2017 var einangrað að utanverðu, settar rennur og nýtt þak.
Húsið sjálft virðist í góðu ásigkomulagi, var sprunguviðgert og málað 2010, skipt um þakjárn, rennur og niðurföll, gluggar og gler endurnýjað.
Lóðin á bakvið húsið er sameiginleg.
Staðsetningin er ákjósanleg í rólegu hverfi en samt nálægt miðbænum og þar að leiðandi stutt í alla þjónustu.
Freyjugata 25C, 101 Reykjavík, nánar tiltekið eign merkt 02-01, fastanúmer 223-8690 ásamt öllu því sem eigninni fylgir, þar með talið tilheyrandi lóðar og sameignarréttindi.
Eignin Freyjugata 25 er skráð sem hér segir hjá FMR: Eign 223-8690, birt stærð 102.8 fm.
Nánari upplýsingar veitir Hrafnkell P. H. Pálmason Löggiltur fasteignasali, í síma 690 8236, tölvupóstur hrafnkell@fastlind.is.
-----------------------------------------------------------------------
Gjöld sem kaupandi þarf að standa straum af vegna kaupanna:
1. Stimpilgjald af kaupsamningi - 0.8% af heildarfasteignamati / 1.6% fyrir lögaðila
Fyrstu kaup - 0,4% af heildarfasteignamati
2. Þinglýsingagjald af kaupsamningi, veðskuldabréfi, veðleyfi o.fl.- kr. 2.700 af hverju skjali.
3. Lántökugjald lánastofnunar
4. Umsýsluþóknun til fasteignasölu, sbr.kauptilboð.
Ár
Fasteignamat
Kaupverð
Stærð
Fermetraverð
27. feb. 2024
68.100.000 kr.
80.800.000 kr.
102.8 m²
785.992 kr.
11. ágú. 2022
51.550.000 kr.
76.000.000 kr.
102.8 m²
739.300 kr.
24. jún. 2010
22.950.000 kr.
18.600.000 kr.
102.8 m²
180.934 kr.
Byggt á upplýsingum úr Þjóðskrá Íslands frá 2006-2025