Löggiltir fasteignasalar innan Félags fasteignasala:
Hannes Steindórsson
Bogi Molby Pétursson
Guðrún Antonsdóttir
Heimir Hallgrímsson
Hrafnkell P. H. Pálmason
Viðar Marinósson
Elías Haraldsson
Kristján Þórir Hauksson
Albert Bjarni Úlfarsson
Ragnar Þorsteinsson
Þórey Ólafsdóttir
Andri Freyr Halldórsson
Upplýsingar
Byggt 2024
108,2 m²
4 herb.
1 baðherb.
3 svefnh.
Þvottahús
Sameiginl. inngangur
Bílastæði
Lyfta
Opið hús: 15. nóvember 2025
kl. 13:00
til 16:00
Opið hús - laugardaginn og sunnudaginn 15 og 16 nóvember klukkan 13:00 - 16:00
Lýsing
Nýtt á skrá! *** Möguleiki á 25% aðstoð fyrir fyrstu kaupendur með ÞG Sjóð og 20% fyrir aðra en fyrstu kaupendur ***
ÞG Sjóður hjálpar þér að komast inn á fasteignamarkaðinn með því að fjárfesta fyrir allt að 25% af kaupverði eignar. Þú þarft einungis að eiga 10% í eigið fé til þess að geta keypt þér eign og að fá 65-70% lán hjá lánastofnun.
Nánari upplýsingar um ÞG Sjóð: www.tgsjodur.is
Bókið skoðun hjá: Heimir Hallgrímsson, lögg. fasteignasali / heimir@fastlind.is / 849-0672
LIND Fasteignasala og ÞG Verk kynna með stolti: Nýjar og glæsilegar íbúðir við Baughamar 21-25 í Hafnarfirði. Um er að ræða fjölbreyttar 2ja - 5 herbergja íbúðir í lyftuhúsi. Bílakjallari er staðsettur undir húsunum.Svalir eða sérafnotaflötur fylgir öllum íbúðum ásamt séreignageymslu í kjallara.
Húsið er steinsteypt og útveggir einangraðir að utan, klæddir með vönduðum álklæðningum sem tryggir lágmarks viðhald húsanna. Gluggar eru ál/tré kerfi og glerjaðir með K-gleri. Innveggir aðrir en steyptir eru úr hleðslusteini.
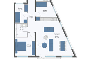
Íbúð 301: Er 116,9 fermetra 4ja herbergja íbúð á þriðju hæð með góðum 7,6 fermetra svölum og sérmerktu bílastæði í lokuðum bílakjallara. Þar af er geymsla 17,0 fermetrar. Afhending er áætluð mars-apríl 2026 en þó með fyrirvara um að öryggisúttekt sé komin á húsið.
Nánari lýsing: Íbúðin skiptist í anddyri/forstofu, eldhús við opið alrými/stofu, hjónaherbergi, tvö svefnherbergi, baðherbergi og þvottahús. Útgengi á svalir til suðvesturs úr stofu með frábæru útsýni.
Allar nánari upplýsingar á heimasíðu verkefnisins: https://tgverk.is/baughamar/
Hamranesið býður upp á einstaka nálægð við náttúruna, þar sem það liggur við friðlandið í Heiðmörk, stærsta útivistarsvæði höfuðborgarsvæðisins. Í næsta nágrenni eru einnig vinsæl útivistarsvæði og náttúruperlur, eins og Helgafell, Ástjörn og Hvaleyrarvatn, sem bjóða upp á fjölbreytta möguleika til útivistar og náttúruupplifana. Að auki er bæði leik- og grunnskóli í göngufæri, og stutt er í íþróttasvæði Hauka á Ásvöllum, sem býður upp á fjölbreytta aðstöðu fyrir íþróttaiðkun.
ÞG Verk hafa yfir 25 ára reynslu á byggingarmarkaði. Fyrirtækið leggur áherslu á vandaðar íbúðir, góða þjónustu og skil íbúða á réttum tíma. Áreiðanleiki, gæði og notagildi eru einkunnarorð ÞG verks og fyrirtækið kappkostar að eiga gott samstarf við viðskiptavini sína. Veldu traustan byggingaraðila sem leggur metnað í gæði og áreiðanleika.
BÓKIÐ SKOÐUN!
ALLAR NÁNARI UPPLÝSINGAR VEITA:
Heimir F. Hallgrímsson Í S: 849-0672 / HEIMIR@FASTLIND.IS
Innréttingar: Í eldhúsum og baðherbergjum eru HTH innréttingar frá Bræðrunum Ormsson. Eldhúsinnréttingar eru mismunandi útfærðar eftir íbúðum. Lýsing undir efri skápum í eldhúsum. Speglaskápar eru á aðalbaðherbergjum.
Eldhústæki: Íbúðunum fylgja vönduð eldhústæki af gerðinni Electrolux. Íbúðum er skilað með span helluborði, innbyggðum kæliskáp, innbyggðri uppþvottavél, blástursofni og viftu eða lofthengdum eyjuháfi þar sem það á við.
Hreinlætistæki: Salernisskál (Laufen) er vegghengd með innbyggðum vatnskassa. Sturtur eru með flísalögðum botni og hertu sturtugleri. Hreinlætistæki eru hitastýrð frá Damixa. Þvottahús eru ýmist innan baðherbergja eða í sér rými.
Seljandi áskilur sér allan rétt til að gera efnis-, tæknilegar- og útlits breytingar meðan á byggingaframkvæmd stendur.
Kaupandi greiðir skipulagsgjald sem nemur 0,3% af brunabótamati þegar það er lagt á.
Heimild seljanda til að breyta eignaskiptasamning sé þess þörf án þess þó að rýra eignarrétt kaupanda. Innréttingateikningar eru þær sem gilda ef misræmi er milli arkitektateikninga og innréttingateikninga og eru þær áritaðar og hluti samningsins.
Eignin afhendist skv meðfylgjandi skilalýsingu.
ÞG Sjóður hjálpar þér að komast inn á fasteignamarkaðinn með því að fjárfesta fyrir allt að 25% af kaupverði eignar. Þú þarft einungis að eiga 10% í eigið fé til þess að geta keypt þér eign og að fá 65-70% lán hjá lánastofnun.
Nánari upplýsingar um ÞG Sjóð: www.tgsjodur.is
Bókið skoðun hjá: Heimir Hallgrímsson, lögg. fasteignasali / heimir@fastlind.is / 849-0672
LIND Fasteignasala og ÞG Verk kynna með stolti: Nýjar og glæsilegar íbúðir við Baughamar 21-25 í Hafnarfirði. Um er að ræða fjölbreyttar 2ja - 5 herbergja íbúðir í lyftuhúsi. Bílakjallari er staðsettur undir húsunum.Svalir eða sérafnotaflötur fylgir öllum íbúðum ásamt séreignageymslu í kjallara.
Húsið er steinsteypt og útveggir einangraðir að utan, klæddir með vönduðum álklæðningum sem tryggir lágmarks viðhald húsanna. Gluggar eru ál/tré kerfi og glerjaðir með K-gleri. Innveggir aðrir en steyptir eru úr hleðslusteini.
Íbúð 301: Er 116,9 fermetra 4ja herbergja íbúð á þriðju hæð með góðum 7,6 fermetra svölum og sérmerktu bílastæði í lokuðum bílakjallara. Þar af er geymsla 17,0 fermetrar. Afhending er áætluð mars-apríl 2026 en þó með fyrirvara um að öryggisúttekt sé komin á húsið.
Nánari lýsing: Íbúðin skiptist í anddyri/forstofu, eldhús við opið alrými/stofu, hjónaherbergi, tvö svefnherbergi, baðherbergi og þvottahús. Útgengi á svalir til suðvesturs úr stofu með frábæru útsýni.
Allar nánari upplýsingar á heimasíðu verkefnisins: https://tgverk.is/baughamar/
Hamranesið býður upp á einstaka nálægð við náttúruna, þar sem það liggur við friðlandið í Heiðmörk, stærsta útivistarsvæði höfuðborgarsvæðisins. Í næsta nágrenni eru einnig vinsæl útivistarsvæði og náttúruperlur, eins og Helgafell, Ástjörn og Hvaleyrarvatn, sem bjóða upp á fjölbreytta möguleika til útivistar og náttúruupplifana. Að auki er bæði leik- og grunnskóli í göngufæri, og stutt er í íþróttasvæði Hauka á Ásvöllum, sem býður upp á fjölbreytta aðstöðu fyrir íþróttaiðkun.
ÞG Verk hafa yfir 25 ára reynslu á byggingarmarkaði. Fyrirtækið leggur áherslu á vandaðar íbúðir, góða þjónustu og skil íbúða á réttum tíma. Áreiðanleiki, gæði og notagildi eru einkunnarorð ÞG verks og fyrirtækið kappkostar að eiga gott samstarf við viðskiptavini sína. Veldu traustan byggingaraðila sem leggur metnað í gæði og áreiðanleika.
BÓKIÐ SKOÐUN!
ALLAR NÁNARI UPPLÝSINGAR VEITA:
Heimir F. Hallgrímsson Í S: 849-0672 / HEIMIR@FASTLIND.IS
Innréttingar: Í eldhúsum og baðherbergjum eru HTH innréttingar frá Bræðrunum Ormsson. Eldhúsinnréttingar eru mismunandi útfærðar eftir íbúðum. Lýsing undir efri skápum í eldhúsum. Speglaskápar eru á aðalbaðherbergjum.
Eldhústæki: Íbúðunum fylgja vönduð eldhústæki af gerðinni Electrolux. Íbúðum er skilað með span helluborði, innbyggðum kæliskáp, innbyggðri uppþvottavél, blástursofni og viftu eða lofthengdum eyjuháfi þar sem það á við.
Hreinlætistæki: Salernisskál (Laufen) er vegghengd með innbyggðum vatnskassa. Sturtur eru með flísalögðum botni og hertu sturtugleri. Hreinlætistæki eru hitastýrð frá Damixa. Þvottahús eru ýmist innan baðherbergja eða í sér rými.
Seljandi áskilur sér allan rétt til að gera efnis-, tæknilegar- og útlits breytingar meðan á byggingaframkvæmd stendur.
Kaupandi greiðir skipulagsgjald sem nemur 0,3% af brunabótamati þegar það er lagt á.
Heimild seljanda til að breyta eignaskiptasamning sé þess þörf án þess þó að rýra eignarrétt kaupanda. Innréttingateikningar eru þær sem gilda ef misræmi er milli arkitektateikninga og innréttingateikninga og eru þær áritaðar og hluti samningsins.
Eignin afhendist skv meðfylgjandi skilalýsingu.