Löggiltir fasteignasalar innan Félags fasteignasala:
Björn Guðmundsson
Berglind Jónasardóttir
Greta Huld Mellado
Vista
svg

707

svg

628  Skoðendur

svg

Skráð  10. nóv. 2025

hæð

Brekkugata 35 - 201

600 Akureyri

89.900.000 kr.

528.513 þ.kr./m2
Fasteignanúmer

F2289941

Fasteignamat

56.900.000 kr.

Brunabótamat

70.750.000 kr.

Áhvílandi

0 kr.

Arion banki – Reikna lán
Upplýsingar
svg
Byggt 1933
svg
170,1 m²
svg
5 herb.
svg
2 baðherb.
svg
4 svefnh.
svg
Þvottahús

Lýsing

    

Fasteignasalan Byggð 464-9955 

Brekkugata 35 - 201

Um er að ræða reisulegt steinsteypt tvíbýlishús á tveimur hæðum auk rishæð og kjallara. Tvær íbúðir eru í húsinu á tveimur fastanúmerum. Gengið er um sameiginlega innganga á fyrstu hæð að norðan og austan.
Eign með mikla möguleika á vinsælum stað miðsvæðis á Akureyri. 

-- Eigendur skoða skipti á eign í Reykjavík --

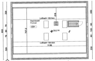
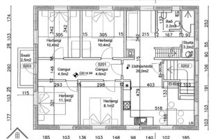
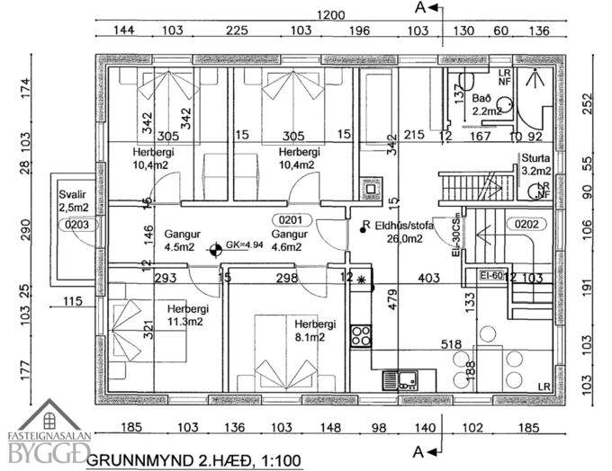
Um er að ræða efri hæð sem er skráð samtals 170 fm. að stærð og skiptist í eldhús og alrými, baðherbergi, herbergisgangur með fjórum herbergjum. Við enda gangs eru litlar svalir til suðurs. Rishæð er opið bjart rými og búið er að útbúa þar snyrtingu undir súð. Eigninni tilheyrir sér geymsla í kjallara og bílastæði á norðurhluta lóðar. 

Komið er inn um sameignarinngang og þaðan gengið upp á hæðina. 
Eldhús og alrými með parket á gólfi, eldhús er bjart með gluggum til tveggja átta og með góðum borðkrók. Opið frá eldhúsi yfir í borðkrók/sjónvarsphol. 
Baðherbergi er tvískipt með rennihurðum, þeas. sturturými, þar er flísalögð sturta, opnanlegur gluggi og vaskur. Snyrting með flísum á gólfi, veggir að hluta, vaskur, upphengt wc og opnanlegur gluggi. Framan við rýmin er handklæðaofn. Endurnýjað 2015. 

Til sameignar telst, þvottahús í kjallara, snyrting, rými 102, geymsla 103 á fyrstu hæð, stigagangar og inngangar austan og norðan við hús. Einnig er lóðin sameiginleg og óskipt fyrir báðar íbúðirnar. 

Áður en núverandi eigendur tóku við (fyrir 1994):
- Húsið upphaflega byggt sem verslun (Baldurshagi) á neðri hæð með íbúð á efri hæð.
- Breytingar gerðar 1954: Verslun breytt í íbúð, gluggum og hurðum breytt.
- Veggir í garði og að bílaplani steyptir ca. 1960–1970.
Frá 1994 til dagsins í dag:
- Gluggar: Allir gluggar smíðaðir af Hólmsteini Snædal á árunum 1995–2002. Þrefalt gler á efri hæð.
- Þak: Bárujárn, málað um aldamótin. Þykkt og í mjög góðu ástandi.
- Einangrun: Rishæð einangruð með tvöfaldri einangrun og klædd með panel fyrir aldamótin.
- Rafmagn: Endurnýjað að fullu á efri hæð og risi 2015. Endurnýjun hluta rafmagns á neðri hæð (1996 og 2015). Ný rafmagnstafla.
- Lagnir: Lagnir voru endurnýjaðar á efri hæð og rishæð 2015. Lagnir í geymslurýmum voru endurnýjaðar um 1996.
- Endurbygging efri hæðar: Arkitekt Logi Einarsson teiknaði nýja hæð 2015. Öll hæðin innréttuð upp á nýtt með burðarvirki að mestu leyti ósnertu. 
- Inngarðshönnun: Hólmsteinn Snædal og núverandi eigendur endurbættu garð, steypuvinnu og aðkomu. Steypt stétt frá garðhlíð að tröppum og tröppur lagfrærðar í kringum 2009. 
- Ytra byrði: Múrvinna og málun framkvæmd 1996 og um 2007.
- Innviðir: Parket og flísar, gólfhiti í votrýmum íbúðar. 
Viðhaldspunktar og ábendingar:
- Rakavandamál við eitt geymslurými í kjallara sem mælt er með að leysa með drenlögn.
- Svalir þurfa hækkanir samkvæmt reglum vegna gistileyfis (umsókn í ferli).

Annað:
- Bílastæði á norðurhluta lóðar tilheyrir eigninni
- Einn rafmagnsmælir og einn hitaveitumælir fyrir allt húsið.
- Fyrirhugað fasteignamat 2026 er kr. 61.900.000.-
- Húsið stendur í rólegu og skjólgóðu umhverfi með frábæru aðgengi að miðbænum (3–5 mínútur gangandi). Stutt í verslanir, skóla, sundlaug, bókasafn og fl. 
- Möguleiki að kaupa allt húsið, frekari upplýsingar á skrifstofu. 

Gjöld sem kaupandi þarf að standa straum af vegna kaupanna:  
1. Stimpilgjald af kaupsamningi - 0.8% af heildarfasteignamati / 1.6% fyrir lögaðila.    (0.4% við fyrstu kaup einstaklinga m.v. að lágmarki 50% eignarhlut).
2. Þinglýsingagjald af kaupsamningi, veðskuldabréfi, veðleyfi o.fl.- kr. 2.700 af hverju skjali.
3. Lántökugjald lánastofnunar -almennt 0,5-1,0% af höfuðstól skuldabréfs (nánari upplýsingar m.a. á heimasíðum lánastofnanna).
4. Umsýsluþóknun til fasteignasölu, sbr.kauptilboð. 

Frekari upplýsingar:
greta@byggd.is
olafur@byggd.is
bjorn@byggd.is

Skipagötu 16 á 2. hæð.
S:464 9955 


 

Byggð fasteignasala

Byggð fasteignasala

Skipagata 16, 600 Akureyri
phone
Byggð fasteignasala

Byggð fasteignasala

Skipagata 16, 600 Akureyri
phone