Löggiltir fasteignasalar innan Félags fasteignasala:
Sverrir Kristinsson
Kjartan Hallgeirsson
Guðlaugur Ingi Guðlaugsson
Daði Hafþórsson
Gunnar Helgi Einarsson
Gunnar Bergmann Jónsson
Lilja Guðmundsdóttir
Jenný Sandra Gunnarsdóttir
Kári Sighvatsson
Vista
fjölbýlishús

Súðarvogur 2 - Bókið skoðun

104 Reykjavík

79.990.000 kr.

897.755 þ.kr./m2
Fasteignanúmer

F2512100

Fasteignamat

74.150.000 kr.

Brunabótamat

54.010.000 kr.

Áhvílandi

0 kr.

Arion banki – Reikna lán
Upplýsingar
Verðsaga
svg
Byggt 2022
svg
89,1 m²
svg
3 herb.
svg
1 baðherb.
svg
2 svefnh.
svg
Þvottahús
svg
Sameiginl. inngangur
svg
Bílastæði
svg
Lyfta

Lýsing

Eignamiðlun kynnir:

Vel skipulögð og björt 89,1 fm þriggja herbergja íbúð á annarri hæð ásamt stæði í bílageymslu í nýlegu og vönduðu 62 íbúða lyftuhúsi í Vogahverfinu í Reykjavík. Verslun og þjónusta í næsta nágrenni ásamt frábærum hjóla- og gönguleiðum við Elliðaárvoginn. Mikil útivist allt í kring og fallegt umhverfi. Laugardalurinn í næsta nágrenni.

Samkvæmt skráningu HMS er birt flatarmál eignarinnar 89,1m², flatarmál íbúðarrýmis er 85,2m² og flatarmál geymslu er 3,9m². Bílastæði í bílageymslu merkt B32 fylgir íbúðinni. 
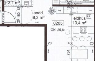
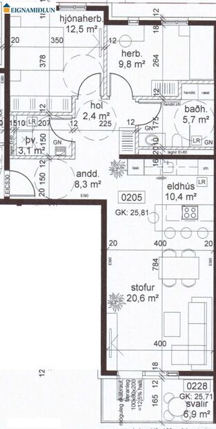
Eignin skiptist í anddyri, stofu, eldhús, tvö svefnherbergi, baðherbergi, þvottahús, geymslu og stæði í bílakjallara.
Smellið hér til að fá söluyfirlit sent strax

Nánari lýsing:
Anddyri / gangur
með vínilparketi á gólfi.
Stofa er rúmgóð og opin við eldhús, vínilparket á gólfi, gluggar til suðurs með útsýni yfir sameiginlegan garð. Stofa rúmar vel setustofu og borðstofu. Frá stofu er gengið út á sólríkar suðvestur svalir.
Eldhús með vínilparket á gólfi og fallegri sérsmíðaðri ítalskri eldhúsinnréttingu með eyju, borðplötur eru úr Silestone kvartssteini. Innbyggður kæliskápur með frysti, innbyggð uppþvottavél. Vandaður bakaraofn með sjálfhreinsibúnaði ásamt spanhelluborði.
Hjónaherbergi er rúmgott með vínilparketi á gólfi, skápum og gluggum til norðausturs.
Aukaherbergi er með vínilparketi á gólfi, skápum og gluggum til norðausturs.
Baðherbergi eru með flísum á gólfi og veggjum. Flísalögð sturta með glerþili og falleg innrétting við vask með speglaskáp fyrir ofan. Handklæðaofn, vegghengt salerni og útloftun. Gott skápapláss er á baði
Þvottahús með upphækkun fyrir þvottavél og þurrkara, skolvaski, hillum. Flísar á gólfi.
Gólfhiti er í íbúðinni allri ásamt gólfsíðum gluggum sem gera hana bjartari fyrir vikið. Mynddyrasími er í íbúðinni. Uppsett rafhleðslustöð í stæði í bílakjallara fylgir með. Sérgeymsla íbúðar er í sameign og er þar mikil lofthæð.

Nánari uppl.
Brynjar Þór Sumarliðason löggiltur fasteignasali og viðskiptafræðingur í síma 896 1168 - brynjar@eignamidlun.is

***
Ábyrg þjónusta í áratugi. Eignamiðlun var stofnuð 1957 og er elsta starfandi fasteignasala á Íslandi. Reynsla, heiðarleiki og þekking á fasteignamarkaðnum eru grunnur að farsælum viðskiptum. 

Eignamiðlun Grensásvegi 11, 108 Reykjavík - Opið frá kl. 9-17 mánudaga til fimmtudaga og 9-16 á föstudögum.

Heimasíða Eignamiðlunar

Eignamiðlun á Facebook

Eignamiðlun

Eignamiðlun

Grensásvegi 11, 108 Reykjavík
Ár
Fasteignamat
Kaupverð
Stærð
Fermetraverð
27. jún. 2022
26.900.000 kr.
69.500.000 kr.
89.1 m²
780.022 kr.
Byggt á upplýsingum úr Þjóðskrá Íslands frá 2006-2025
Eignamiðlun

Eignamiðlun

Grensásvegi 11, 108 Reykjavík