Löggiltir fasteignasalar innan Félags fasteignasala:
Hannes Steindórsson
Bogi Molby Pétursson
Guðrún Antonsdóttir
Heimir Hallgrímsson
Hrafnkell P. H. Pálmason
Viðar Marinósson
Elías Haraldsson
Kristján Þórir Hauksson
Albert Bjarni Úlfarsson
Ragnar Þorsteinsson
Þórey Ólafsdóttir
Andri Freyr Halldórsson
Upplýsingar
Verðsaga
Byggt 2022
139,4 m²
5 herb.
1 baðherb.
4 svefnh.
Sérinngangur
Laus strax
Lýsing
LIND Fasteignasala & Ragnhildur Finnbogadóttir, löggiltur fasteignasali, kynna til sölu:
Bjarta, fallega & vel skipulagða fimm herbergja íbúð á þriðju og efstu hæð með aukinni lofthæð og sérinngangi í nýlegu fjölbýli við Eskiás 2E, 210 Garðabæ.
Allar nánari upplýsingar veitir:
Ragnhildur Finnbogadóttir, löggiltur fasteignasali, í síma 772-2791 eða adda@fastlind.is
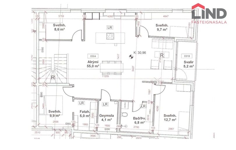
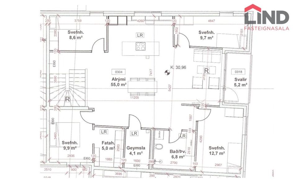
Skráð stærð eignar skv. FMR er 139,4 fm. Íbúðin er merkt 03-04.
-Fasteignamat skv. fmr fyrir árið 2026 er 102.250.000 kr.
Eignin skiptist í:
Forstofu, fjögur svefnherbergi, eldhús, stofu/borðstofu, baðherbergi og geymslu.
Nánari lýsing eignar:
Forstofa: með hvítum rúmgóðum fataskáp. Gólfið er teppalagt, sem og stiginn sem liggur upp í íbúðina.
Stofa & borðstofa: eru samliggjandi. Rýmið er bjart og rúmgott og er samlyggjandi með eldhúsi. Harðparket á gólfi.
-Útgengt er úr stofu út á svalir.
Eldhús: er með innréttingu frá NOBILIA með dökkri borðplötu og svörtum möttum vaski. Innbyggð uppþvottavél, ísskápur og bakaraofn í vinnuhæð. Eyja með spanhelluborði, góðu skúffuplássi og pláss er fyrir barstóla við eyju. Tæki í eldhúsi eru frá Whirlpool.
Baðherbergi: rúmgott, flísalagt hólf í gólf. Með hvítri upphengdri innréttingu með vaski og spegli með lýsingu fyrir ofan. Flísalögð sturta, handklæðaofn og upphengt salerni.
-Á baðherbergi er tengi fyrir þvottavél og þurrkara.
Hjónaherbergi: rúmgott með fataherbergi. Harðparket á gólfi.
Svefnherbergi 1, 2 & 3: með hvítum fataskápum og harðparketi á gólfi.
Geymsla: er innan íbúðar.
Sameiginleg hjóla og vagnageymsla í sameign.
Búið er að koma fyrir rafhleðslustöðvum fyrir íbúa.
Eskiás 2E er vel staðsett eign í Garðabæ þar sem stutt er í alla helstu þjónustu.
Allar nánari upplýsingar veitir:
Ragnhildur Finnbogadóttir, löggiltur fasteignasali, í síma 772-2791 eða adda@fastlind.is
Kostnaður kaupanda vegna kaupa: Stimpilgjald kaupsamnings einstaklinga er 0,8% og lögaðila 1,6% af fasteignamati eignar. Lántökugjald getur verið breytilegt eftir lánastofnunum, oftast 1%. Þinglýsingargjald er 2.700 fyrir hvert skjal. Þjónustu- og umsýslugjald til fasteignasölu skv. kauptilboði.
Um skoðunar- og aðgæsluskyldu: Í lögum um fasteignakaup nr. 40/2002 er kveðið á um ríka skoðunarskyldu kaupenda á fasteignum. Lind fasteignasala bendir öllum sem hugsa sér að kaupa, að kynna sér vel ástand fasteignarinnar við skoðun fyrir tilboðsgerð og leita til sérfræðinga um nánari ástandsskoðun ef þörf þykir.
Forsendur söluyfirlits: Söluyfirlit er samið af fasteignasala í samræmi við ákvæði laga nr. 70/2015. Þær upplýsingar sem fram koma í söluyfirliti þessu eru sóttar í opinberar skrár, til seljanda sjálfs og eftir atvikum til húsfélags. Seljandi veitir upplýsingar um eign í samræmi við upplýsingaskyldu laga um fasteignakaup nr. 40/2002. Fasteignasali sannreynir að þær upplýsingar séu réttar með sjónskoðun á eigninni. Fasteignasali getur ekki fullyrt um ástand og eiginleika þeirra hluta fasteigna sem ekki eru aðgengilegir og sjást ekki berum augum, t.d. lagnir, dren, skólp og þak.
Bjarta, fallega & vel skipulagða fimm herbergja íbúð á þriðju og efstu hæð með aukinni lofthæð og sérinngangi í nýlegu fjölbýli við Eskiás 2E, 210 Garðabæ.
Allar nánari upplýsingar veitir:
Ragnhildur Finnbogadóttir, löggiltur fasteignasali, í síma 772-2791 eða adda@fastlind.is
Skráð stærð eignar skv. FMR er 139,4 fm. Íbúðin er merkt 03-04.
-Fasteignamat skv. fmr fyrir árið 2026 er 102.250.000 kr.
Eignin skiptist í:
Forstofu, fjögur svefnherbergi, eldhús, stofu/borðstofu, baðherbergi og geymslu.
Nánari lýsing eignar:
Forstofa: með hvítum rúmgóðum fataskáp. Gólfið er teppalagt, sem og stiginn sem liggur upp í íbúðina.
Stofa & borðstofa: eru samliggjandi. Rýmið er bjart og rúmgott og er samlyggjandi með eldhúsi. Harðparket á gólfi.
-Útgengt er úr stofu út á svalir.
Eldhús: er með innréttingu frá NOBILIA með dökkri borðplötu og svörtum möttum vaski. Innbyggð uppþvottavél, ísskápur og bakaraofn í vinnuhæð. Eyja með spanhelluborði, góðu skúffuplássi og pláss er fyrir barstóla við eyju. Tæki í eldhúsi eru frá Whirlpool.
Baðherbergi: rúmgott, flísalagt hólf í gólf. Með hvítri upphengdri innréttingu með vaski og spegli með lýsingu fyrir ofan. Flísalögð sturta, handklæðaofn og upphengt salerni.
-Á baðherbergi er tengi fyrir þvottavél og þurrkara.
Hjónaherbergi: rúmgott með fataherbergi. Harðparket á gólfi.
Svefnherbergi 1, 2 & 3: með hvítum fataskápum og harðparketi á gólfi.
Geymsla: er innan íbúðar.
Sameiginleg hjóla og vagnageymsla í sameign.
Búið er að koma fyrir rafhleðslustöðvum fyrir íbúa.
Eskiás 2E er vel staðsett eign í Garðabæ þar sem stutt er í alla helstu þjónustu.
Allar nánari upplýsingar veitir:
Ragnhildur Finnbogadóttir, löggiltur fasteignasali, í síma 772-2791 eða adda@fastlind.is
Kostnaður kaupanda vegna kaupa: Stimpilgjald kaupsamnings einstaklinga er 0,8% og lögaðila 1,6% af fasteignamati eignar. Lántökugjald getur verið breytilegt eftir lánastofnunum, oftast 1%. Þinglýsingargjald er 2.700 fyrir hvert skjal. Þjónustu- og umsýslugjald til fasteignasölu skv. kauptilboði.
Um skoðunar- og aðgæsluskyldu: Í lögum um fasteignakaup nr. 40/2002 er kveðið á um ríka skoðunarskyldu kaupenda á fasteignum. Lind fasteignasala bendir öllum sem hugsa sér að kaupa, að kynna sér vel ástand fasteignarinnar við skoðun fyrir tilboðsgerð og leita til sérfræðinga um nánari ástandsskoðun ef þörf þykir.
Forsendur söluyfirlits: Söluyfirlit er samið af fasteignasala í samræmi við ákvæði laga nr. 70/2015. Þær upplýsingar sem fram koma í söluyfirliti þessu eru sóttar í opinberar skrár, til seljanda sjálfs og eftir atvikum til húsfélags. Seljandi veitir upplýsingar um eign í samræmi við upplýsingaskyldu laga um fasteignakaup nr. 40/2002. Fasteignasali sannreynir að þær upplýsingar séu réttar með sjónskoðun á eigninni. Fasteignasali getur ekki fullyrt um ástand og eiginleika þeirra hluta fasteigna sem ekki eru aðgengilegir og sjást ekki berum augum, t.d. lagnir, dren, skólp og þak.
Ár
Fasteignamat
Kaupverð
Stærð
Fermetraverð
3. okt. 2024
93.050.000 kr.
97.000.000 kr.
10304 m²
9.414 kr.
5. des. 2023
84.400.000 kr.
94.900.000 kr.
139.4 m²
680.775 kr.
Byggt á upplýsingum úr Þjóðskrá Íslands frá 2006-2025