Upplýsingar
Byggt 2024
140,8 m²
4 herb.
2 baðherb.
3 svefnh.
Þvottahús
Bílastæði
Lýsing
Eignaver 460-6060
Hulduholt 2a, íbúð 103 - NÝBYGGING. Laus til afhendingar strax.
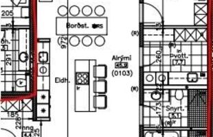
Glæsileg og vönduð fjögurra herbergja, 140,8 fm íbúð (þar af 12.8 fm geymsla) á 1. hæð í Hulduholti 2a.
Íbúðinni fylgir bílastæði í bílageymsl
Íbúðin er fjögurra herbergja og skiptist þannig; Inngangur, baðherbergi, þvottaherbergi, eldhús, stofa, tvö barnaherbergi og hjónaherbergi. Inn af hjónaherbergi er sér baðherbergi.
Íbúðinni fylgir geymsla í kjallara og eru verönd til suðurs og verönd til norðurs, ásamt sér afnotahluta á lóð við suðurhlið íbúðar.
Nánar:
Íbúðin afhendist fullfrágengin. Allar innréttingar eru sérsmíðaðar af Húsheild/Hyrnu og eru bekkjarplötur í eldhúsi og baðherbergjum úr steini.
Flísar eru á gólfum baðherbergja og þvottahúss, og flísar á veggjum baðherbergja, en harðparket er á öðrum gólfum.
Innihurðir íbúðar eru sérsmíðaðar af Húsheild/Hyrnu úr ljósri eik, það sama á við um allar innréttingar.
Kappalýsing er á baðherbergjum, svefnherbergjum og í alrými, loftskiptakerfi er í öllum íbúðum.
Hljóðdúkur í loftum og innfelld lýsing.
Allt neysluvatn fer í gegnum varmaskipti.
Mynd-dyrasími er í íbúðum.
Raflögn fyrir hleðslustöð við bílastæði.
Upplýsingar og skilalýsing fæst á skrifstofu Eignavers.
ATH. tölvuteiknaðar myndir í auglýsingu eru eingöngu til viðmiðunar.
Nánari upplýsingar veita:
Begga s: 845-0671 / begga@eignaver.is
Arnar s: 898-7011 / arnar@eignaver.is
Tryggvi s: 862-7919 / tryggvi@eignaver.is
Hulduholt 2a, íbúð 103 - NÝBYGGING. Laus til afhendingar strax.
Glæsileg og vönduð fjögurra herbergja, 140,8 fm íbúð (þar af 12.8 fm geymsla) á 1. hæð í Hulduholti 2a.
Íbúðinni fylgir bílastæði í bílageymsl
Íbúðin er fjögurra herbergja og skiptist þannig; Inngangur, baðherbergi, þvottaherbergi, eldhús, stofa, tvö barnaherbergi og hjónaherbergi. Inn af hjónaherbergi er sér baðherbergi.
Íbúðinni fylgir geymsla í kjallara og eru verönd til suðurs og verönd til norðurs, ásamt sér afnotahluta á lóð við suðurhlið íbúðar.
Nánar:
Íbúðin afhendist fullfrágengin. Allar innréttingar eru sérsmíðaðar af Húsheild/Hyrnu og eru bekkjarplötur í eldhúsi og baðherbergjum úr steini.
Flísar eru á gólfum baðherbergja og þvottahúss, og flísar á veggjum baðherbergja, en harðparket er á öðrum gólfum.
Innihurðir íbúðar eru sérsmíðaðar af Húsheild/Hyrnu úr ljósri eik, það sama á við um allar innréttingar.
Kappalýsing er á baðherbergjum, svefnherbergjum og í alrými, loftskiptakerfi er í öllum íbúðum.
Hljóðdúkur í loftum og innfelld lýsing.
Allt neysluvatn fer í gegnum varmaskipti.
Mynd-dyrasími er í íbúðum.
Raflögn fyrir hleðslustöð við bílastæði.
Upplýsingar og skilalýsing fæst á skrifstofu Eignavers.
ATH. tölvuteiknaðar myndir í auglýsingu eru eingöngu til viðmiðunar.
Nánari upplýsingar veita:
Begga s: 845-0671 / begga@eignaver.is
Arnar s: 898-7011 / arnar@eignaver.is
Tryggvi s: 862-7919 / tryggvi@eignaver.is