Upplýsingar
Byggt 2024
140,8 m²
4 herb.
2 baðherb.
3 svefnh.
Þvottahús
Útsýni
Sameiginl. inngangur
Bílastæði
Lyfta
Lýsing
Hvammur fasteignasala - Nánari upplýsingar veitir Sigurður H. Þrastarson s. 888-6661 eða siggithrastar@kaupa.is
***Nýbygging***
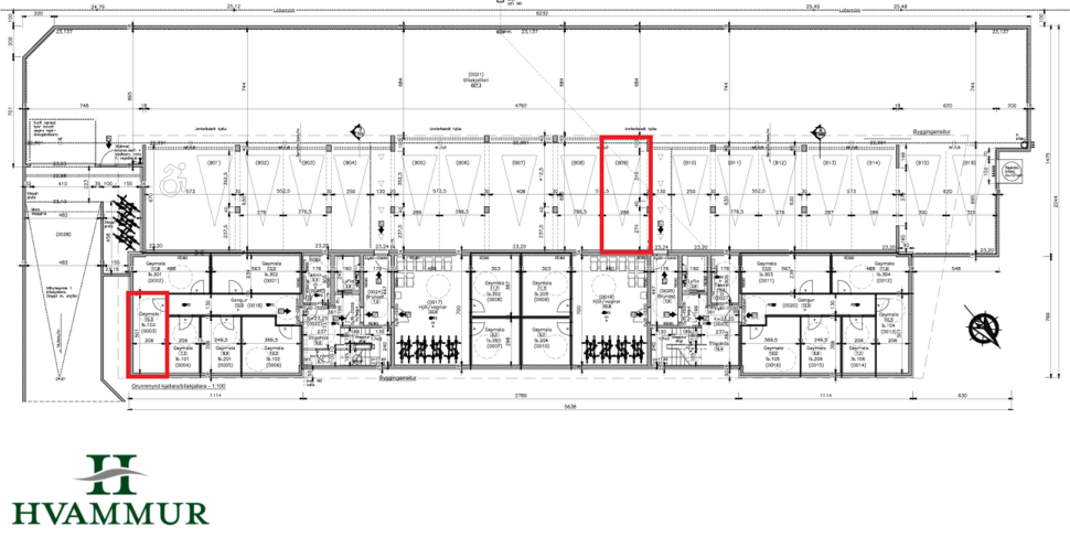
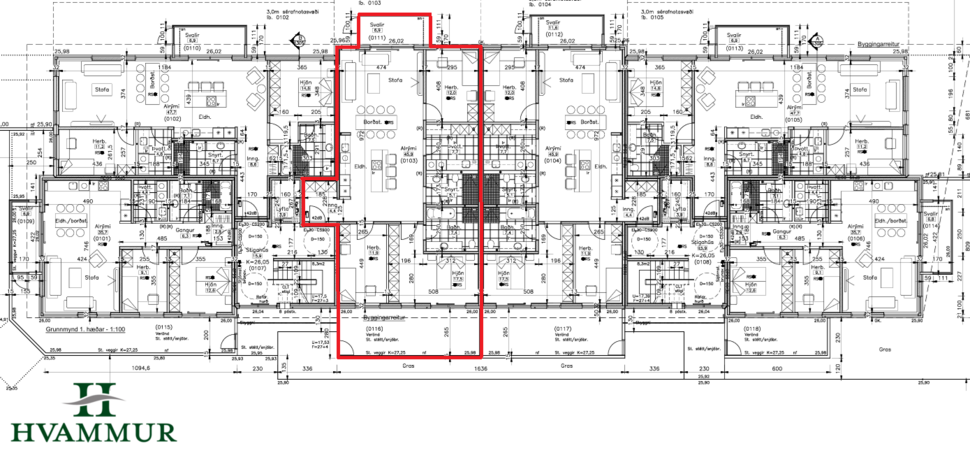
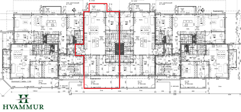
Hulduholt 2a íbúð 103 - Glæsileg og virkilega vönduð 4ra herbergja íbúð á jarðhæð í nýju fjölbýlishúsi í Holtahverfi - Stærð 140,8 m²
Eigninni fylgir sérbílastæði í bílakjallara
** Ljósmyndir eru úr annarri íbúð og eru einungis til að sýna efnisval **
Eignin skiptist í forstofu, eldhús, stofu, þrjú svefnherbergi, tvö baðherbergi, þvottahús, geymsla í sameign og stæði í bílakjallara.
Forstofa er með rúmgóðum fataskápum og vínylparketi á gólfi
Eldhús er með sérsmíðaðri innréttingu frá Hyrnunni, þar er innbyggður ísskápur og uppþvottavél, Simens spanhelluborð og með innbyggðri viftu, Siemens ofn og combiofn. Bekkplata er úr stein og vínylparket er á gólfi.
Stofa er í opnu rými með eldhúsi og er þaðan útgengt út á svalir er snúa til suður, stofa er björt enda stórir gluggar er prýða hana. Vínylparket er á gólfi.
Hjónaherbergi er sérlega glæsilegt með afar góðu skápaplássi og sér baðherbergi. Vínylparket er á gólfi herbergis.
Barnaherbergi eru með fataskáp og vínylparketi á gólfi.
Baðherbergi eru tvö:
Baðherbergi innaf hjónaherbergi er með sérsmíðaðri innréttingu frá Hyrnunni og borðplötu úr stein með undirlímdum vaski, mjög rúmgóð innrétting. WC er upphengt og er bæði walk in sturta sem og baðkar með innbyggðum blöndunartækjum. Flísar er á gólfi og veggjum.
Baðherbergi íbúðarinnar er inn af forstofu og er þar einnig sérsmiðuð innrétting frá Hyrnunni og borðplata úr stein með undirlímdum vaski. WC er upphengt og er walk in sturta með innbyggðum blöndunartækjum. Flísar eru á gólfi og veggjum.
Þvottahús er innan íbúðar en þar eru sérlega rúmgóðar innréttingar með vaski og stæði fyrir bæði þvottavél og þurrkara. Flísar eru á gólfi
Sér geymsla er í sameign, 12,8 m². Þar er málað gólf.
Sér stæði í bílakjallara.
Íbúðinni fylgir svalir til vesturs, 6,9 m² og skilast þær flísalagðar og er gert ráð fyrir því að hægt sé að setja á þær svalalokun. Einnig fylgir íbúðinni sérafnotareitur, 21,1 m² að stærð, til austurs.
Annað:
- Hljóðdempandi dúkur og innfelld lýsing í öllum loftum.
- Sérsmíðaðar innréttingar og fataskápar frá Hyrnunni
- Steinn verður á bekkjum í eldhúsi og á baðherbergi.
- Vínyl parket með fiskibeinamynstri.
- Sér loftskiptikerfi fyrir hverja íbúð.
- KNX ljósastýring.
- Mikið hefur verið lagt uppúr því að hljóðvist sé með besta móti.
- Bílastæði í bílakjallara.
Skilalýsing Hulduholts 2 frá byggingaraðila:
Húsið er úr krosslímdu timbureiningum, einangrað að utan og klætt með alubond álklæðningu.
Bílastæði: Eitt stæði fylgir hverri íbúð í bílakjallara og sameiginleg stæði á malbikuðu bílaplani framan við hús.
Lyftur: Lyftur frá Héðinn/Schindler er í báðum stigahúsum.
Kjallari: Hjóla- og vagnageymsla er með steyptu gólfi með epoxy. Geymslur eru með loftræstar og er epoxy á gólfum.
Stigahús: Flísar eru á gólfum á jarðhæð teppi á stigum og stigapöllum. Hönun stigahúsa er hlý og heimilisleg. Í stigahúsum er hljóðdúkur í loftum og innfeld lýsing.
Forstofa: Í forstofu eru fataskápar og flísar á gólfum.
Baðherbergi: Baðinnréttingar eru sérsmíðaðar af Húsheild/Hyrnu úr harðspón, hægt verður að velja úr ljósri og dökkri eik. Þrýstiopnun á innrétingu. Bekkplata úr steini. Spegill við innréttingu innfeld lýsing. Flísar á veggjum og gólfi. Vegghengt klósett, glerveggir í sturtu, innfeld blöndunartæki af vandaðri gerð. Hljóðdúkur í lofti innfeld lýsing.
Eldhús: Allar innréttingar eru sérsmíðaðar af Húsheild/Hyrnu úr harðspón, hægt er að velja um ljósa eða dökka eik. Bekkplötur eru úr stein. Skúffubrautir, hengsli eru af viðurkenndri og vandaðri gerð. Þrýstiopnun á innrétingu. Í eldhúsinnréttingu er svart keramikhelluborð með innbygðri viftu, bakaraofn,sambyggður bakarofn/örbylgjuofn, innbyggður ísskápur með fristihólfi innbyggð uppþvottavél og stálvaskur. Hljóðdúkur í lofti innfeld lýsing.
Herbergi: Skápar eru sérsmíðaðar af Húsheild/Hyrnu úr harðspón, hægt er að velja um ljósa eða dökka eik. Þrýstiopnun á skápum. Í herbergjum vinilparket með fiskibeinamunstri. Hljóðdúkur í lofti innfeld lýsing.
Þvottahús: Í þvotthúsi er þvottatækjainnrétting. Allar innréttingar eru sérsmíðaðar af Húsheild/Hyrnu úr harðspón, hægt er að velja um ljósa eða dökka eik. Þrýstiopnun á innrétingu. Í þvottahúsi er skolvaskur úr stáli. Flísar á gólfi. Hljóðdúkur í lofti innfeld lýsing.
Innihurðir: Eru sérsmíðaðar af Húsheild/Hyrnu, hægt er að velja um ljósa eða dökka eik. Innfelldar lamir í hurðum.
Upphitun: Íbúðirnar eru með gólfhita en í bílakjallara eru vatnshitablásarar.
Loftskiptakerfi: Loftskiptakerfi er í öllum íbúðum.
Raflögn: Öll raflögn er fullfrágengin þ.e. tengt í allar dósir og rofar komnir á sinn stað. Síma- og sjónvarpslagnir í stofurými og herbergjum. Kappalýsing er á baðherbergi og allrými, einnig fylgja loftljós í þvottahúsi og baðherbergi. Reiknað er með lögn fyrir hleðslustöð í bílastæði.
Um skoðunar- og aðgæsluskyldu:
Í lögum um fasteignakaup nr. 40/2002 er kveðið á um ríka skoðunarskyldu kaupenda á fasteignum. Fasteignasalan Hvammur skorar því á væntanlega kaupendur að kynna sér vel ástand fasteigna fyrir kauptilboðsgerð og leita til þar til bærra sérfræðinga um nánari skoðun ef með þarf.
Forsendur söluyfirlits:
Söluyfirlit er samið af fasteignasala í samræmi við ákvæði laga nr. 70/2015. Þær upplýsingar sem fram koma í söluyfirliti þessu eru sóttar í opinberar skrár, til seljanda sjálfs og eftir atvikum til húsfélags. Seljandi veitir upplýsingar um eign í samræmi við upplýsingaskyldu laga um fasteignakaup nr. 40/2002. Fasteignasali sannreynir að þær upplýsingar séu réttar með sjónskoðun á eigninni. Fasteignasali getur ekki fullyrt um ástand og eiginleika þeirra hluta fasteigna sem ekki eru aðgengilegir og sjást ekki berum augum, t.d. lagnir, dren, skólp og þak.
***Nýbygging***
Hulduholt 2a íbúð 103 - Glæsileg og virkilega vönduð 4ra herbergja íbúð á jarðhæð í nýju fjölbýlishúsi í Holtahverfi - Stærð 140,8 m²
Eigninni fylgir sérbílastæði í bílakjallara
** Ljósmyndir eru úr annarri íbúð og eru einungis til að sýna efnisval **
Eignin skiptist í forstofu, eldhús, stofu, þrjú svefnherbergi, tvö baðherbergi, þvottahús, geymsla í sameign og stæði í bílakjallara.
Forstofa er með rúmgóðum fataskápum og vínylparketi á gólfi
Eldhús er með sérsmíðaðri innréttingu frá Hyrnunni, þar er innbyggður ísskápur og uppþvottavél, Simens spanhelluborð og með innbyggðri viftu, Siemens ofn og combiofn. Bekkplata er úr stein og vínylparket er á gólfi.
Stofa er í opnu rými með eldhúsi og er þaðan útgengt út á svalir er snúa til suður, stofa er björt enda stórir gluggar er prýða hana. Vínylparket er á gólfi.
Hjónaherbergi er sérlega glæsilegt með afar góðu skápaplássi og sér baðherbergi. Vínylparket er á gólfi herbergis.
Barnaherbergi eru með fataskáp og vínylparketi á gólfi.
Baðherbergi eru tvö:
Baðherbergi innaf hjónaherbergi er með sérsmíðaðri innréttingu frá Hyrnunni og borðplötu úr stein með undirlímdum vaski, mjög rúmgóð innrétting. WC er upphengt og er bæði walk in sturta sem og baðkar með innbyggðum blöndunartækjum. Flísar er á gólfi og veggjum.
Baðherbergi íbúðarinnar er inn af forstofu og er þar einnig sérsmiðuð innrétting frá Hyrnunni og borðplata úr stein með undirlímdum vaski. WC er upphengt og er walk in sturta með innbyggðum blöndunartækjum. Flísar eru á gólfi og veggjum.
Þvottahús er innan íbúðar en þar eru sérlega rúmgóðar innréttingar með vaski og stæði fyrir bæði þvottavél og þurrkara. Flísar eru á gólfi
Sér geymsla er í sameign, 12,8 m². Þar er málað gólf.
Sér stæði í bílakjallara.
Íbúðinni fylgir svalir til vesturs, 6,9 m² og skilast þær flísalagðar og er gert ráð fyrir því að hægt sé að setja á þær svalalokun. Einnig fylgir íbúðinni sérafnotareitur, 21,1 m² að stærð, til austurs.
Annað:
- Hljóðdempandi dúkur og innfelld lýsing í öllum loftum.
- Sérsmíðaðar innréttingar og fataskápar frá Hyrnunni
- Steinn verður á bekkjum í eldhúsi og á baðherbergi.
- Vínyl parket með fiskibeinamynstri.
- Sér loftskiptikerfi fyrir hverja íbúð.
- KNX ljósastýring.
- Mikið hefur verið lagt uppúr því að hljóðvist sé með besta móti.
- Bílastæði í bílakjallara.
Skilalýsing Hulduholts 2 frá byggingaraðila:
Húsið er úr krosslímdu timbureiningum, einangrað að utan og klætt með alubond álklæðningu.
Bílastæði: Eitt stæði fylgir hverri íbúð í bílakjallara og sameiginleg stæði á malbikuðu bílaplani framan við hús.
Lyftur: Lyftur frá Héðinn/Schindler er í báðum stigahúsum.
Kjallari: Hjóla- og vagnageymsla er með steyptu gólfi með epoxy. Geymslur eru með loftræstar og er epoxy á gólfum.
Stigahús: Flísar eru á gólfum á jarðhæð teppi á stigum og stigapöllum. Hönun stigahúsa er hlý og heimilisleg. Í stigahúsum er hljóðdúkur í loftum og innfeld lýsing.
Forstofa: Í forstofu eru fataskápar og flísar á gólfum.
Baðherbergi: Baðinnréttingar eru sérsmíðaðar af Húsheild/Hyrnu úr harðspón, hægt verður að velja úr ljósri og dökkri eik. Þrýstiopnun á innrétingu. Bekkplata úr steini. Spegill við innréttingu innfeld lýsing. Flísar á veggjum og gólfi. Vegghengt klósett, glerveggir í sturtu, innfeld blöndunartæki af vandaðri gerð. Hljóðdúkur í lofti innfeld lýsing.
Eldhús: Allar innréttingar eru sérsmíðaðar af Húsheild/Hyrnu úr harðspón, hægt er að velja um ljósa eða dökka eik. Bekkplötur eru úr stein. Skúffubrautir, hengsli eru af viðurkenndri og vandaðri gerð. Þrýstiopnun á innrétingu. Í eldhúsinnréttingu er svart keramikhelluborð með innbygðri viftu, bakaraofn,sambyggður bakarofn/örbylgjuofn, innbyggður ísskápur með fristihólfi innbyggð uppþvottavél og stálvaskur. Hljóðdúkur í lofti innfeld lýsing.
Herbergi: Skápar eru sérsmíðaðar af Húsheild/Hyrnu úr harðspón, hægt er að velja um ljósa eða dökka eik. Þrýstiopnun á skápum. Í herbergjum vinilparket með fiskibeinamunstri. Hljóðdúkur í lofti innfeld lýsing.
Þvottahús: Í þvotthúsi er þvottatækjainnrétting. Allar innréttingar eru sérsmíðaðar af Húsheild/Hyrnu úr harðspón, hægt er að velja um ljósa eða dökka eik. Þrýstiopnun á innrétingu. Í þvottahúsi er skolvaskur úr stáli. Flísar á gólfi. Hljóðdúkur í lofti innfeld lýsing.
Innihurðir: Eru sérsmíðaðar af Húsheild/Hyrnu, hægt er að velja um ljósa eða dökka eik. Innfelldar lamir í hurðum.
Upphitun: Íbúðirnar eru með gólfhita en í bílakjallara eru vatnshitablásarar.
Loftskiptakerfi: Loftskiptakerfi er í öllum íbúðum.
Raflögn: Öll raflögn er fullfrágengin þ.e. tengt í allar dósir og rofar komnir á sinn stað. Síma- og sjónvarpslagnir í stofurými og herbergjum. Kappalýsing er á baðherbergi og allrými, einnig fylgja loftljós í þvottahúsi og baðherbergi. Reiknað er með lögn fyrir hleðslustöð í bílastæði.
Um skoðunar- og aðgæsluskyldu:
Í lögum um fasteignakaup nr. 40/2002 er kveðið á um ríka skoðunarskyldu kaupenda á fasteignum. Fasteignasalan Hvammur skorar því á væntanlega kaupendur að kynna sér vel ástand fasteigna fyrir kauptilboðsgerð og leita til þar til bærra sérfræðinga um nánari skoðun ef með þarf.
Forsendur söluyfirlits:
Söluyfirlit er samið af fasteignasala í samræmi við ákvæði laga nr. 70/2015. Þær upplýsingar sem fram koma í söluyfirliti þessu eru sóttar í opinberar skrár, til seljanda sjálfs og eftir atvikum til húsfélags. Seljandi veitir upplýsingar um eign í samræmi við upplýsingaskyldu laga um fasteignakaup nr. 40/2002. Fasteignasali sannreynir að þær upplýsingar séu réttar með sjónskoðun á eigninni. Fasteignasali getur ekki fullyrt um ástand og eiginleika þeirra hluta fasteigna sem ekki eru aðgengilegir og sjást ekki berum augum, t.d. lagnir, dren, skólp og þak.