Upplýsingar
Verðsaga
Byggt 2024
113,2 m²
4 herb.
3 svefnh.
Opið hús: 17. nóvember 2025
kl. 16:30
til 17:00
Opið hús: Drangsskarð 2, 221 Hafnarfjörður. Eignin verður sýnd mánudaginn 17. nóvember 2025 milli kl. 16:30 og kl. 17:00.
Lýsing
Hraunhamar fasteignasala kynnir: Glæsilega nýja og rúmgóða 4-5 herbergja, 113,2 fm neðri hæð með sérinngangi í þríbýli að Drangsskarði 2B, 221 Hafnarfjörður - í Skarðshlíð Hfj. (mót suðri)
Eignin skilast fullbúin með gólfefnum (harðparket) innbyggðum ísskáp og uppþvottavél. Sérafnotaflötur í suður. Sérinngangur. Baðherbergi og gestasnyrting. Góð aðkoma. Skarðshlíðarskóli og leikskóli er í göngufæri.
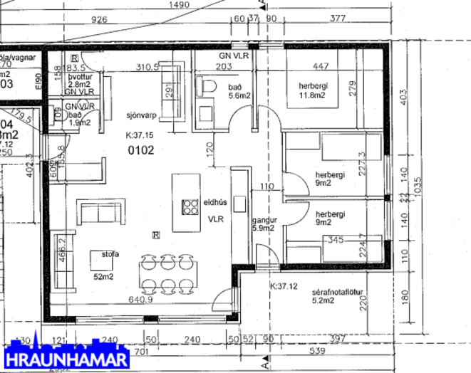
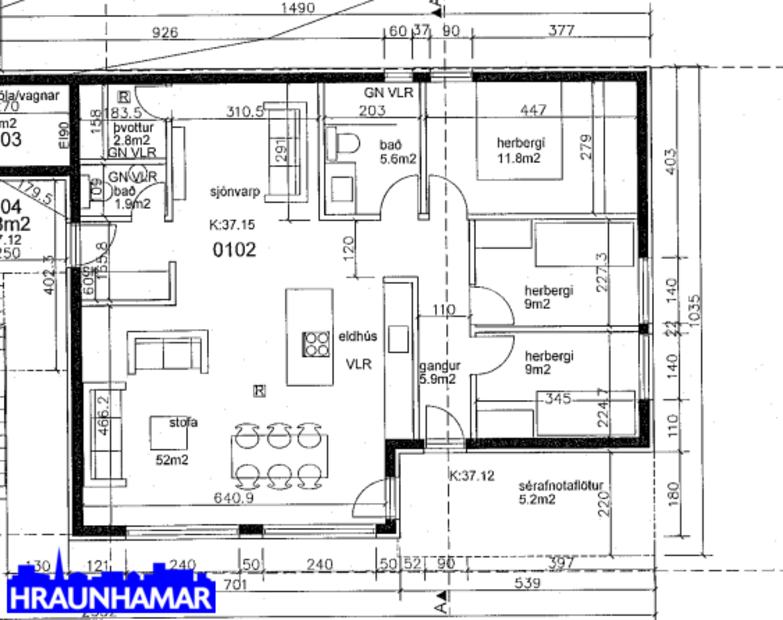
Eignin er 4-5 herbergja íbúð/sérhæð á 1. hæð t.h. merkt (0102), birt stærð íbúðar 113,2 fm. samkv. þjóðskrá.
Gólfhiti.
Aukin lofthæð er í íbúðinni.
Innréttingar frá Björninn https://www.bjorninninnrettingar.is/
Skápahurðir eru ljósar að lit
Borðplötur frá Fanntófell https://fanntofell.is/
Eldhúsinnrétting upp í loft, með tækjum og búnaði frá AEG
Gluggar: Stórir og fallegir.
Nánari lýsing: Sérinngangur
Forstofa: Flísar á gólfi, fataskápur.
Gestasalerni/baðherbergi: Flísar á gólfi, upphengt salerni ásamt handlaug.
Þvottaherbergi: Innan íbúðar, flísar á gólfi.
Baðherbergi er rúmgott: Flísar á gólfi og veggjum að hluta, upphengt salerni, sturta, handklæðaofn.
Sjónvarpshol: Gott rými.
Stofa/borðstofa. Opin og björt í suður með stórum gluggum, útgengt út á sérafnotareit.(verönd)
Glæsilegt eldhús: Gott skápa- og borðpláss, innfelldur ísskápur og uppþvottavél, ofn í vinnuhæð, rúmgóð eyja með spanhelluborði með innbyggðum gufugleypi, borðsofa við eldhús.
Rúmgott barnaherbergi: 9 fm. Fataskápur.
Rúmgott barnaherbergi: 9 fm. Fataskápur.
Rúmgott hjónaherbergi: 11,8 fm.
Svefngangur með útgang út á suður veröndina.
Garður er fullbúin með hellulögn og túnþökum. Inngangar eru hellulagðir.
Eignin skilast með lokaúttekt.
Þetta er áhugaverð glæsieign á besta stað í Skarðshlíðinni Hfj, laus strax og til sýnis.
Kaupandi greiðir 0,3% af brunabótamati í skipulagsgjald þegar það verður lagt á.
Kaupandi greiðir 0,8% af fasteignamati sem sýslumaður áætlar fyrir kaupsamning.
Nánari uppl. gefa Helgi Jón Harðarson sölustjóri s. 893-2233 helgi@hraunhamar.is og
Glódís Helgadóttir lgf. s. 659-0510 glodis@hraunhamar.is
Skoðunarskylda:
Í lögum um fasteignakaup nr. 40/2002 er kveðið á um ríka skoðunarskyldu kaupenda á fasteignum. Hraunhamar fasteignasala vill benda væntanlegum kaupendum á að kynna sér vel ástand fasteigna fyrir kauptilboðsgerð og ef þurfa þykir að leita til sérfræðinga fyrir nánari ástandsskoðun.
Gjöld sem kaupandi þarf að standa straum af vegna kaupanna:
1. Stimpilgjald af kaupsamningi, fyrstu kaup (0,4%), almenn kaup (0,8%), lögaðilar (1,6%) af heildarfasteignamati.
2. Þinglýsingargjald af kaupsamningi, veðskuldabréfi, mögulegu veðleyfi o.fl. – kr. 2.700 kr. af hverju skjali.
3. Lántökugjald lánastofnunar er skv. verðskrá viðkomandi lánastofnunar.
4. Umsýslugjald til fasteignasölu skv. þjónustusamningi
Hraunhamar er elsta fasteignasala Hafnarfjarðar, stofnuð 1983.
Hraunhamar, í fararbroddi í rúm 40 ár. – Hraunhamar.is
Smelltu hér til að fá frítt söluverðmat.
Smelltu hér til að fá söluyfirlit sent strax.
Eignin skilast fullbúin með gólfefnum (harðparket) innbyggðum ísskáp og uppþvottavél. Sérafnotaflötur í suður. Sérinngangur. Baðherbergi og gestasnyrting. Góð aðkoma. Skarðshlíðarskóli og leikskóli er í göngufæri.
Eignin er 4-5 herbergja íbúð/sérhæð á 1. hæð t.h. merkt (0102), birt stærð íbúðar 113,2 fm. samkv. þjóðskrá.
Gólfhiti.
Aukin lofthæð er í íbúðinni.
Innréttingar frá Björninn https://www.bjorninninnrettingar.is/
Skápahurðir eru ljósar að lit
Borðplötur frá Fanntófell https://fanntofell.is/
Eldhúsinnrétting upp í loft, með tækjum og búnaði frá AEG
Gluggar: Stórir og fallegir.
Nánari lýsing: Sérinngangur
Forstofa: Flísar á gólfi, fataskápur.
Gestasalerni/baðherbergi: Flísar á gólfi, upphengt salerni ásamt handlaug.
Þvottaherbergi: Innan íbúðar, flísar á gólfi.
Baðherbergi er rúmgott: Flísar á gólfi og veggjum að hluta, upphengt salerni, sturta, handklæðaofn.
Sjónvarpshol: Gott rými.
Stofa/borðstofa. Opin og björt í suður með stórum gluggum, útgengt út á sérafnotareit.(verönd)
Glæsilegt eldhús: Gott skápa- og borðpláss, innfelldur ísskápur og uppþvottavél, ofn í vinnuhæð, rúmgóð eyja með spanhelluborði með innbyggðum gufugleypi, borðsofa við eldhús.
Rúmgott barnaherbergi: 9 fm. Fataskápur.
Rúmgott barnaherbergi: 9 fm. Fataskápur.
Rúmgott hjónaherbergi: 11,8 fm.
Svefngangur með útgang út á suður veröndina.
Garður er fullbúin með hellulögn og túnþökum. Inngangar eru hellulagðir.
Eignin skilast með lokaúttekt.
Þetta er áhugaverð glæsieign á besta stað í Skarðshlíðinni Hfj, laus strax og til sýnis.
Kaupandi greiðir 0,3% af brunabótamati í skipulagsgjald þegar það verður lagt á.
Kaupandi greiðir 0,8% af fasteignamati sem sýslumaður áætlar fyrir kaupsamning.
Nánari uppl. gefa Helgi Jón Harðarson sölustjóri s. 893-2233 helgi@hraunhamar.is og
Glódís Helgadóttir lgf. s. 659-0510 glodis@hraunhamar.is
Skoðunarskylda:
Í lögum um fasteignakaup nr. 40/2002 er kveðið á um ríka skoðunarskyldu kaupenda á fasteignum. Hraunhamar fasteignasala vill benda væntanlegum kaupendum á að kynna sér vel ástand fasteigna fyrir kauptilboðsgerð og ef þurfa þykir að leita til sérfræðinga fyrir nánari ástandsskoðun.
Gjöld sem kaupandi þarf að standa straum af vegna kaupanna:
1. Stimpilgjald af kaupsamningi, fyrstu kaup (0,4%), almenn kaup (0,8%), lögaðilar (1,6%) af heildarfasteignamati.
2. Þinglýsingargjald af kaupsamningi, veðskuldabréfi, mögulegu veðleyfi o.fl. – kr. 2.700 kr. af hverju skjali.
3. Lántökugjald lánastofnunar er skv. verðskrá viðkomandi lánastofnunar.
4. Umsýslugjald til fasteignasölu skv. þjónustusamningi
Hraunhamar er elsta fasteignasala Hafnarfjarðar, stofnuð 1983.
Hraunhamar, í fararbroddi í rúm 40 ár. – Hraunhamar.is
Smelltu hér til að fá frítt söluverðmat.
Smelltu hér til að fá söluyfirlit sent strax.
Ár
Fasteignamat
Kaupverð
Stærð
Fermetraverð
25. júl. 2025
72.600.000 kr.
206.175.000 kr.
10102 m²
20.409 kr.
Byggt á upplýsingum úr Þjóðskrá Íslands frá 2006-2025