Löggiltir fasteignasalar innan Félags fasteignasala:
Óskar Rúnar Harðarson
Jason Guðmundsson
Þröstur Þórhallsson
Ólafur Finnbogason
Kjartan Ísak Guðmundsson
Gústaf Adolf Björnsson
Viðar Böðvarsson
Rakel Viðarsdóttir
Vala Georgsdóttir
Ragnheiður Pétursdóttir
Böðvar Þ. Eggertsson
Vista
fjölbýlishús

Vesturvin 2 - 306

101 Reykjavík

98.500.000 kr.

1.061.422 þ.kr./m2
Fasteignanúmer

F2519576

Fasteignamat

0 kr.

Brunabótamat

0 kr.

Áhvílandi

0 kr.

Arion banki – Reikna lán
Upplýsingar
svg
Byggt 2023
svg
92,8 m²
svg
3 herb.
svg
1 baðherb.
svg
1 svefnh.
Opið hús: 16. nóvember 2025 kl. 13:00 til 13:30

Lýsing

Miklaborg kynnir: Vesturvin 2 verður glæsileg bygging með metnaðarfullri hönnun á frábærum útsýnisstað í Vesturbæ Reykjavíkur. Húsið er staðsett örstutt frá verslun og þjónustu og í 10-15 mín. göngufæri frá miðbæ Reykjavíkur. Íbúðirnar í Vesturvin 2 (Ánanaust 1-3) eru til afhendingar í ágúst 2024.

Pantið einkaskoðun hjá Jóni Rafni fasteignasala í síma 695-5520 eða sendið tölvupóst á jon@miklaborg.is

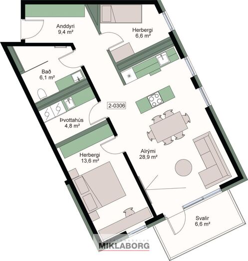
Íbúð 306 er 3ja herbergja íbúð á 3. hæð með góðu útsýni til Esjunnar og yfir til Snæfellsness. Íbúðinni fylgir stæði í bílgeymslu. Íbúar hafa aðgang að verslun og þjónustu. Íbúðarrýmið skiptist í stóra og bjarta stofu með opnu eldhúsi með eldunareyju. Tvö svefnherbergi. Baðherbergi með sturtu og einnig er sér þvottaherbergi. íbúðin er skráð 84,3m² með geymslu sem er 8,5m² .

Íbúðirnar afhendast með hágæða ítölskum innréttingum frá Cassina en Eimur er þema þessarar íbúðar sem betur má kynna sér á vefsíðu Vesturvin. Vönduð tæki frá Miele og Siemens. Steinborðplötur og gólfsíðir gluggar. Allar íbúðir eru með gólfhita.

Nánar um verkefnið hér á heimasíðu þess HÉR.

Nánari upplýsingar veita sölumenn:

Jón Rafn Valdimarsson lögg. fasteignasali í síma 6955520 eða jon@miklaborg.is

Þröstur Þórhallsson lögg. fasteignasali í síma 8970634 eða throstur@miklaborg.is

Óskar Sæmann Axelsson lögg. fasteignasali í síma 691-2312 eða osa@miklaborg.is

Miklaborg fasteignasala

Miklaborg fasteignasala

Lágmúli 4, 108 Reykjavík
Miklaborg fasteignasala

Miklaborg fasteignasala

Lágmúli 4, 108 Reykjavík