Upplýsingar
Verðsaga
Byggt 1922
42,6 m²
2 herb.
1 baðherb.
1 svefnh.
Sameiginl. inngangur
Lýsing
Hugguleg risíbúð með mikla mögulega, alveg í hjarta Reykjavíkur við Bergþórugötu 14.
* Frábær fyrstu kaup
* Möguleiki á 90% láni fyrir fyrstu kaupendur
* Húsið var málað að utan 2011
* Skipt um járn á þaki og settar nýjar þakrennur 2012 - 2013
Nánari upplýsingar veita:
Helen Sigurðardóttir Lgf. í síma nr 766-9500 eða helen@palssonfasteignasala.is
Páll Pálsson Lgf. í síma nr775-4000 eða palli@palssonfasteignasala.is
www.eignavakt.is
www.verdmat.is
Góð ráð fyrir kaupendur / seljendur
Birt stærð samkv. FÍ er 42,60 m2 en það eru hluti fermetra undir súð sem teljast ekki til þar svo íbúðin er stærri en birt stærð segjir til um.
Fyrirhugað fasteignamat 2026 er 47.350.000 kr.
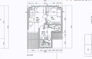
Eignin skiptist í eldhús, baðherbergi, stofu / borðstofu, svefnherbergi, sameign og geymslu í geymsluskúr.
Á stigapalli fyrir framan íbúðina er fataskápur.
Eldhús er með upprunalegri innréttingu og viðarparket á gólfi. Þar er eldavél og gott pláss fyrir borðkrók.
Baðherbergi er með baðkari, wc og skolvaski. Geymluskápur og dúkur á gólfi.
Stofa / borðstofa eru með parket á gólfi og geymslupláss/skápar eru undir súð.
Svefnherbergi er með viðarparket á gólfi og fataskápum.
Þvottahús er í sameign á jarðhæð og er hver íbúð með sínar vélar.
Sameiginlegur garður með palli og köldum útigeymslum, ein á hverja íbúð.
Möguleiki á Bílastæði hjá Tækniskólanum : hægt er að óska eftir aðgangskorti fyrir íbúa, Íbúi á neðri hæð hefur gert það en núverandi eigandi þessarar íbúðar hefur aldrei látið á það reyna fyrir sig.
Ekki er starfrækt formlegt húsfélag í húsinu.
Frábær staðsetning í hjarta miðbæjarins, rétt við Hallgrímskirkju og Tækniskólann.
Athugast skal að á hluta af myndum hafa verið tölvugerð húsgögn til að sýna möguleika á nýtingu á eigninni.
Gjöld sem kaupandi þarf að standa straum af vegna kaupanna:
1. Stimpilgjald af kaupsamningi - 0.8% af heildarfasteignamati / 1.6% fyrir lögaðila. (0.4% við fyrstu kaup einstaklinga).
2. Þinglýsingagjald af kaupsamningi, veðskuldabréfi, veðleyfi o.fl.- kr. 2.700 af hverju skjali.
3. Lántökugjald lánastofnunar - samanber gjaldskrá viðkomandi lánastofnunar.
4. Umsýsluþóknun til fasteignasölu, sbr.kauptilboð.
Um skoðunarskyldu:
Í lögum um fasteignakaup nr. 40/2002 er kveðið á um ríka skoðunarskyldu kaupenda á fasteignum. Pálsson fasteignasala bendir væntanlegum kaupendum á að kynna sér vel ástand fasteigna við skoðun og fyrir tilboðsgerð og ef þurfa þykir að leita til sérfræðinga um nánari ástandsskoðun.
* Frábær fyrstu kaup
* Möguleiki á 90% láni fyrir fyrstu kaupendur
* Húsið var málað að utan 2011
* Skipt um járn á þaki og settar nýjar þakrennur 2012 - 2013
Nánari upplýsingar veita:
Helen Sigurðardóttir Lgf. í síma nr 766-9500 eða helen@palssonfasteignasala.is
Páll Pálsson Lgf. í síma nr775-4000 eða palli@palssonfasteignasala.is
www.eignavakt.is
www.verdmat.is
Góð ráð fyrir kaupendur / seljendur
Birt stærð samkv. FÍ er 42,60 m2 en það eru hluti fermetra undir súð sem teljast ekki til þar svo íbúðin er stærri en birt stærð segjir til um.
Fyrirhugað fasteignamat 2026 er 47.350.000 kr.
Eignin skiptist í eldhús, baðherbergi, stofu / borðstofu, svefnherbergi, sameign og geymslu í geymsluskúr.
Á stigapalli fyrir framan íbúðina er fataskápur.
Eldhús er með upprunalegri innréttingu og viðarparket á gólfi. Þar er eldavél og gott pláss fyrir borðkrók.
Baðherbergi er með baðkari, wc og skolvaski. Geymluskápur og dúkur á gólfi.
Stofa / borðstofa eru með parket á gólfi og geymslupláss/skápar eru undir súð.
Svefnherbergi er með viðarparket á gólfi og fataskápum.
Þvottahús er í sameign á jarðhæð og er hver íbúð með sínar vélar.
Sameiginlegur garður með palli og köldum útigeymslum, ein á hverja íbúð.
Möguleiki á Bílastæði hjá Tækniskólanum : hægt er að óska eftir aðgangskorti fyrir íbúa, Íbúi á neðri hæð hefur gert það en núverandi eigandi þessarar íbúðar hefur aldrei látið á það reyna fyrir sig.
Ekki er starfrækt formlegt húsfélag í húsinu.
Frábær staðsetning í hjarta miðbæjarins, rétt við Hallgrímskirkju og Tækniskólann.
Athugast skal að á hluta af myndum hafa verið tölvugerð húsgögn til að sýna möguleika á nýtingu á eigninni.
Gjöld sem kaupandi þarf að standa straum af vegna kaupanna:
1. Stimpilgjald af kaupsamningi - 0.8% af heildarfasteignamati / 1.6% fyrir lögaðila. (0.4% við fyrstu kaup einstaklinga).
2. Þinglýsingagjald af kaupsamningi, veðskuldabréfi, veðleyfi o.fl.- kr. 2.700 af hverju skjali.
3. Lántökugjald lánastofnunar - samanber gjaldskrá viðkomandi lánastofnunar.
4. Umsýsluþóknun til fasteignasölu, sbr.kauptilboð.
Um skoðunarskyldu:
Í lögum um fasteignakaup nr. 40/2002 er kveðið á um ríka skoðunarskyldu kaupenda á fasteignum. Pálsson fasteignasala bendir væntanlegum kaupendum á að kynna sér vel ástand fasteigna við skoðun og fyrir tilboðsgerð og ef þurfa þykir að leita til sérfræðinga um nánari ástandsskoðun.
Ár
Fasteignamat
Kaupverð
Stærð
Fermetraverð
18. nóv. 2020
28.700.000 kr.
29.300.000 kr.
42.6 m²
687.793 kr.
Byggt á upplýsingum úr Þjóðskrá Íslands frá 2006-2025