Upplýsingar
Verðsaga
Byggt 2020
113,1 m²
4 herb.
1 baðherb.
3 svefnh.
Þvottahús
Bílastæði
Lyfta
Lýsing
Björt og vönduð 3-4ra herbergja íbúð á jarðhæð á eftirsóttum stað í Norðlingaholti
- Sérmerkt stæði í bílageymslu
- 2-3 svefnherbergi (möguleiki á að stækka stofu)
- Tvær timburverandir samtals 47,8 fm
- Loftræstikerfi með varmaskiptum og loftsíum
Allar nánari upplýsingar veita :
Tinna Bryde Lgf. í síma 660-5532 eða tinna@palssonfasteignasala.is
www.eignavakt.is
www.verdmat.is
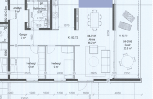
Íbúðin er björt og vel skipulögð, skráð samtals 113,1 fm, þar af 6,9 fm sérgeymsla í sameign. Hún er á jarðhæð í vönduðu lyftuhúsi sem byggt var af MótX árið 2020.
Útgengi er út á tvær timburverandir, samtals 47,8 fm: önnur til norðurs (20,8 fm) og hin til suðurs og austurs (27 fm). Hægt er að nýta aðra veröndina sem sérinngang inn í íbúðina.
Innfelld lýsing er í alrými og hjónaherbergi. Íbúðin er búin sérstæðu loftskiptakerfi (Airflow system) með stafrænni stýringu sem tryggir góða hljóðvist og loftgæði.
Fyrirhugað fasteignamat 2026 er 86.800.000 kr.
Búið er að útbúa auka svefnherbergi, þannig að eignin nýtist sem 4ra herbergja íbúð í dag. Hægt er að breyta auðveldlega til baka og stækka stofuna.
Nánari lýsing:
Forstofa: er mjög rúmgóð með fataskáp.
Eldhús: með Axis innréttingu, vönduðum tækjum frá AEG og innbyggðri uppþvottavél.
Stofa / borðstofa: björt og opin með útgengi út á tvær timburverandir , hægt er að nýta aðra veröndina sem sérinngang inn í íbúðina. Gólfsíðir gluggar eru í stofu og rennihurð út á aðra veröndina.
Hjónaherbergi: með góðum fataskápum og parketi á gólfi.
Svefnherbergi II: með fataskápi og parketi á gólfi.
Aukaberbergi: rúmgott herbergi með gólfsíðum glugga og parketi á gólfi.
Baðherbergi: flísalagt í hólf og gólf, sturta, upphengt salerni og handklæðaofn.
Þvottahús: flísalagt og er innan baðherbergis.
Sérgeymsla: í sameign og skráð 6.9 fm.
Bílastæði: sérmerkt stæði í lokaðri bílageymslu með uppsettu rafhleðslukerfi.
Aðstaða í húsinu:
Sameign er snyrtileg með flísum í forstofu og teppi á stigagöngum. Í húsinu er lyfta, rafmagnshurðaopnun og myndavéladyrasími. Einnig er sameiginleg hjóla- og vagnageymsla. Stétt fyrir framan húsið er hellulögð með snjóbræðslu.
Um er að ræða eftirsótta staðsetningu í rólegu og vinsælu fjölskylduhverfi í Norðlingaholti í Reykjavík. Leikskóli og grunnskóli eru í göngufjarlægð, sem og verslun og þjónusta . Frábærar göngu- og hjólaleiðir eru um Elliðaárdalinn, Heiðmörk og við Rauðavatn. Hverfið er þekkt fyrir náttúrufegurð og fjölskylduvænt umhverfi.
Gjöld sem kaupandi þarf að standa straum af vegna kaupanna:
1. Stimpilgjald af kaupsamningi - 0.8% af heildarfasteignamati / 1.6% fyrir lögaðila. (0.4% við fyrstu kaup einstaklinga).
2. Þinglýsingagjald af kaupsamningi, veðskuldabréfi, veðleyfi o.fl.- kr. 2.700 af hverju skjali.
3. Lántökugjald lánastofnunar - samanber gjaldskrá viðkomandi lánastofnunar.
4. Umsýsluþóknun til fasteignasölu, sbr.kauptilboð.
Um skoðunarskyldu:
Í lögum um fasteignakaup nr. 40/2002 er kveðið á um ríka skoðunarskyldu kaupenda á fasteignum. Pálsson fasteignasala bendir væntanlegum kaupendum á að kynna sér vel ástand fasteigna við skoðun og fyrir tilboðsgerð og ef þurfa þykir að leita til sérfræðinga um nánari ástandsskoðun.
- Sérmerkt stæði í bílageymslu
- 2-3 svefnherbergi (möguleiki á að stækka stofu)
- Tvær timburverandir samtals 47,8 fm
- Loftræstikerfi með varmaskiptum og loftsíum
Allar nánari upplýsingar veita :
Tinna Bryde Lgf. í síma 660-5532 eða tinna@palssonfasteignasala.is
www.eignavakt.is
www.verdmat.is
Íbúðin er björt og vel skipulögð, skráð samtals 113,1 fm, þar af 6,9 fm sérgeymsla í sameign. Hún er á jarðhæð í vönduðu lyftuhúsi sem byggt var af MótX árið 2020.
Útgengi er út á tvær timburverandir, samtals 47,8 fm: önnur til norðurs (20,8 fm) og hin til suðurs og austurs (27 fm). Hægt er að nýta aðra veröndina sem sérinngang inn í íbúðina.
Innfelld lýsing er í alrými og hjónaherbergi. Íbúðin er búin sérstæðu loftskiptakerfi (Airflow system) með stafrænni stýringu sem tryggir góða hljóðvist og loftgæði.
Fyrirhugað fasteignamat 2026 er 86.800.000 kr.
Búið er að útbúa auka svefnherbergi, þannig að eignin nýtist sem 4ra herbergja íbúð í dag. Hægt er að breyta auðveldlega til baka og stækka stofuna.
Nánari lýsing:
Forstofa: er mjög rúmgóð með fataskáp.
Eldhús: með Axis innréttingu, vönduðum tækjum frá AEG og innbyggðri uppþvottavél.
Stofa / borðstofa: björt og opin með útgengi út á tvær timburverandir , hægt er að nýta aðra veröndina sem sérinngang inn í íbúðina. Gólfsíðir gluggar eru í stofu og rennihurð út á aðra veröndina.
Hjónaherbergi: með góðum fataskápum og parketi á gólfi.
Svefnherbergi II: með fataskápi og parketi á gólfi.
Aukaberbergi: rúmgott herbergi með gólfsíðum glugga og parketi á gólfi.
Baðherbergi: flísalagt í hólf og gólf, sturta, upphengt salerni og handklæðaofn.
Þvottahús: flísalagt og er innan baðherbergis.
Sérgeymsla: í sameign og skráð 6.9 fm.
Bílastæði: sérmerkt stæði í lokaðri bílageymslu með uppsettu rafhleðslukerfi.
Aðstaða í húsinu:
Sameign er snyrtileg með flísum í forstofu og teppi á stigagöngum. Í húsinu er lyfta, rafmagnshurðaopnun og myndavéladyrasími. Einnig er sameiginleg hjóla- og vagnageymsla. Stétt fyrir framan húsið er hellulögð með snjóbræðslu.
Um er að ræða eftirsótta staðsetningu í rólegu og vinsælu fjölskylduhverfi í Norðlingaholti í Reykjavík. Leikskóli og grunnskóli eru í göngufjarlægð, sem og verslun og þjónusta . Frábærar göngu- og hjólaleiðir eru um Elliðaárdalinn, Heiðmörk og við Rauðavatn. Hverfið er þekkt fyrir náttúrufegurð og fjölskylduvænt umhverfi.
Gjöld sem kaupandi þarf að standa straum af vegna kaupanna:
1. Stimpilgjald af kaupsamningi - 0.8% af heildarfasteignamati / 1.6% fyrir lögaðila. (0.4% við fyrstu kaup einstaklinga).
2. Þinglýsingagjald af kaupsamningi, veðskuldabréfi, veðleyfi o.fl.- kr. 2.700 af hverju skjali.
3. Lántökugjald lánastofnunar - samanber gjaldskrá viðkomandi lánastofnunar.
4. Umsýsluþóknun til fasteignasölu, sbr.kauptilboð.
Um skoðunarskyldu:
Í lögum um fasteignakaup nr. 40/2002 er kveðið á um ríka skoðunarskyldu kaupenda á fasteignum. Pálsson fasteignasala bendir væntanlegum kaupendum á að kynna sér vel ástand fasteigna við skoðun og fyrir tilboðsgerð og ef þurfa þykir að leita til sérfræðinga um nánari ástandsskoðun.
Ár
Fasteignamat
Kaupverð
Stærð
Fermetraverð
30. mar. 2021
51.550.000 kr.
60.900.000 kr.
113.1 m²
538.462 kr.
Byggt á upplýsingum úr Þjóðskrá Íslands frá 2006-2025