Upplýsingar
Verðsaga
Byggt 2008
256 m²
4 herb.
Lýsing
Mjög gott steypt atvinnuhúsnæði á tveimur hæðum, eignin er 256 fm, neðri hæð 131,6 og efri hæð 124,4. Allt mjög snyrtilegt umhverfis hús og malbikuð bílastæði.
Nánari upplýsingar veitir:
Auður Ýr Jóhannsdóttir a.lgf. í síma nr 897-0900 eða audur@palssonfasteignasala.is
Evert Guðmundsson lgf. í síma 823-3022 eða evert@palssonfasteignasala.is
www.eignavakt.is
www.verdmat.is
Góð ráð fyrir kaupendur / seljendur
Nánari lýsing:
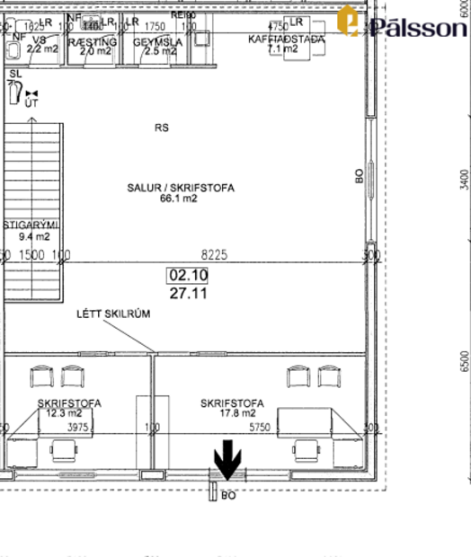
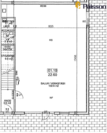
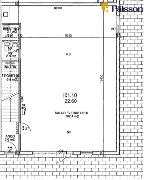
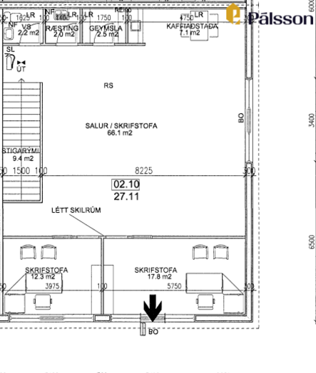
Jarðhæð er 131,6 fm og skiptist í stóran og rúmgóðan sal, salerni og tvær góðar geymslur. Önnur geymslan er með littlu millilofti.
Snyrtilegt baðherbergi með flísum á gólfi og upphengdu wc. Baðinnrétting og handklæðaofn. tengi fyrir þvottavél og þurrkara. Mikil lofthæð og góð innkeyrsluhurð.
Efri hæð er 124,4 fm. Stórt alrými, tvær rúmgóðar skrifstofur með glugga, þrjú gluggalaus rými, salerni með sturtu og eldhúsaðstaða. Skipulag sem opnar á margvíslega nýtingarmöguleika. Góð lofthæð er á efri hæð einnig og gluggar á tvenna vegu.
Húsnæðið er vel staðsett í iðnaðarhverfi á Völlunum í Hafnarfirði. Góð aðkoma og stutt í stofnbrautir.
Gjöld sem kaupandi þarf að standa straum af vegna kaupanna:
1. Stimpilgjald af kaupsamningi - 0.8% af heildarfasteignamati / 1.6% fyrir lögaðila. (0.4% við fyrstu kaup einstaklinga).
2. Þinglýsingagjald af kaupsamningi, veðskuldabréfi, veðleyfi o.fl.- kr. 2.700 af hverju skjali.
3. Lántökugjald lánastofnunar - samanber gjaldskrá viðkomandi lánastofnunar.
4. Umsýsluþóknun til fasteignasölu, sbr.kauptilboð.
Um skoðunarskyldu:
Í lögum um fasteignakaup nr. 40/2002 er kveðið á um ríka skoðunarskyldu kaupenda á fasteignum. Pálsson fasteignasala bendir væntanlegum kaupendum á að kynna sér vel ástand fasteigna við skoðun og fyrir tilboðsgerð og ef þurfa þykir að leita til sérfræðinga um nánari ástandsskoðun.
Nánari upplýsingar veitir:
Auður Ýr Jóhannsdóttir a.lgf. í síma nr 897-0900 eða audur@palssonfasteignasala.is
Evert Guðmundsson lgf. í síma 823-3022 eða evert@palssonfasteignasala.is
www.eignavakt.is
www.verdmat.is
Góð ráð fyrir kaupendur / seljendur
Nánari lýsing:
Jarðhæð er 131,6 fm og skiptist í stóran og rúmgóðan sal, salerni og tvær góðar geymslur. Önnur geymslan er með littlu millilofti.
Snyrtilegt baðherbergi með flísum á gólfi og upphengdu wc. Baðinnrétting og handklæðaofn. tengi fyrir þvottavél og þurrkara. Mikil lofthæð og góð innkeyrsluhurð.
Efri hæð er 124,4 fm. Stórt alrými, tvær rúmgóðar skrifstofur með glugga, þrjú gluggalaus rými, salerni með sturtu og eldhúsaðstaða. Skipulag sem opnar á margvíslega nýtingarmöguleika. Góð lofthæð er á efri hæð einnig og gluggar á tvenna vegu.
Húsnæðið er vel staðsett í iðnaðarhverfi á Völlunum í Hafnarfirði. Góð aðkoma og stutt í stofnbrautir.
Gjöld sem kaupandi þarf að standa straum af vegna kaupanna:
1. Stimpilgjald af kaupsamningi - 0.8% af heildarfasteignamati / 1.6% fyrir lögaðila. (0.4% við fyrstu kaup einstaklinga).
2. Þinglýsingagjald af kaupsamningi, veðskuldabréfi, veðleyfi o.fl.- kr. 2.700 af hverju skjali.
3. Lántökugjald lánastofnunar - samanber gjaldskrá viðkomandi lánastofnunar.
4. Umsýsluþóknun til fasteignasölu, sbr.kauptilboð.
Um skoðunarskyldu:
Í lögum um fasteignakaup nr. 40/2002 er kveðið á um ríka skoðunarskyldu kaupenda á fasteignum. Pálsson fasteignasala bendir væntanlegum kaupendum á að kynna sér vel ástand fasteigna við skoðun og fyrir tilboðsgerð og ef þurfa þykir að leita til sérfræðinga um nánari ástandsskoðun.
Ár
Fasteignamat
Kaupverð
Stærð
Fermetraverð
12. des. 2014
75.200.000 kr.
107.000.000 kr.
10110 m²
10.584 kr.
1. nóv. 2022
63.050.000 kr.
62.000.000 kr.
256 m²
242.188 kr.
19. jan. 2016
30.850.000 kr.
28.500.000 kr.
256 m²
111.328 kr.
Byggt á upplýsingum úr Þjóðskrá Íslands frá 2006-2025