Löggiltir fasteignasalar innan Félags fasteignasala:
Sverrir Kristinsson
Kjartan Hallgeirsson
Guðlaugur Ingi Guðlaugsson
Daði Hafþórsson
Gunnar Helgi Einarsson
Gunnar Bergmann Jónsson
Lilja Guðmundsdóttir
Jenný Sandra Gunnarsdóttir
Kári Sighvatsson
Vista
svg

87

svg

80  Skoðendur

svg

Skráð  27. nóv. 2025

fjölbýlishús

Vörðuleiti 1

103 Reykjavík

109.900.000 kr.

975.155 þ.kr./m2
Fasteignanúmer

F2368918

Fasteignamat

91.850.000 kr.

Brunabótamat

79.800.000 kr.

Áhvílandi

0 kr.

Arion banki – Reikna lán
Upplýsingar
Verðsaga
svg
Byggt 2020
svg
112,7 m²
svg
3 herb.
svg
2 baðherb.
svg
2 svefnh.
svg
Þvottahús
svg
Sameiginl. inngangur
svg
Bílastæði
svg
Lyfta

Lýsing

Eignamiðlun kynnir:

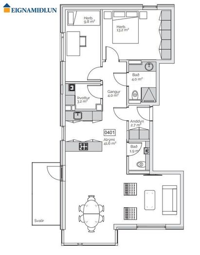
Vel skipulögð og björt þriggja til fjögurra herbergja íbúð á fjórðu og efstu hæð í nýlegu lyftuhúsi við Vörðuleiti 1. Útsýni er úr íbúðinni til suðurs og vesturs. Aðeins tvær íbúðir á hæðinni. Rúmgott bílastæði fylgir í upphituðum bílakjallara. Eignin er skráð skv. FMR alls 112,7 fm en þar af er geymsla skráð 17,2 fm og íbúðin því 95,5 fm.

Húsið er byggt árið 2020 og er teiknað af Arkþing Nordic arkitektastofu. Burðarvirki húsanna er staðsteypt og eru útveggir einangraðir með steinull að utan. Húsið er klætt með sléttri álklæðningu. Fallegur og snyrtilegur inngarður með leiksvæði, göngustígum ásamt hjóla- og vagnageymslu. Gangstígar eru með snjóbræðslu ásamt svæðum við innganga.

Eignin skiptist í: forstofu, 2 svefnherbergi, stofu og borðstofu þar sem auðveldlega má bæta við þriðja svefnherberginu, eldhús, þvottaherbergi, baðherbergi, gestasnyrtingu, geymslu og stæði í bílageymslu.

Nánari lýsing:
Anddyri með tvöföldum fataskáp sem nær til lofts.
Rúmgóð og björt stofa með gólfsíðum gluggum. Inn af stofu má auðveldlega gera þriðja svefnherbergið. Frá stofu með gólfsíðum gluggum með útsýni til suðurs er gengið út á suð-vestur svalir klæddu glerhandriði. Fyrir gluggum í stofu eru Duette gluggatjöld frá Zenus.
Eldhús með ljósri innréttingu frá Nobilia en eldhústækin sem fylgdu íbúðinni frá byggingaraðila hafa verið endurnýjuð með vandaðri tækjum.
Gestasnyrting er við hlið forstofu. Gólfið er lagt flísum. Upphengt salerni og innrétting.
Herbergjagangur tengir saman stofu, anddyri, tvö svefnherbergi, baðherbergi og þvottahús.
Svefnherbergi eru tvö. Í hjónaherbergi er fjórfaldur fataskápur sérsmíðaður frá GKS og í barnaherbergi er tvöfaldur skápur frá GKS. Skápar beggja herbergja ná til lofts. Fyrir gluggum beggja svefnherbergja eru rimlagluggatjöld.
Baðherbergið er flísalagt í hólf og gólf með sturtu með glerskilrými. Upphengt klósett, handklæðaofn, baðinnrétting með skúffum, handlaug og speglaskáp fyrir ofan vask. Blöndunartækin eru frá Grohe.
Þvottaherbergi er inn af íbúð. Flísalagt, með ljósri innréttingu frá Nobilia með aðstöðu fyrir þvottavél og þurrkara. Þar eru hillur, snúrur og vinnuvaskur ásamt opnanlegum glugga. 
Íbúðin er lögð gegnheilu eikarparketi fyrir utan að baðherbergi, gestasnyrting og þvottahús eru flísalögð.
Lýsing (ljósakubbar) í öllum loftum íbúðarinnar munu fylgja eigninni. 


Geymsla íbúðarinnar er í kjallara á læstum geymslugangi (eldvarnarhurð), 17,2 fm, mjög rúmgóð. Hillusamstæður í geymslu munu fylgja íbúðinni.
Sérmerkt bílastæði í upphituðum bílakjallara. Hleðslustöð við stæði í bílakjallara fylgir íbúðinni.
Sameign er öll hin snyrtilegasta.

Staðsetning:
Efstaleitið er í sannkölluðu miðborgarhverfi í göngufæri við helstu verslunar- og þjónustukjarna borgarinnar og falleg útivistarsvæði. Garðurinn er gróðursæll og skjólsæll með reiðhjólaskýlum, leiksvæði og hreyfistöð. Veitingastaðurinn Yndisauki er staðsettur á jarðhæð við Efstaleiti 25 með skemmtilegu útisvæði í inngarðinum. Efstaleitið er nútímalegt íbúðahverfi á einum besta stað í borginni með alla helstu verslun og þjónustu í næsta nágrenni, s.s. Kringluna, Borgarleikhúsið, Borgarbókasafnið, Heislugæslu, Yndisauka, verslunarmiðstöðina Austurver þar sem má ma. finna Krónuna, Bakarameistarann og Læknavaktina. Svona mætti lengi áfram telja. Þá er leik-, grunn- og menntaskóli í nokkurra mínútna göngufjarlægð.

Nánari upplýsingar veitir: Unnar Kjartansson, löggiltur fasteignasali, í síma 867-0968 eða unnar@eignamidlun.is
 

***
Ábyrg þjónusta í áratugi. Eignamiðlun var stofnuð 1957 og er elsta starfandi fasteignasala á Íslandi. Reynsla, heiðarleiki og þekking á fasteignamarkaðnum eru grunnur að farsælum viðskiptum. 

Eignamiðlun Grensásvegi 11, 108 Reykjavík - Opið frá kl. 9-17 mánudaga til fimmtudaga og 9-16 á föstudögum.

Heimasíða Eignamiðlunar

Eignamiðlun á Facebook

Eignamiðlun

Eignamiðlun

Grensásvegi 11, 108 Reykjavík
Ár
Fasteignamat
Kaupverð
Stærð
Fermetraverð
21. feb. 2020
27.400.000 kr.
72.900.000 kr.
112.7 m²
646.850 kr.
Byggt á upplýsingum úr Þjóðskrá Íslands frá 2006-2025
Eignamiðlun

Eignamiðlun

Grensásvegi 11, 108 Reykjavík