Upplýsingar
Verðsaga
Byggt 2006
109,8 m²
4 herb.
1 baðherb.
3 svefnh.
Bílskúr
Lyfta
Lýsing
*Laus við kaupsamning*
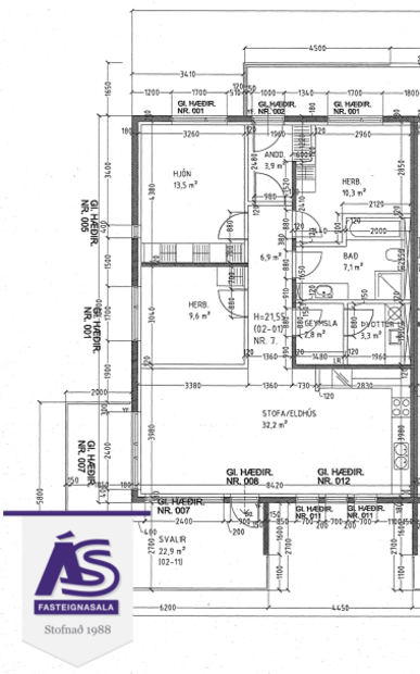
109,8 fm 4ra herbergja endaíbúð með sér stæði í bílakjallara á 2. hæð við Einivelli 7, Hafnarfirði.
Eignin skiptist í 104,4 fm íbúð og 5,4 fm geymslu í kjallara, samtals 109,8 fm skv. HMS.
Fasteignamat 2026: 80.900.000 kr.
Nánari lýsing: Forstofa með skápum. Þrjú svefnherbergi, öll með skápum. Stofa, borðstofa og eldhús í rúmgóðu alrými með útgang á 22,9 fm svalir. Eldhús með ofn í vinnuhæð, helluborð m/viftu yfir, stæði fyrir uppþvottavél og tvöföldum ísskáp og góðu skápaplássi. Baðherbergi með sturtuklefa, baðkari, handklæðaofni og innréttingu með skápum. Þvottahús með frístandandi stálvaski og vinnuborði, tengi fyrir þvottavél og þurrkara.
Sérgeymsla og sérbílastæði í kjallara.
Sameiginleg hjóla- og vagnageymsla í kjallara.
Skv. húsfélagi hafa eftirfarandi framkvæmdir átt sér stað í húsinu:
Blásarar fyrir útsog á bað/þvott - 2025.
Hleðslustöðvar settar upp - fyrir ca. 2 árum.
Málun sameignar - fyrir ca. 4 árum.
Skipt um teppi í stigangi - fyrir ca. 4 árum.
Sílanböðun útveggja - fyrir ca. 7 árum.
Frábær staðsetning á Völlunum í Hafnarfirði þar sem alla helstu þjónustu má finna í göngufæri.
Allar nánari upplýsingar veita Arnór Daði Eiríksson löggiltur fasteignasali s. 777-0939 / arnor@as.is og Aron Freyr Eiríksson löggiltur fasteignasali í s. 772-7376 / aron@as.is
Ás fasteignasala er rótgróið fyrirtæki sem hefur veitt alla almenna þjónustu í fasteignaviðskiptum frá árinu 1988.
www.facebook.com/asfasteignasala
www.instagram.com/as_fasteignasala
www.as.is
109,8 fm 4ra herbergja endaíbúð með sér stæði í bílakjallara á 2. hæð við Einivelli 7, Hafnarfirði.
Eignin skiptist í 104,4 fm íbúð og 5,4 fm geymslu í kjallara, samtals 109,8 fm skv. HMS.
Fasteignamat 2026: 80.900.000 kr.
Nánari lýsing: Forstofa með skápum. Þrjú svefnherbergi, öll með skápum. Stofa, borðstofa og eldhús í rúmgóðu alrými með útgang á 22,9 fm svalir. Eldhús með ofn í vinnuhæð, helluborð m/viftu yfir, stæði fyrir uppþvottavél og tvöföldum ísskáp og góðu skápaplássi. Baðherbergi með sturtuklefa, baðkari, handklæðaofni og innréttingu með skápum. Þvottahús með frístandandi stálvaski og vinnuborði, tengi fyrir þvottavél og þurrkara.
Sérgeymsla og sérbílastæði í kjallara.
Sameiginleg hjóla- og vagnageymsla í kjallara.
Skv. húsfélagi hafa eftirfarandi framkvæmdir átt sér stað í húsinu:
Blásarar fyrir útsog á bað/þvott - 2025.
Hleðslustöðvar settar upp - fyrir ca. 2 árum.
Málun sameignar - fyrir ca. 4 árum.
Skipt um teppi í stigangi - fyrir ca. 4 árum.
Sílanböðun útveggja - fyrir ca. 7 árum.
Frábær staðsetning á Völlunum í Hafnarfirði þar sem alla helstu þjónustu má finna í göngufæri.
Allar nánari upplýsingar veita Arnór Daði Eiríksson löggiltur fasteignasali s. 777-0939 / arnor@as.is og Aron Freyr Eiríksson löggiltur fasteignasali í s. 772-7376 / aron@as.is
Ás fasteignasala er rótgróið fyrirtæki sem hefur veitt alla almenna þjónustu í fasteignaviðskiptum frá árinu 1988.
www.facebook.com/asfasteignasala
www.instagram.com/as_fasteignasala
www.as.is
Ár
Fasteignamat
Kaupverð
Stærð
Fermetraverð
5. feb. 2014
25.700.000 kr.
27.500.000 kr.
109.8 m²
250.455 kr.
20. jún. 2007
24.645.000 kr.
23.400.000 kr.
109.8 m²
213.115 kr.
Byggt á upplýsingum úr Þjóðskrá Íslands frá 2006-2025