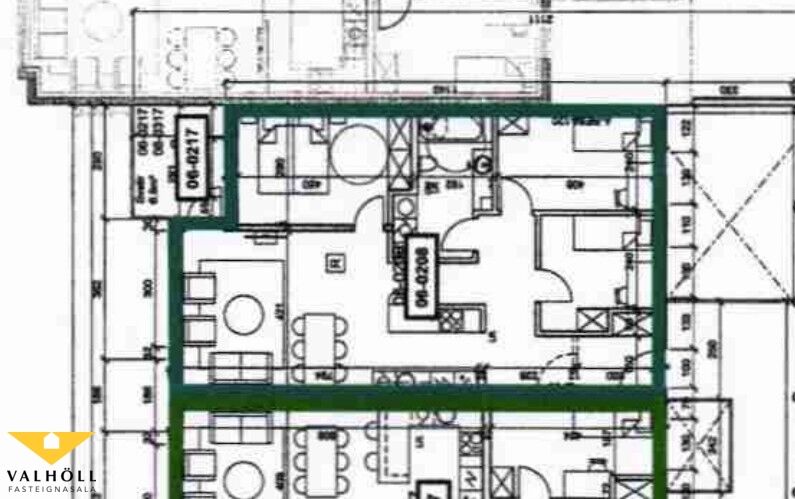
Lyngás, 210 Garðabær