Löggiltir fasteignasalar innan Félags fasteignasala:
Sverrir Kristinsson
Kjartan Hallgeirsson
Guðlaugur Ingi Guðlaugsson
Daði Hafþórsson
Gunnar Helgi Einarsson
Gunnar Bergmann Jónsson
Lilja Guðmundsdóttir
Jenný Sandra Gunnarsdóttir
Kári Sighvatsson
Vista
svg

506

svg

461  Skoðendur

svg

Skráð  28. nóv. 2025

fjölbýlishús

Vesturgata 30d íb 101

101 Reykjavík

64.900.000 kr.

1.295.409 þ.kr./m2
Fasteignanúmer

F2510012

Fasteignamat

0 kr.

Brunabótamat

0 kr.

Áhvílandi

0 kr.

Arion banki – Reikna lán
Upplýsingar
svg
Byggt 2025
svg
50,1 m²
svg
2 herb.
svg
1 baðherb.
svg
1 svefnh.
svg
Sameiginl. inngangur

Lýsing

Eignamiðlun kynnir:

Nýbyggingarverkefni við Vesturgötu 30d, 101 Reykjavík sem er blanda af nýbyggingum og friðuðu uppgerðu húsi sem fær nýtt líf. Verkefnið er hannað af Grímu arkitektum.

Glæsileg 2. herb. íbúð í hjarta miðbæjar Reykjavíkur. Nýtt steinsteypuhús klætt með Douglas timbri.  Útgengt úr svefnherbergi út á svalir. Íbúðin afhendist fullbúin með vönduðum innréttingum, eldhústækjum og gólfefnum. 

Bókið skoðun. Sýnum samdægurs. Allar upplýsingar gefa Kjartan Hallgeirsson, sími 824-9093, kjartan@eignamidlun.is og Unnar Kjartansson, sími 867-0968, unnar@eignamildun.is 


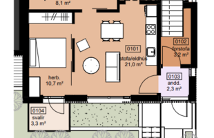
Um er að ræða nánar tiltekið íbúð 101 við Vesturgötu 30d, 2. herbergja. Íbúðin er skráð 50,10 fm. Íbúðin skiptist í anddyri, eldhús og stofu í alrými, svalir, svefnherbergi og baðherbergi.

- Eldhús með sérsmíðaðri innréttingu. Eldhúsið er fullbúið með spanhelluborði, bakaraofn, uppþvottavél og ísskáp með frysti. Öll heimilistæki eru frá Siemens. Vaskur og blöndunartæki eru frá Ísleifi Jónssyni.
- Baðherbergi með sérsmíðaðri innréttingum. Gólf eru flísalögð og veggir að lofti. Innbyggður vatnskassi og upphengt salerni. Vaskar, blöndunartæki og öll önnur hreinlætistæki eru frá Ísleifi Jónssyni.
- Íbúðin afhendist með terrazzo á gólfi.
- Ál/tré gluggar. Innihurðar eru yfirfelldar, sléttar og sprautulakkaðar hvítar frá Agli Árnasyni.
- Íbúðin er upphituð með gólfhita.
- Aðstaða fyrir þvottavél og þurrkara inn á baðherbergi.

Lóð verður fullfrágengin. Stéttir inn á lóð verða hellulagðar og með snjóbræðslulögn.

Áhugasömum er bent á að biðja um skilalýsingu hjá fasteignasala fyrir nánari upplýsingar.
Vakin er athygli á að myndirnar í auglýsingunni eru tölvugerðar og endurspegla ekki endilega útlit íbúðarinnar sem hér um ræðir.

Nánari upplýsingar veita: 
Unnar Kjartansson, löggiltur fasteignasali, sími 867-0968, unnar@eignamildun.is 
Kjartan Hallgeirsson, löggiltur fasteignasali, sími 824-9093, kjartan@eignamidlun.is


 

***
Ábyrg þjónusta í áratugi. Eignamiðlun var stofnuð 1957 og er elsta starfandi fasteignasala á Íslandi. Reynsla, heiðarleiki og þekking á fasteignamarkaðnum eru grunnur að farsælum viðskiptum. 

Eignamiðlun Grensásvegi 11, 108 Reykjavík - Opið frá kl. 9-17 mánudaga til fimmtudaga og 9-16 á föstudögum.

Heimasíða Eignamiðlunar

Eignamiðlun á Facebook

Eignamiðlun

Eignamiðlun

Grensásvegi 11, 108 Reykjavík
Eignamiðlun

Eignamiðlun

Grensásvegi 11, 108 Reykjavík