Upplýsingar
Byggt 2024
165,1 m²
4 herb.
2 baðherb.
4 svefnh.
Þvottahús
Útsýni
Hjólastólaaðgengi
Bílastæði
Lyfta
Lýsing
Nýtt í sölu glæsileg fullbúin 5 herbergja íbúð á 2.hæð við Úugötu 6 í Mosfellsbæ.
*** Stæði í bílageymslu ***
*** Útsýni ***
*** Stórar svalir ***
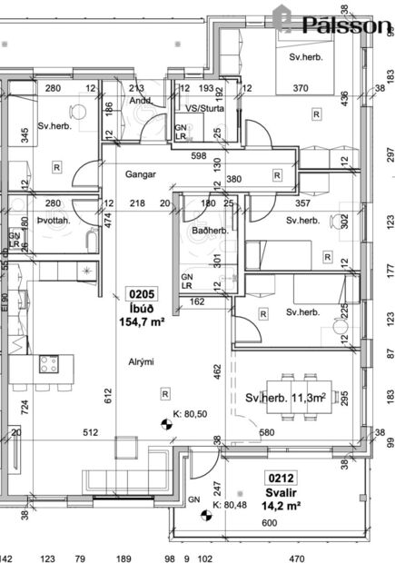
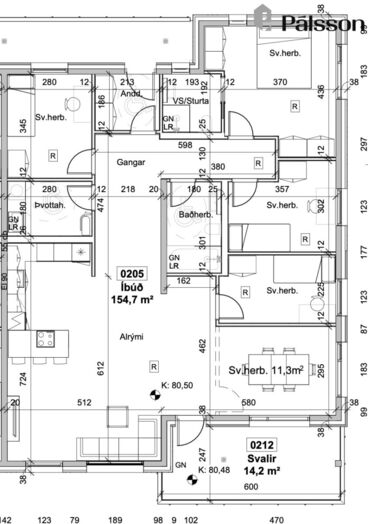
Íbúð 205 er 5 herbergja íbúð á 2.hæð í lyftuhúsi ásamt stæði í bílageymslu. Íbúðin er með 4-5 svefnherbergjum, tveimur baðherbergjum, stofa, eldhúsi og geymslu. Birt stærð eignar er 128 fm og þar af er 8 fm geymslu. Íbúðin skilast fullbúin án gólfefna en á votrýmum eru flísar. Flísar eru frá framleiðandanum Ceramiche Piemme, af gerðinni journey í litnum otta natural, frá Álfaborg, stærð 60x60 cm. Í eldhúsi fylgja vönduð eldhústæki frá Siemens. Innbyggður kæli-/frystiskápur og innbyggð uppþvottavél fylgir eldhúsi. Í eldhúsi er vönduð Nobilia innrétting frá GKS trésmiðju, borðplata frá GKS. Myndavéladyrasími. Allar innréttingar og skápar eru af vandaðri gerð frá GKS trésmiðju.
Allar nánari upplýsingar veitir
Þorgeir Símonarson löggiltur fasteignasali í síma 696-6580 eða thorgeir@palssonfasteignasala.is/
Ævar Jóhanns Lgf. s: 861-8827 / aj@palssonfasteignasala.is
Almennt um byggingarnar: Húsbyggjandi og aðalverktaki er Gerð ehf. Burðarkerfi byggingarinnar er staðsteypt. Húsið er einangrað með steinull og klætt með álklæðningarkerfi sem veðurkápu ásamt steintrefjaplötum á stigahúsi og jarðhæð. Milliveggir innanhúss eru reistir úr blikkstoðum og klæddir tvöföldu gipsi hvoru megin.
Íbúðum er skilað fullbúnum án gólfefna nem á flísum á votrýmum. Baðherbergi eru með flísalögðu gólfi og veggjum að hluta. Forstofur og gólf þvottahúsa eru flísalögð. Sameign skilast fullbúin með fullfrágengnum lyftum. Lóð er fullfrágengin, hellulögð ásamt gróðri og þökulögn skv. teikningum.
Eldhúsinnréttingar eru frá GKS trésmiðju. Eldhústæki eru frá Siemens. Baðherbergi eru flísalöggð með flísum úr Álfaborg. Á baðherbergi er handlaug, innrétting, upphengt salerni, handklæðaofn, og sturta með niðurfalli. Í bílageymslu er gert ráð fyrir mögulegri tengingu rafbíla í öllum bílastæðum.
Sameign skilast fullbúin með fullfrágenginni lyftu. Lóð er fullfrágengin, hellulögð ásamt gróðri og þökulögn skv. teikningum.
Allar nánari upplýsingar veitir
Þorgeir Símonarson löggiltur fasteignasali í síma 696-6580 eða thorgeir@palssonfasteignasala.is/
Ævar Jóhanns Lgf. s: 861-8827 / aj@palssonfasteignasala.is
Fylgdu mér á Instagram og Facebook til að fá nýjustu upplýsingar um eignir til sölu og aðrar nytsamlegar upplýsingar um fasteignamarkaðinn. Vantar þig hjálp við að finna eign kíktu á https://verdmatfasteigna.is/vid-hjalpum-ther-ad-finna-draumaeignina/ Viltu vita hvers virði þín eign er www.verdmatfasteigna.is
Gjöld sem kaupandi þarf að standa straum af vegna kaupanna:
1. Stimpilgjald af kaupsamningi - 0.8% af heildarfasteignamati / 1.6% fyrir lögaðila. (0.4% við fyrstu kaup einstaklinga).
2. Þinglýsingagjald af kaupsamningi, veðskuldabréfi, veðleyfi o.fl.- kr. 2.700 af hverju skjali.
3. Lántökugjald lánastofnunar - samanber gjaldskrá viðkomandi lánastofnunar.
4. Umsýsluþóknun til fasteignasölu, sbr.kauptilboð.
Um skoðunarskyldu:
Í lögum um fasteignakaup nr. 40/2002 er kveðið á um ríka skoðunarskyldu kaupenda á fasteignum. Pálsson fasteignasala bendir væntanlegum kaupendum á að kynna sér vel ástand fasteigna við skoðun og fyrir tilboðsgerð og ef þurfa þykir að leita til sérfræðinga um nánari ástandsskoðun.
*** Stæði í bílageymslu ***
*** Útsýni ***
*** Stórar svalir ***
Íbúð 205 er 5 herbergja íbúð á 2.hæð í lyftuhúsi ásamt stæði í bílageymslu. Íbúðin er með 4-5 svefnherbergjum, tveimur baðherbergjum, stofa, eldhúsi og geymslu. Birt stærð eignar er 128 fm og þar af er 8 fm geymslu. Íbúðin skilast fullbúin án gólfefna en á votrýmum eru flísar. Flísar eru frá framleiðandanum Ceramiche Piemme, af gerðinni journey í litnum otta natural, frá Álfaborg, stærð 60x60 cm. Í eldhúsi fylgja vönduð eldhústæki frá Siemens. Innbyggður kæli-/frystiskápur og innbyggð uppþvottavél fylgir eldhúsi. Í eldhúsi er vönduð Nobilia innrétting frá GKS trésmiðju, borðplata frá GKS. Myndavéladyrasími. Allar innréttingar og skápar eru af vandaðri gerð frá GKS trésmiðju.
Allar nánari upplýsingar veitir
Þorgeir Símonarson löggiltur fasteignasali í síma 696-6580 eða thorgeir@palssonfasteignasala.is/
Ævar Jóhanns Lgf. s: 861-8827 / aj@palssonfasteignasala.is
Almennt um byggingarnar: Húsbyggjandi og aðalverktaki er Gerð ehf. Burðarkerfi byggingarinnar er staðsteypt. Húsið er einangrað með steinull og klætt með álklæðningarkerfi sem veðurkápu ásamt steintrefjaplötum á stigahúsi og jarðhæð. Milliveggir innanhúss eru reistir úr blikkstoðum og klæddir tvöföldu gipsi hvoru megin.
Íbúðum er skilað fullbúnum án gólfefna nem á flísum á votrýmum. Baðherbergi eru með flísalögðu gólfi og veggjum að hluta. Forstofur og gólf þvottahúsa eru flísalögð. Sameign skilast fullbúin með fullfrágengnum lyftum. Lóð er fullfrágengin, hellulögð ásamt gróðri og þökulögn skv. teikningum.
Eldhúsinnréttingar eru frá GKS trésmiðju. Eldhústæki eru frá Siemens. Baðherbergi eru flísalöggð með flísum úr Álfaborg. Á baðherbergi er handlaug, innrétting, upphengt salerni, handklæðaofn, og sturta með niðurfalli. Í bílageymslu er gert ráð fyrir mögulegri tengingu rafbíla í öllum bílastæðum.
Sameign skilast fullbúin með fullfrágenginni lyftu. Lóð er fullfrágengin, hellulögð ásamt gróðri og þökulögn skv. teikningum.
- Athygli er vakin á því að einhverjar myndir hafa verið sviðsettar með tölvutækni til þess að gefa kaupendum hugmynd að nýtingu rýmis þar sem eignin er tóm.
Allar nánari upplýsingar veitir
Þorgeir Símonarson löggiltur fasteignasali í síma 696-6580 eða thorgeir@palssonfasteignasala.is/
Ævar Jóhanns Lgf. s: 861-8827 / aj@palssonfasteignasala.is
Fylgdu mér á Instagram og Facebook til að fá nýjustu upplýsingar um eignir til sölu og aðrar nytsamlegar upplýsingar um fasteignamarkaðinn. Vantar þig hjálp við að finna eign kíktu á https://verdmatfasteigna.is/vid-hjalpum-ther-ad-finna-draumaeignina/ Viltu vita hvers virði þín eign er www.verdmatfasteigna.is
Gjöld sem kaupandi þarf að standa straum af vegna kaupanna:
1. Stimpilgjald af kaupsamningi - 0.8% af heildarfasteignamati / 1.6% fyrir lögaðila. (0.4% við fyrstu kaup einstaklinga).
2. Þinglýsingagjald af kaupsamningi, veðskuldabréfi, veðleyfi o.fl.- kr. 2.700 af hverju skjali.
3. Lántökugjald lánastofnunar - samanber gjaldskrá viðkomandi lánastofnunar.
4. Umsýsluþóknun til fasteignasölu, sbr.kauptilboð.
Um skoðunarskyldu:
Í lögum um fasteignakaup nr. 40/2002 er kveðið á um ríka skoðunarskyldu kaupenda á fasteignum. Pálsson fasteignasala bendir væntanlegum kaupendum á að kynna sér vel ástand fasteigna við skoðun og fyrir tilboðsgerð og ef þurfa þykir að leita til sérfræðinga um nánari ástandsskoðun.