Upplýsingar
214,5 m²
6 herb.
2 baðherb.
4 svefnh.
Bílskúr
Sérinngangur
Opið hús: 3. desember 2025
kl. 16:30
til 17:00
Opið hús miðvikudaginn 3. des. milli kl. 16:30 & 17:00 við Virkisás 14 í Áslandi 4, Hafnarfirði - Verið velkomin!
Lýsing
Glæsilegt 214,5 fm einbýlishús á einni hæð með innbyggðum bílskúr við Virkisás 14 í nýju hverfi, Áslandi 4, Hafnarfirði.
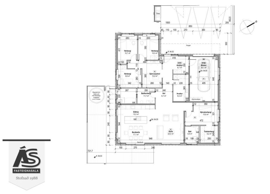
Eignin skiptist þannig að íbúðarhlutinn er 184,2 fm og bílskúrinn 30,3 fm, samtals 214,5 fm skv. HMS.
Húsið skilast á byggingarstigi 3 (tilbúið til innréttingar), einangrað og klætt að utan en nákvæmar upplýsingar um skil má sjá í skilalýsingu seljanda sem nálgast má hjá fasteignasala.
Lóðin skilast grófjöfnuð 20-40 cm frá botnplötu.
Skipting eignar skv. teikningum:
Anddyri - Sjónvarpshol - Þvottahús - Hjónaherbergi með fataherbergi og baðherbergi innaf m/sturtu - Baðherbergi m/baðkari og sturtu, útg. á lóð - Þrjú auka svefnherbergi - Eldhús og stofa í björtu alrými með útg. á lóð - Innangengt í bílskúr úr anddyri.
Frábært skipulag og staðsetning á húsinu í þessu vinsæla hverfi. Stutt í helstu þjónustu og falleg útivistarsvæði.
Nánari upplýsingar veitir Aron Freyr Eiríksson löggiltur fasteignasali í síma 772-7376 / aron@as.is
Ás fasteignasala er rótgróið fyrirtæki sem hefur veitt alla almenna þjónustu í fasteignaviðskiptum frá árinu 1988.
www.facebook.com/asfasteignasala
www.instagram.com/as_fasteignasala
www.as.is
Eignin skiptist þannig að íbúðarhlutinn er 184,2 fm og bílskúrinn 30,3 fm, samtals 214,5 fm skv. HMS.
Húsið skilast á byggingarstigi 3 (tilbúið til innréttingar), einangrað og klætt að utan en nákvæmar upplýsingar um skil má sjá í skilalýsingu seljanda sem nálgast má hjá fasteignasala.
Lóðin skilast grófjöfnuð 20-40 cm frá botnplötu.
Skipting eignar skv. teikningum:
Anddyri - Sjónvarpshol - Þvottahús - Hjónaherbergi með fataherbergi og baðherbergi innaf m/sturtu - Baðherbergi m/baðkari og sturtu, útg. á lóð - Þrjú auka svefnherbergi - Eldhús og stofa í björtu alrými með útg. á lóð - Innangengt í bílskúr úr anddyri.
Frábært skipulag og staðsetning á húsinu í þessu vinsæla hverfi. Stutt í helstu þjónustu og falleg útivistarsvæði.
Nánari upplýsingar veitir Aron Freyr Eiríksson löggiltur fasteignasali í síma 772-7376 / aron@as.is
Ás fasteignasala er rótgróið fyrirtæki sem hefur veitt alla almenna þjónustu í fasteignaviðskiptum frá árinu 1988.
www.facebook.com/asfasteignasala
www.instagram.com/as_fasteignasala
www.as.is