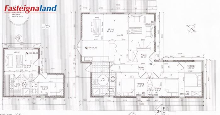
Kerhraun, 805 Selfoss