Upplýsingar
150,6 m²
4 herb.
2 baðherb.
3 svefnh.
Sérinngangur
Lýsing
Sumarhús og gestahús í byggingu í Kerhrauni.
Seljandi skoðar að taka bíl eða húsbíl upp í kaupverð.
Fasteignaland kynnir: Sumarhús og gestahús í byggingu inn á skipulögðu sumarhúsasvæði í Kerhrauni. Um ræða 113,8 fm hús auk 36,8 fm gestahús eða samtals 150,6 fm samkvæmt Þjóðskrá Íslands.
Húsin standa á 5.031 fm eignarlóð með fallegu útsýni. Svæðið er lokað með rafmagnshliði (símahlið).
Hægt er að kaupa húsið á byggingarstigi eða fullbúið.
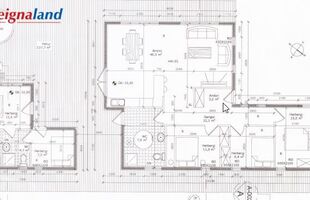
Samkvæmt teikningum er skipulag húsanna eftirfarandi.
Aðalhús:
Lýsing: Forstofa, þrjú herbergi, baðherbergi, stofa og eldhús í sama rými.
Gestahús:
Lýsing: Tvö herbergi, baðherbergi og eldhúskrókur.
Verð:
1. Miðað við að húsið sé tilbúið að utan, grófjöfnuð lóð. Þak svart Aluzink, gluggar ál/tré, klætt að utan með flísum, Vatn og rafmagn komið. Úveggir að innan einangraðir, loft, plastað og grindur útveggja komnar upp. Heitt vatn og kalt ásamt rafmagni komið að húsi. Þ.e.a.s heimtaugagjöld greidd.
Verð um kr. 67.000.000. Afhending samkvæmt samkomulagi.
2.
Fullbúið að innan, vandaðar innréttingar, flísalögð gólf og baðherbergi (efnisval valfrjálst), Loft og veggir málaðir.
Verð kr. 98.000.000. Afhending samkvæmt samkomulagi.
3. Fullbúið að utan sem innan. 150 fm sólpallur með heitum potti og skjólvegg að hluta.
Verð kr. 112.000.000. Afhending samkvæmt samkomulag
Stutt er til þekktra staða Suðurlandi, Skálholts, Þingvalla, Laugarvatns, Geysis, Gullfoss og Kersins. Stutt er í veiði, sundlaug, golfvöll og fallegar gönguleiðir. Selfoss er aðeins í 16 km fjarlægð og því stutt í alla þjónustu. Frá Reykjavík eru aðeins um 70 km sé ekið um Hellisheiði. Styttra um Nesjavelli og Þingvallaleið.
Upplýsingar gefa:
Heimir Eðvarðsson, löggiltur fasteignasali s. 893-1485, netfang: heimir@fasteignaland.is
Árni Björn Erlingsson, löggiltur fasteignasali s. 898-0508 netfang: arni@fasteignaland.is
Jón Smári Einarsson, löggiltur fasteignasasli s. 860-6400, netfang: jonsmari@fasteignaland.is
Seljandi skoðar að taka bíl eða húsbíl upp í kaupverð.
Fasteignaland kynnir: Sumarhús og gestahús í byggingu inn á skipulögðu sumarhúsasvæði í Kerhrauni. Um ræða 113,8 fm hús auk 36,8 fm gestahús eða samtals 150,6 fm samkvæmt Þjóðskrá Íslands.
Húsin standa á 5.031 fm eignarlóð með fallegu útsýni. Svæðið er lokað með rafmagnshliði (símahlið).
Hægt er að kaupa húsið á byggingarstigi eða fullbúið.
Samkvæmt teikningum er skipulag húsanna eftirfarandi.
Aðalhús:
Lýsing: Forstofa, þrjú herbergi, baðherbergi, stofa og eldhús í sama rými.
Gestahús:
Lýsing: Tvö herbergi, baðherbergi og eldhúskrókur.
Verð:
1. Miðað við að húsið sé tilbúið að utan, grófjöfnuð lóð. Þak svart Aluzink, gluggar ál/tré, klætt að utan með flísum, Vatn og rafmagn komið. Úveggir að innan einangraðir, loft, plastað og grindur útveggja komnar upp. Heitt vatn og kalt ásamt rafmagni komið að húsi. Þ.e.a.s heimtaugagjöld greidd.
Verð um kr. 67.000.000. Afhending samkvæmt samkomulagi.
2.
Fullbúið að innan, vandaðar innréttingar, flísalögð gólf og baðherbergi (efnisval valfrjálst), Loft og veggir málaðir.
Verð kr. 98.000.000. Afhending samkvæmt samkomulagi.
3. Fullbúið að utan sem innan. 150 fm sólpallur með heitum potti og skjólvegg að hluta.
Verð kr. 112.000.000. Afhending samkvæmt samkomulag
Stutt er til þekktra staða Suðurlandi, Skálholts, Þingvalla, Laugarvatns, Geysis, Gullfoss og Kersins. Stutt er í veiði, sundlaug, golfvöll og fallegar gönguleiðir. Selfoss er aðeins í 16 km fjarlægð og því stutt í alla þjónustu. Frá Reykjavík eru aðeins um 70 km sé ekið um Hellisheiði. Styttra um Nesjavelli og Þingvallaleið.
Upplýsingar gefa:
Heimir Eðvarðsson, löggiltur fasteignasali s. 893-1485, netfang: heimir@fasteignaland.is
Árni Björn Erlingsson, löggiltur fasteignasali s. 898-0508 netfang: arni@fasteignaland.is
Jón Smári Einarsson, löggiltur fasteignasasli s. 860-6400, netfang: jonsmari@fasteignaland.is