Upplýsingar
Verðsaga
Byggt 1977
167,4 m²
3 herb.
1 baðherb.
Sérinngangur
Lýsing
Fasteignasalan Hvammur - 466-1600
Óseyri 6b eignarhluti 201 - Rúmgott og mikið endurnýjað atvinnuhúsnæði á góðum stað á Óseyri sem gæti nýst á marga vegu - stærð 167,4 m²
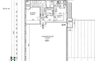
Eignin skiptist í anddyri, hol, skrifstofu, salerni, eldhús og sal.
Anddyri er með flísum á gólfum og fatahengi. Þaðan er gengið upp stiga upp í aðal rými eignarinnar
Holið er með flísum á gólfi og þaðan er gengið inn í öll rými.
Skrifstofan er rúmgóð með flísum á gólfi. Innaf skrifstofu er lítil geymsla sem gæti nýst sem skjalageymsla.
Salerni er með flísum á gólfum og viðarlitaðri innréttingu með flísum á milli skápa.
Eldhúsið er með flísum á gólfi og lakkaðri innréttingu, inn af eldhúsinu er lítil ræstikompa.
Salurinn er mjög rúmgóður með nýju harðparketi á gólfi. Stokkur með tölvutengjum fyrir margar starfsstöðvar ef rýmið er notað sem skrifstofurými.
Annað:
- Rúmgóður salur sem gæti nýst sem til dæmis skrifstofur eða veislusalur.
- Ljósleiðari er komin inn og tengdur.
- Nýtt Harðparket lagt á allan salinn í lok árs 2024.
- Ný lýsing í salnum síðan í lok árs 2024
- Ný gler eru í gluggum á norðurhlið, einnig hefur verið skipt um opnanleg fög.
- Eignin er ný máluð.
Um skoðunar- og aðgæsluskyldu:
Í lögum um fasteignakaup nr. 40/2002 er kveðið á um ríka skoðunarskyldu kaupenda á fasteignum. Fasteignasalan Hvammur skorar því á væntanlega kaupendur að kynna sér vel ástand fasteigna fyrir kauptilboðsgerð og leita til þar til bærra sérfræðinga um nánari skoðun ef með þarf.
Forsendur söluyfirlits:
Söluyfirlit er samið af fasteignasala í samræmi við ákvæði laga nr. 70/2015. Þær upplýsingar sem fram koma í söluyfirliti þessu eru sóttar í opinberar skrár, til seljanda sjálfs og eftir atvikum til húsfélags. Seljandi veitir upplýsingar um eign í samræmi við upplýsingaskyldu laga um fasteignakaup nr. 40/2002. Fasteignasali sannreynir að þær upplýsingar séu réttar með sjónskoðun á eigninni.
Fasteignasali getur ekki fullyrt um ástand og eiginleika þeirra hluta fasteigna sem ekki eru aðgengilegir og sjást ekki berum augum, t.d. lagnir, dren, skólp og þak.
Óseyri 6b eignarhluti 201 - Rúmgott og mikið endurnýjað atvinnuhúsnæði á góðum stað á Óseyri sem gæti nýst á marga vegu - stærð 167,4 m²
Eignin skiptist í anddyri, hol, skrifstofu, salerni, eldhús og sal.
Anddyri er með flísum á gólfum og fatahengi. Þaðan er gengið upp stiga upp í aðal rými eignarinnar
Holið er með flísum á gólfi og þaðan er gengið inn í öll rými.
Skrifstofan er rúmgóð með flísum á gólfi. Innaf skrifstofu er lítil geymsla sem gæti nýst sem skjalageymsla.
Salerni er með flísum á gólfum og viðarlitaðri innréttingu með flísum á milli skápa.
Eldhúsið er með flísum á gólfi og lakkaðri innréttingu, inn af eldhúsinu er lítil ræstikompa.
Salurinn er mjög rúmgóður með nýju harðparketi á gólfi. Stokkur með tölvutengjum fyrir margar starfsstöðvar ef rýmið er notað sem skrifstofurými.
Annað:
- Rúmgóður salur sem gæti nýst sem til dæmis skrifstofur eða veislusalur.
- Ljósleiðari er komin inn og tengdur.
- Nýtt Harðparket lagt á allan salinn í lok árs 2024.
- Ný lýsing í salnum síðan í lok árs 2024
- Ný gler eru í gluggum á norðurhlið, einnig hefur verið skipt um opnanleg fög.
- Eignin er ný máluð.
Um skoðunar- og aðgæsluskyldu:
Í lögum um fasteignakaup nr. 40/2002 er kveðið á um ríka skoðunarskyldu kaupenda á fasteignum. Fasteignasalan Hvammur skorar því á væntanlega kaupendur að kynna sér vel ástand fasteigna fyrir kauptilboðsgerð og leita til þar til bærra sérfræðinga um nánari skoðun ef með þarf.
Forsendur söluyfirlits:
Söluyfirlit er samið af fasteignasala í samræmi við ákvæði laga nr. 70/2015. Þær upplýsingar sem fram koma í söluyfirliti þessu eru sóttar í opinberar skrár, til seljanda sjálfs og eftir atvikum til húsfélags. Seljandi veitir upplýsingar um eign í samræmi við upplýsingaskyldu laga um fasteignakaup nr. 40/2002. Fasteignasali sannreynir að þær upplýsingar séu réttar með sjónskoðun á eigninni.
Fasteignasali getur ekki fullyrt um ástand og eiginleika þeirra hluta fasteigna sem ekki eru aðgengilegir og sjást ekki berum augum, t.d. lagnir, dren, skólp og þak.
Ár
Fasteignamat
Kaupverð
Stærð
Fermetraverð
13. nóv. 2007
11.180.000 kr.
16.000.000 kr.
20201 m²
792 kr.
Byggt á upplýsingum úr Þjóðskrá Íslands frá 2006-2025