Upplýsingar
Verðsaga
Byggt 2023
73,8 m²
3 herb.
Lýsing
Borgir fasteignasala kynnir eignina Hofsvík 10, 805 Selfoss, nánar tiltekið eign merkt 01-01, fastanúmer 234-4323 ásamt öllu því sem eigninni fylgir, þar með talið tilheyrandi lóðar- og sameignarréttindi.
Um er að ræða hús sem er framleitt af Citic Construction sem er einn af stærstu framleiðendum á húsum í heimi og er stálgrindar einingahús með tveimur svefnherbergjum, tveimur baðherbergjum, eldhúsi/borðstofu/stofu, mikilli lofthæð og gólfsíðum gluggum og fallegu útsýni. Hiti í gólfi er frá Danfoss. Halogen ljós eru í loftinu. Pallur með góðum skjólvegg. Öryggisgler er í öllu húsinu. Heitur rafmagnspottur og sauna. Húsið er sett saman af Gunnarsfell verktökum. Byggingafræði, neysluvatnslagnir og fráveitulagnir eru frá Glóra. Studio F sá um arkitektúr og Akkur sf. sá um raflagnir.
Hægt er að sjá allt um húsið á gogg.is " Teikningar af byggingum"
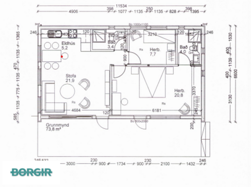
Eignin Hofsvík 10 er skráð sem sumarhús í Grímsnesi nánar tiltekið í Hraunborgum í landi Sjómannadagsráðs í 45 mín akstursfjarlægð frá Reykjavík. Birt stærð er 73.8 fm.
Nánari upplýsingar veita:
Jóhanna M Jóhannsdóttir, Löggiltur fasteignasali, johanna@borgir.is sími 8200788
Bjarklind Þór, Löggiltur fasteignasali, bjarklind@borgir.is sími 6905123
Nánari lýsing:
Inngangur: Gengið er beint inní stofu/borðstofu með plast parketi á gólfi með gólfsíðum gluggum sem snúa til suðurs, mikilli lofthæð og fallegu útsýni.
Eldhús/borðstofa: Innrétting með bakarofni og helluborði af gerðinni Vatti, vifta og vaskur. Plastparket er á gólfi.
Hjónaherbergi: Með plastparketi, gólfsíðum gluggum og hurð út á pall, innaf herbergi er baðherbergi með sturtuklefa, baðinnréttingu með vaski og upphengt salerni. Flísar á gólfi og veggjum.
Herbergi: Með plastparketi á gólfi.
Baðherbergi: Baðinnrétting og upphengt salerni. Gólfið er flísalagt og einnig veggir upp í loft sem og sturtuklefinn.
Skriðkjallari: Undir öllu húsinu
Byggingarlýsing:
Húsið er frístundahús sem er að hluta samansett einingahús á steyptum sökkli.
Undirstaða eru steyptir veggir og er það jafnframt notað sem lagnakjallari.
Gólfið er gert úr stálrömmum með 45x200 gólfbitum, einangrað með 200 steinull. Neðan á gólfbita kemur rakavörn 0,2mm og 9mm krossviður 22x45mm lagnagrind og 9mm krossviður. Ofaná gólfbita kemur 0,2mm rakavörn, 22mm gólfplötur, 15mm gólfhiti, dúkur og efsta lag er gólfklæðning að vali verkkaupa.
Útveggir eru gerðir úr stálgrind með áfastri trégrind 45x145mm, einangraðir með 145mm steinull, klæddir að innan með 0,2mm rakavarnarlagi, lagnagrind 45x45, 9mm krossvið/obs plötum og 13mm gifsplötum. Að utan er 9mm krossviður (opið fyrir útöndun) sem vindþétting, loftbil 20mm og liggjandi 15mm vatnsklæðning.
Þak ysta lag er tjörupappi (tvöfalt lag). Undir tjörupappa kemur 18mm krossviður, loftunarlistar 21x45 og sperrur sem eru 45x225mm. Á milli sprerra kemur 225mm steinull (þakull) með vindpappa, rakavarnalag 0,22mm og neðan á sperrur koma rafmagnsgrind 34x45 og klæðning (t.d panill) að vali húseiganda.
Innveggir eru trégrind 45x70mm einangraðir með 50mm steinull, klæddir með 12mm krossviðsplötu og 13mm gifsplötu.
Gluggar og hurðir eru úr tré með k-gleri. Loftbil á milli glerja er 12mm í föstum körmum en 9mm í opnanlegum fögum og hurðum.
Lagnir eru hefðbundnar, upphitun er hitaveita í gólfhita.
Eldvarnir og eldvarnarmerkingar eru samkvæmt bygginga-og brunavarnareglugerð. Flóttaleiðir eru um útihurð og hurð út á pall, björgunarop skulu vera samkv. grein 9,5,5 í byggingarreglugerð 112/2012 frá 16 apríl 2013.
Annað/Umhverfi:
Lóðin er vel staðsett með fallegu útsýni.
Lóðarleigusamningur í gildi til 31.ágúst 2067 og er rúmlega 134.000.- á ári.
Sumarhúsafélagsgjald er um 20.000.- á ári.
Öryggishlið er inn á svæðið og öflugt sumarhúsafélag.
Hitaveita
Rotþró í jörðu. Vegur og bílastæði.
Stutt er í allskyns afþreyingu, útivstarsvæði og þjónustu. Á svæðinu eru t.d. sundlaug með heitum potti og eimbaði, hjólhýsastæði, æfingagolfvöllur, minigolf, sparkvöllur, leiksvæði fyrir börn og verslun sem starfrækt er að sumarlagi. Stærri golfvöllur, verslanir og margt fleira er svo í nokkura mínútna akstursfjarlægð.
Um er að ræða hús sem er framleitt af Citic Construction sem er einn af stærstu framleiðendum á húsum í heimi og er stálgrindar einingahús með tveimur svefnherbergjum, tveimur baðherbergjum, eldhúsi/borðstofu/stofu, mikilli lofthæð og gólfsíðum gluggum og fallegu útsýni. Hiti í gólfi er frá Danfoss. Halogen ljós eru í loftinu. Pallur með góðum skjólvegg. Öryggisgler er í öllu húsinu. Heitur rafmagnspottur og sauna. Húsið er sett saman af Gunnarsfell verktökum. Byggingafræði, neysluvatnslagnir og fráveitulagnir eru frá Glóra. Studio F sá um arkitektúr og Akkur sf. sá um raflagnir.
Hægt er að sjá allt um húsið á gogg.is " Teikningar af byggingum"
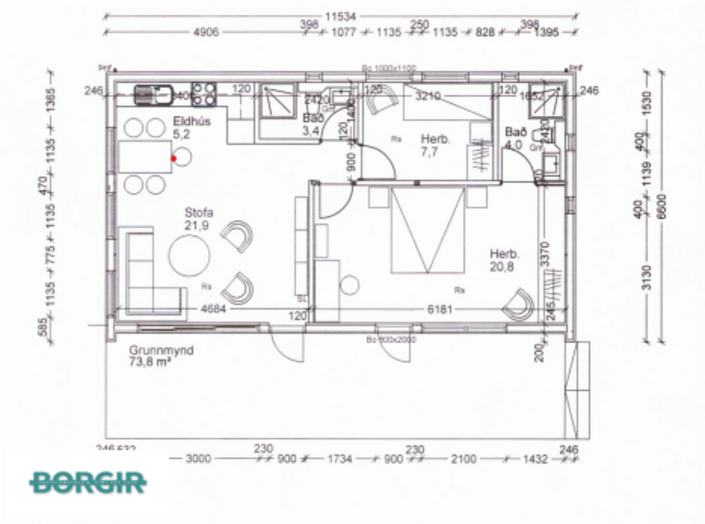
Eignin Hofsvík 10 er skráð sem sumarhús í Grímsnesi nánar tiltekið í Hraunborgum í landi Sjómannadagsráðs í 45 mín akstursfjarlægð frá Reykjavík. Birt stærð er 73.8 fm.
Nánari upplýsingar veita:
Jóhanna M Jóhannsdóttir, Löggiltur fasteignasali, johanna@borgir.is sími 8200788
Bjarklind Þór, Löggiltur fasteignasali, bjarklind@borgir.is sími 6905123
Nánari lýsing:
Inngangur: Gengið er beint inní stofu/borðstofu með plast parketi á gólfi með gólfsíðum gluggum sem snúa til suðurs, mikilli lofthæð og fallegu útsýni.
Eldhús/borðstofa: Innrétting með bakarofni og helluborði af gerðinni Vatti, vifta og vaskur. Plastparket er á gólfi.
Hjónaherbergi: Með plastparketi, gólfsíðum gluggum og hurð út á pall, innaf herbergi er baðherbergi með sturtuklefa, baðinnréttingu með vaski og upphengt salerni. Flísar á gólfi og veggjum.
Herbergi: Með plastparketi á gólfi.
Baðherbergi: Baðinnrétting og upphengt salerni. Gólfið er flísalagt og einnig veggir upp í loft sem og sturtuklefinn.
Skriðkjallari: Undir öllu húsinu
Byggingarlýsing:
Húsið er frístundahús sem er að hluta samansett einingahús á steyptum sökkli.
Undirstaða eru steyptir veggir og er það jafnframt notað sem lagnakjallari.
Gólfið er gert úr stálrömmum með 45x200 gólfbitum, einangrað með 200 steinull. Neðan á gólfbita kemur rakavörn 0,2mm og 9mm krossviður 22x45mm lagnagrind og 9mm krossviður. Ofaná gólfbita kemur 0,2mm rakavörn, 22mm gólfplötur, 15mm gólfhiti, dúkur og efsta lag er gólfklæðning að vali verkkaupa.
Útveggir eru gerðir úr stálgrind með áfastri trégrind 45x145mm, einangraðir með 145mm steinull, klæddir að innan með 0,2mm rakavarnarlagi, lagnagrind 45x45, 9mm krossvið/obs plötum og 13mm gifsplötum. Að utan er 9mm krossviður (opið fyrir útöndun) sem vindþétting, loftbil 20mm og liggjandi 15mm vatnsklæðning.
Þak ysta lag er tjörupappi (tvöfalt lag). Undir tjörupappa kemur 18mm krossviður, loftunarlistar 21x45 og sperrur sem eru 45x225mm. Á milli sprerra kemur 225mm steinull (þakull) með vindpappa, rakavarnalag 0,22mm og neðan á sperrur koma rafmagnsgrind 34x45 og klæðning (t.d panill) að vali húseiganda.
Innveggir eru trégrind 45x70mm einangraðir með 50mm steinull, klæddir með 12mm krossviðsplötu og 13mm gifsplötu.
Gluggar og hurðir eru úr tré með k-gleri. Loftbil á milli glerja er 12mm í föstum körmum en 9mm í opnanlegum fögum og hurðum.
Lagnir eru hefðbundnar, upphitun er hitaveita í gólfhita.
Eldvarnir og eldvarnarmerkingar eru samkvæmt bygginga-og brunavarnareglugerð. Flóttaleiðir eru um útihurð og hurð út á pall, björgunarop skulu vera samkv. grein 9,5,5 í byggingarreglugerð 112/2012 frá 16 apríl 2013.
Annað/Umhverfi:
Lóðin er vel staðsett með fallegu útsýni.
Lóðarleigusamningur í gildi til 31.ágúst 2067 og er rúmlega 134.000.- á ári.
Sumarhúsafélagsgjald er um 20.000.- á ári.
Öryggishlið er inn á svæðið og öflugt sumarhúsafélag.
Hitaveita
Rotþró í jörðu. Vegur og bílastæði.
Stutt er í allskyns afþreyingu, útivstarsvæði og þjónustu. Á svæðinu eru t.d. sundlaug með heitum potti og eimbaði, hjólhýsastæði, æfingagolfvöllur, minigolf, sparkvöllur, leiksvæði fyrir börn og verslun sem starfrækt er að sumarlagi. Stærri golfvöllur, verslanir og margt fleira er svo í nokkura mínútna akstursfjarlægð.
Í lögum um fasteignakaup nr. 40/2002 er kveðið á um ríka skoðunarskyldu kaupenda á fasteignum.
Vill Borgir því skora væntanlega kaupendur á að kynna sér vel ástand fasteigna fyrir kauptilboðsgerð og leita til þar til bæra sérfræðinga um nánari skoðun.
Gjöld sem kaupandi þarf að standa straum af vegna kaupanna:
1. Stimpilgjald af kaupsamningi - 0,8%(einstaklingar) 1.6% (lögaðilar) af heildarfasteignamati.
2. Þinglýsingargjald af kaupsamningi, veðskuldabréfi, mögulegu veðleyfi o.fl. - kr. 2.700 af hverju skjali.
3. Lántökugjald lánastofnunar - almennt 45-75 þús.kr. Nánari upplýsingar á heimasíðu lánastofnana.
4. Umsýslugjald til fasteignasölu kr. 70.000 mvsk.
Ár
Fasteignamat
Kaupverð
Stærð
Fermetraverð
24. ágú. 2018
2.820.000 kr.
30.000.000 kr.
73.8 m²
406.504 kr.
Byggt á upplýsingum úr Þjóðskrá Íslands frá 2006-2025