Löggiltir fasteignasalar innan Félags fasteignasala:
Sigurður Maack Gunnarsson
Svanþór Einarsson
Theodór Emil Karlsson
Steingrímur Benediktsson
Vista
raðhús

Tröllateigur 31

270 Mosfellsbær

129.900.000 kr.

784.894 þ.kr./m2
Fasteignanúmer

F2275507

Fasteignamat

99.850.000 kr.

Brunabótamat

85.500.000 kr.

Áhvílandi

0 kr.

Arion banki – Reikna lán
Upplýsingar
Verðsaga
svg
Byggt 2004
svg
165,5 m²
svg
5 herb.
svg
2 baðherb.
svg
4 svefnh.
svg
Þvottahús
svg
Bílskúr
svg
Sérinngangur
Opið hús: 16. desember 2025 kl. 16:30 til 17:00

Opið hús: Tröllateigur 31, 270 Mosfellsbær. Eignin verður sýnd þriðjudaginn 16. desember 2025 milli kl. 16:30 og kl. 17:00.

Lýsing

** Opið hús ​​​​​​þriðjudaginn frá kl. 16:30 til 17:00 - Theodór Emil Karlsson, löggiltur fasteignasali - teddi@fastmos.is eða 690-8040  ​- Svanþór Einarsson, löggiltur fasteignasali - svanthor@fastmos.is eða 698-8555 - Steingrímur Benediktsson, löggiltur fasteignasali - steingrimur@fastmos.is eða 862-9416 **

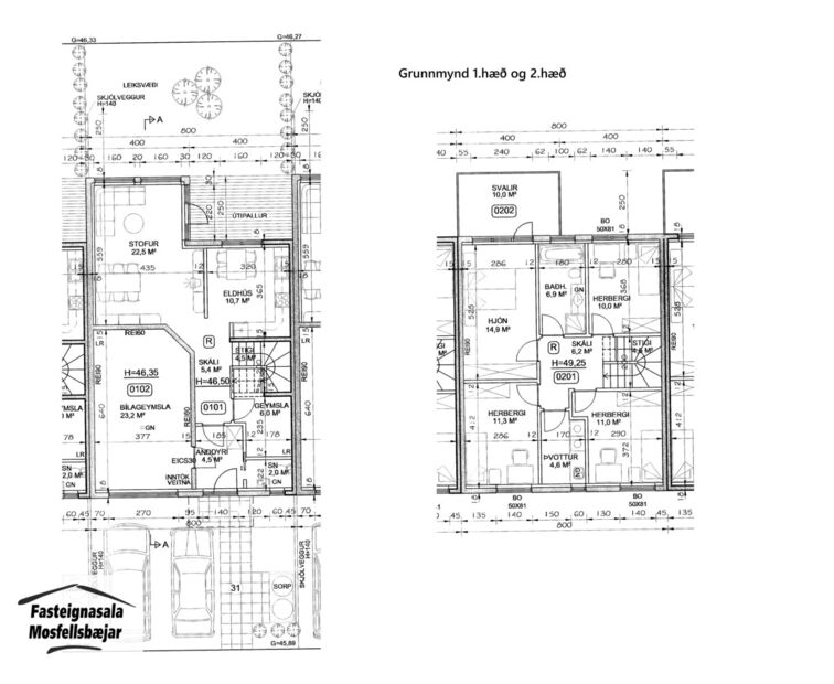
Fasteignasala Mosfellsbæjar kynnir: Fallegt og vel skipulagt 165,5 m2 4-5 berbergja raðhús á tveimur hæðum með innbyggðum bílskúr við Tröllateig 31 í Mosfellsbæ. Eignin er skráð 165,5 m2, þar af raðhús 139,5 m2 og bílskúr 26,0 m2. Eignin skiptist í: Neðri hæð: Forstofa, gestasalerni, gangur, geymsla, eldhús, stofa/borðstofa og bílskúr. Efri hæð: þrjú svefnherbergi, baðherbergi, þvottahús og sjónvarpshol sem hægt er að breyta í svefnherbergi. Stór timburverönd með heitum potti og svalir í suðurátt. Hellulagt upphitað bílaplan. Góð staðsetning miðsvæðis í Mosfellsbæ. Stutt í skóla, íþróttasvæði, verslun, heilsugæslu og alla helstu þjónustu.

Smelltu hér til að fá söluyfirlit sent strax.

Nánari lýsing:

Neðri hæð:
Forstofa er með flísum á gólfi. Úr forstofu er innangengt í bílskúr. 
Gestasalerni er inn af forstofu með flísum á gólfi og veggjum, vegghengdu salerni og handlaug.
Gangur er með flísum á gólfi.
Geymsla er inn af gangi.
Stofa/borðstofa er með parketi á gólfi. Er í opnu rými með eldhúsi. Úr stofu er gengið út á stóra timburverönd í suðurátt með heitum potti. Þaðan er aðgengi út í garð.
Eldhús er með flísum á gólfi og góðri innréttingu með eldhúsvaski, bakaraofni, helluborði og háfi. Gert er ráð fyrir ísskáp og uppþvottavél í innréttingu. 
Bílskúr er skráður 26,0 m2 og er með flísum á gólfi og rafdrifnum bílskúrshurðaopnara. Búið er að setja upp hleðslustöð fyrir rafmagnsbíl í bílskúr sem fylgir.
Stigi upp á efri hæð er flísalagður.

Efri hæð:
Gangur er með parketi á gólfi.
Svefnherbergi nr. 1 (hjónaherbergi) er rúmgott með parketi á gólfi og góðum fataskápum. Úr hjónaherbergi er útgengt á svalir í suðurátt.
Svefnherbergi nr. 2 er með parketi á gólfi og fataskáp.
Svefnherbergi nr. 3 er með parketi á gólfi og fataskáp.
Sjónvarpshol er opið við gang og með parketi á gólfi. Á teikningum er er rýmið svefnherbergi og því möguleiki á að bæta við fjórða herberginu.
Baðherbergi er flísalagt í hólf og gólf, með innréttingu, handlaug, sturtuklefa, baðkari með sturtuaðstöðu, upphengdu salerni og handklæðaofni. Opnanlegur gluggi er á baðherberginu.
Þvottahús er með flísum á gólfi, góðri innréttingu, skolvaski og tengi fyrir þvottavél og þurrkara. 

Fyrirhugað fasteignamat fyrir árið 2026 er kr. 110.850.000.-

Verð kr. 129.900.000,- 



Um skoðunar- og aðgæsluskyldu:
Í lögum um fasteignakaup nr. 40/2002 er kveðið á um ríka skoðunarskyldu kaupenda á fasteignum. Fasteignasala Mosfellsbæjar skorar því á væntanlega kaupendur að kynna sér vel ástand fasteigna fyrir kauptilboðsgerð og leita til þar til bærra sérfræðinga um nánari skoðun ef með þarf.

Forsendur söluyfirlits:
Söluyfirlit er samið af fasteignasala í samræmi við ákvæði laga nr. 70/2015. Þær upplýsingar sem fram koma í söluyfirliti þessu eru sóttar í opinberar skrár, til seljanda sjálfs og eftir atvikum til húsfélags. Seljandi veitir upplýsingar um eign í samræmi við upplýsingaskyldu laga um fasteignakaup nr. 40/2002. Fasteignasali sannreynir að þær upplýsingar séu réttar með sjónskoðun á eigninni.
Fasteignasali getur ekki fullyrt um ástand og eiginleika þeirra hluta fasteigna sem ekki eru aðgengilegir og sjást ekki berum augum, t.d. lagnir, dren, skólp og þak.

Gjöld sem kaupandi þarf að greiða vegna kaupa:
1. Stimpilgjald af kaupsamningi sem er hlutfall af fasteignamati. Stimpilgjald er 0,8% fyrir einstaklinga (0,4% við fyrstu kaup) og 1,6% fyrir lögaðila.
2. Þinglýsingargjald af kaupsamningi, veðskuldabréfum, veðleyfum o.fl. Þinglýsingargjald er kr. 2.700,- fyrir hvert skjal.
3. Lántökugjald lánastofnunar - er skv. gjaldskrá viðkomandi lánastofnunar.
4. Umsýslugjald til fasteignasölu skv. kauptilboði.
5. Þegar um nýbyggingu er að ræða greiðir kaupandi skipulagsgjald, 0,3% af endanlegu brunabótamáti, þegar það er lagt á af viðkomandi sveitarfélagi.

img
Svanþór Einarsson
Lögg.fasteignasali innan félags fasteignasala
Fasteignasala Mosfellsbæjar
Þverholti 2, 270 Mosfellsbæ
Fasteignasala Mosfellsbæjar

Fasteignasala Mosfellsbæjar

Þverholti 2, 270 Mosfellsbæ
phone
img

Svanþór Einarsson

Þverholti 2, 270 Mosfellsbæ
Ár
Fasteignamat
Kaupverð
Stærð
Fermetraverð
23. apr. 2012
32.800.000 kr.
38.300.000 kr.
165.5 m²
231.420 kr.
Byggt á upplýsingum úr Þjóðskrá Íslands frá 2006-2025
Fasteignasala Mosfellsbæjar

Fasteignasala Mosfellsbæjar

Þverholti 2, 270 Mosfellsbæ
phone

Svanþór Einarsson

Þverholti 2, 270 Mosfellsbæ