Löggiltir fasteignasalar innan Félags fasteignasala:
Hafdís Rafnsdóttir
Dórothea E. Jóhannsdóttir
Sigurður Gunnlaugsson
Jón Gunnar Gíslason
Hafliði Halldórsson
Aðalsteinn Bjarnason
Margrét Rós Einarsdóttir
Guðný Ösp Ragnarsdóttir
Elka Guðmundsdóttir
Vista
svg

813

svg

661  Skoðendur

svg

Skráð  15. des. 2025

fjölbýlishús

Helluvað 15

110 Reykjavík

69.900.000 kr.

798.857 þ.kr./m2
Fasteignanúmer

F2282958

Fasteignamat

66.000.000 kr.

Brunabótamat

54.070.000 kr.

Áhvílandi

0 kr.

Arion banki – Reikna lán
Upplýsingar
svg
Byggt 2007
svg
87,5 m²
svg
3 herb.
svg
1 baðherb.
svg
2 svefnh.
svg
Sameiginl. inngangur
svg
Bílastæði
svg
Lyfta

Lýsing


*EIGNIN ER SELD OG ÞVÍ FELLUR OPIÐ HÚS NIÐUR*
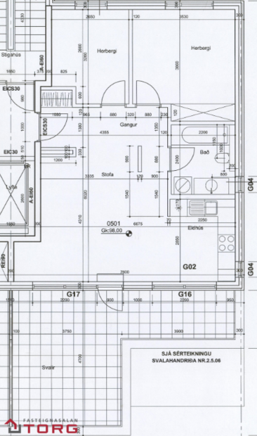
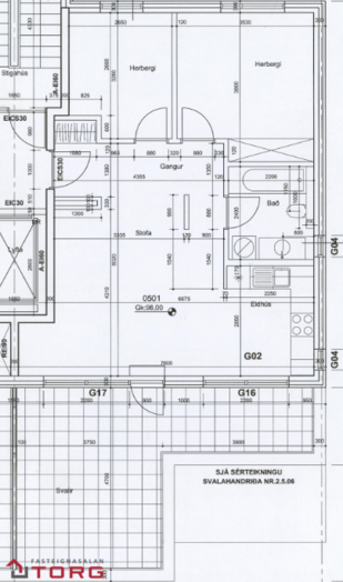
TORG FASTEIGNASALA KYNNIR:  Snyrtileg, þriggja herbergja, 87,5 fm endaíbúð á fimmtu og efstu hæð. Eignin skiptist í anddyri, hol sem tengir rými eignar, eldhús, stofu, tvö svefnherbergi og baðherbergi. Rúmgóðar þaksvalir til suðvesturs með glæsilegu útsýni. Stæði í bílakjallara og sérgeymsla í sameign. Eignin er afhent við kaupsamning. Allar nánari upplýsingar veitir Matthildur Sunna Þorláksdóttir, lögfræðingur og löggiltur fasteignasali, í síma 690-4966 eða matthildur@fstorg.is - SÆKJA SÖLUYFIRLIT HÉR


Forsendur söluyfirlits: 
Söluyfirlit er samið af fasteignasala í samræmi við ákvæði laga nr. 70/2015. Þær upplýsingar sem fram koma í söluyfirliti þessu eru sóttar í opinberar skrár, til seljanda sjálfs og eftir atvikum til húsfélags. Seljandi veitir upplýsingar um eign í samræmi við upplýsingaskyldu laga um fasteignakaup nr. 40/2002. Fasteignasali sannreynir að þær upplýsingar séu réttar með sjónskoðun á eigninni. Fasteignasali getur ekki fullyrt um ástand og eiginleika þeirra hluta fasteigna sem ekki eru aðgengilegir og sjást ekki berum augum, t.d. lagnir, dren, skólp og þak. 

Gjöld sem kaupandi þarf að standa straum af vegna kaupanna:
Stimpilgjald af kaupsamningi sem er hlutfall af fasteignamati. Stimpilgjald er 0,8% fyrir einstaklinga (0,4% við fyrstu kaup m.v. að lágmarki 50% eignarhlut) og 1,6% fyrir lögaðila.
Þinglýsingargjald hvers skjals er kr. 2.700,-. Lántökugjald lánastofnunar skv. gjaldskrá viðkomandi lánveitanda. Umsýsluþóknun fasteignasölu skv. gjaldskrá. Ef um nýbyggingu er að ræða greiðir kaupandi skipulagsgjald, 0,3% af brunabótamati, þegar það er lagt á. 
 
TORG fasteignasala bendir fasteignakaupendum á ríka skoðunarskyldu kaupenda sem kveðið er á í lögum um fasteignakaup nr. 40/2002. Skorað er á kaupendur að kynna sér vandlega ástand fasteigna og nýta til þess aðstoð sérfræðinga. Sömuleiðis er bent á upplýsingaskyldu seljanda samanber 26.gr. Laga nr.40/2002 um fasteignakaup og 25.gr. laga nr.26/1994 um fjöleignarhús. Seljanda er bent á að kynna sér tilvitnaðar lagagreinar.

Fasteignasalan TORG

Fasteignasalan TORG

Garðatorgi 5, 210 Garðabæ
phone
Fasteignasalan TORG

Fasteignasalan TORG

Garðatorgi 5, 210 Garðabæ
phone