Upplýsingar
Byggt 2024
165,4 m²
3 herb.
1 baðherb.
2 svefnh.
Bílastæði
Lyfta
Aukaíbúð
Lýsing
BÓKIÐ SKOÐUN - Einar s. 888-7979 Helgi s. 893-2233 Glódís s. 659-0510, Hlynur s. 698-2603
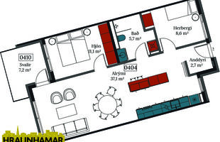
Hraunhamar kynnir: Glæsilega þriggja herbergja íbúð á 4. hæð (efstu) með svölum í nýju vönduðu lyftuhúsi á frábærum stað í Hamraneshverfinu í Hafnarfirði, þar sem stutt er í alla helstu þjónustu. Íbúðirnar afhendast fullbúnar án gólfefna en votrými verða flísalögð. Mögulegt er að kaupa valin gólfefni gegn aukagreiðslu.
Íbúð 404 er þriggja herbergja, skráð 82,7 fermetrar með geymslu. Auk þess fylgir stæði með í lokaðri bílageymslu.
Sjá nánar um íbúðina hér.
Húsið er klætt að utan með álklæðningu, og ál/timbur gluggar.
Nánari lýsing skv. teikningu:
Forstofa.
Gott opið rými, þar sem eldhús og stofa eru samliggjandi.
Eldhús með smekklegri innréttingu frá HTH og vönduðum eldunartækjum.
Björt stofa og borðstofa og þaðan er útgengt á svalir sem snúa til suð-vesturs.
Rúmgott hjónaherbergi með fataskápum.
Svefnherbergi með fataskáp.
Flísalagt baðherbergi með innréttingu, upphengdu salerni og sturtu, þar er þvottaaðstaða.
Sér geymsla í sameign.
Sér stæði í bílageymslu.
Áshamar 20 verður byggt eftir ströngum eftirlitsstaðli Svansins.
Sjá frekari upplýsingar um Svansvottun nýbygginga með því að smella hér.
Áshamar 20 er hluti af klasabyggingu þar sem skemmtilegur garður mun tengja húsin saman.
Eykt ehf er byggingaraðili hússins sem er reynslumikið og traust byggingarfyrirtæki með áratuga reynslu.
Kaupandi borgar skipulagsgjald þegar þess verður krafist sem er 0,3 % af væntu brunabótamati eignarinnar.
Bókið skoðun hjá fasteignasölum Hraunhamars:
Einar Örn Ágústsson, löggiltur fasteignasali, s. 888-7979, einar@hraunhamar.is
Hlynur Halldórsson, löggiltur fasteignasali, s. 698-2603, hlynur@hraunhamar.is
Glódís Helgadóttir, löggiltur fasteignasali, s. 659-0510, glodis@hraunhamar.is
Helgi Jón Harðarson, sölustjóri, s. 893-2233, helgi@hraunhamar.is
Skoðunarskylda:
Í lögum um fasteignakaup nr. 40/2002 er kveðið á um ríka skoðunarskyldu kaupenda á fasteignum. Hraunhamar fasteignasala vill benda væntanlegum kaupendum á að kynna sér vel ástand fasteigna fyrir kauptilboðsgerð og ef þurfa þykir að leita til sérfræðinga fyrir nánari ástandsskoðun.
Gjöld sem kaupandi þarf að standa straum af vegna kaupanna:
1. Stimpilgjald af kaupsamningi, fyrstu kaup (0,4%), almenn kaup (0,8%), lögaðilar (1,6%) af heildarfasteignamati.
2. Þinglýsingargjald af kaupsamningi, veðskuldabréfi, mögulegu veðleyfi o.fl. – kr. 3,800 kr. af hverju skjali.
3. Lántökugjald lánastofnunar er skv. verðskrá viðkomandi lánastofnunar.
4. Umsýslugjald til fasteignasölu skv. þjónustusamningi
Hraunhamar er elsta fasteignasala Hafnarfjarðar, stofnuð 1983.
Hraunhamar, í farabroddi í rúm 40 ár ! – Hraunhamar.is
Hraunhamar kynnir: Glæsilega þriggja herbergja íbúð á 4. hæð (efstu) með svölum í nýju vönduðu lyftuhúsi á frábærum stað í Hamraneshverfinu í Hafnarfirði, þar sem stutt er í alla helstu þjónustu. Íbúðirnar afhendast fullbúnar án gólfefna en votrými verða flísalögð. Mögulegt er að kaupa valin gólfefni gegn aukagreiðslu.
Íbúð 404 er þriggja herbergja, skráð 82,7 fermetrar með geymslu. Auk þess fylgir stæði með í lokaðri bílageymslu.
Sjá nánar um íbúðina hér.
Húsið er klætt að utan með álklæðningu, og ál/timbur gluggar.
Nánari lýsing skv. teikningu:
Forstofa.
Gott opið rými, þar sem eldhús og stofa eru samliggjandi.
Eldhús með smekklegri innréttingu frá HTH og vönduðum eldunartækjum.
Björt stofa og borðstofa og þaðan er útgengt á svalir sem snúa til suð-vesturs.
Rúmgott hjónaherbergi með fataskápum.
Svefnherbergi með fataskáp.
Flísalagt baðherbergi með innréttingu, upphengdu salerni og sturtu, þar er þvottaaðstaða.
Sér geymsla í sameign.
Sér stæði í bílageymslu.
Áshamar 20 verður byggt eftir ströngum eftirlitsstaðli Svansins.
Sjá frekari upplýsingar um Svansvottun nýbygginga með því að smella hér.
Áshamar 20 er hluti af klasabyggingu þar sem skemmtilegur garður mun tengja húsin saman.
Eykt ehf er byggingaraðili hússins sem er reynslumikið og traust byggingarfyrirtæki með áratuga reynslu.
Kaupandi borgar skipulagsgjald þegar þess verður krafist sem er 0,3 % af væntu brunabótamati eignarinnar.
Bókið skoðun hjá fasteignasölum Hraunhamars:
Einar Örn Ágústsson, löggiltur fasteignasali, s. 888-7979, einar@hraunhamar.is
Hlynur Halldórsson, löggiltur fasteignasali, s. 698-2603, hlynur@hraunhamar.is
Glódís Helgadóttir, löggiltur fasteignasali, s. 659-0510, glodis@hraunhamar.is
Helgi Jón Harðarson, sölustjóri, s. 893-2233, helgi@hraunhamar.is
Skoðunarskylda:
Í lögum um fasteignakaup nr. 40/2002 er kveðið á um ríka skoðunarskyldu kaupenda á fasteignum. Hraunhamar fasteignasala vill benda væntanlegum kaupendum á að kynna sér vel ástand fasteigna fyrir kauptilboðsgerð og ef þurfa þykir að leita til sérfræðinga fyrir nánari ástandsskoðun.
Gjöld sem kaupandi þarf að standa straum af vegna kaupanna:
1. Stimpilgjald af kaupsamningi, fyrstu kaup (0,4%), almenn kaup (0,8%), lögaðilar (1,6%) af heildarfasteignamati.
2. Þinglýsingargjald af kaupsamningi, veðskuldabréfi, mögulegu veðleyfi o.fl. – kr. 3,800 kr. af hverju skjali.
3. Lántökugjald lánastofnunar er skv. verðskrá viðkomandi lánastofnunar.
4. Umsýslugjald til fasteignasölu skv. þjónustusamningi
Hraunhamar er elsta fasteignasala Hafnarfjarðar, stofnuð 1983.
Hraunhamar, í farabroddi í rúm 40 ár ! – Hraunhamar.is