Upplýsingar
Verðsaga
Byggt 1978
51,5 m²
2 herb.
1 baðherb.
Sameiginl. inngangur
Lyfta
Lýsing
Hraunhamar fasteignasala í einkasölu fallega, vel skipulagða og talsvert endurnýjaða 51,5 fm 2 herbergja íbúð á 2 hæð merkt 0202 í lyftuhúsi Í Hamraborg 32 í Kópavogi. Snyrtileg sameign og á hæðinni er Í kjallara er hjóla og vagnageymsla. Eigninni fylgir sérgeymsla sem er ekki inni í fm tölu.
Íbúðaeigendur hafa aðgang að bílastæðahúsi með sérstöku korti sér að kostnaðarlausu og Innangengt er í bílastæðahús úr stigagangi.
Mjög góð staðsetning miðsvæðis í Kópavogi þ.s stutt er í fjölbreytta verslun og þjónustu og út á stofnbraut. Fossvogsdalurinn er í þægilegu göngufæri og stutt í grunn-og leikskóla.
Nánari lýsing:
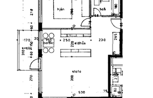
Forstofa með fataskáp.
Björt stofa þaðan er utangengt út á góðar yfirbyggðar suðvestursvalir.
Eldhús með snyrtilegri innréttingu, borðkrókur í eldhúsi.
Svefnherbergi er rúmgott með fataskápum..
Baðherbergi með innréttingu og sturtuklefa.
Geymsla í kjallara ca 5 fm og ekki inni í fermetratölu.
Gólfefni eru parket og flísar.
Á hæðinni er sameiginlegt þvottahús fyrir íbúðirnar á þeirri hæð.
Falleg eign á flottum stað í Kópavogi.
Allar nánari upplýsingar veitir
Hlynur Halldórsson, löggiltur fasteignasali, s. 698-2603, hlynur@hraunhamar.is
Skoðunarskylda:
Í lögum um fasteignakaup nr. 40/2002 er kveðið á um ríka skoðunarskyldu kaupenda á fasteignum. Hraunhamar fasteignasala vill benda væntanlegum kaupendum á að kynna sér vel ástand fasteigna fyrir kauptilboðsgerð og ef þurfa þykir að leita til sérfræðinga fyrir nánari ástandsskoðun.
Gjöld sem kaupandi þarf að standa straum af vegna kaupanna:
1. Stimpilgjald af kaupsamningi, fyrstu kaup (0,4%), almenn kaup (0,8%), lögaðilar (1,6%) af heildarfasteignamati.
2. Þinglýsingargjald af kaupsamningi, veðskuldabréfi, mögulegu veðleyfi o.fl. – kr. 2.700 kr. af hverju skjali.
3. Lántökugjald lánastofnunar er skv. verðskrá viðkomandi lánastofnunar.
4. Umsýslugjald til fasteignasölu skv. þjónustusamningi
Hraunhamar er elsta fasteignasala Hafnarfjarðar, stofnuð 1983.
Hraunhamar, í fararbroddi í rúm 40 ár. – Hraunhamar.is
Smelltu hér til að fá frítt söluverðmat.
Íbúðaeigendur hafa aðgang að bílastæðahúsi með sérstöku korti sér að kostnaðarlausu og Innangengt er í bílastæðahús úr stigagangi.
Mjög góð staðsetning miðsvæðis í Kópavogi þ.s stutt er í fjölbreytta verslun og þjónustu og út á stofnbraut. Fossvogsdalurinn er í þægilegu göngufæri og stutt í grunn-og leikskóla.
Nánari lýsing:
Forstofa með fataskáp.
Björt stofa þaðan er utangengt út á góðar yfirbyggðar suðvestursvalir.
Eldhús með snyrtilegri innréttingu, borðkrókur í eldhúsi.
Svefnherbergi er rúmgott með fataskápum..
Baðherbergi með innréttingu og sturtuklefa.
Geymsla í kjallara ca 5 fm og ekki inni í fermetratölu.
Gólfefni eru parket og flísar.
Á hæðinni er sameiginlegt þvottahús fyrir íbúðirnar á þeirri hæð.
Falleg eign á flottum stað í Kópavogi.
Allar nánari upplýsingar veitir
Hlynur Halldórsson, löggiltur fasteignasali, s. 698-2603, hlynur@hraunhamar.is
Skoðunarskylda:
Í lögum um fasteignakaup nr. 40/2002 er kveðið á um ríka skoðunarskyldu kaupenda á fasteignum. Hraunhamar fasteignasala vill benda væntanlegum kaupendum á að kynna sér vel ástand fasteigna fyrir kauptilboðsgerð og ef þurfa þykir að leita til sérfræðinga fyrir nánari ástandsskoðun.
Gjöld sem kaupandi þarf að standa straum af vegna kaupanna:
1. Stimpilgjald af kaupsamningi, fyrstu kaup (0,4%), almenn kaup (0,8%), lögaðilar (1,6%) af heildarfasteignamati.
2. Þinglýsingargjald af kaupsamningi, veðskuldabréfi, mögulegu veðleyfi o.fl. – kr. 2.700 kr. af hverju skjali.
3. Lántökugjald lánastofnunar er skv. verðskrá viðkomandi lánastofnunar.
4. Umsýslugjald til fasteignasölu skv. þjónustusamningi
Hraunhamar er elsta fasteignasala Hafnarfjarðar, stofnuð 1983.
Hraunhamar, í fararbroddi í rúm 40 ár. – Hraunhamar.is
Smelltu hér til að fá frítt söluverðmat.
Ár
Fasteignamat
Kaupverð
Stærð
Fermetraverð
15. okt. 2021
28.800.000 kr.
38.000.000 kr.
51.5 m²
737.864 kr.
Byggt á upplýsingum úr Þjóðskrá Íslands frá 2006-2025