Upplýsingar
Byggt 1972
94 m²
4 herb.
1 baðherb.
3 svefnh.
Sameiginl. inngangur
Lýsing
Betri Stofan og Jason Kristinn fasteignasali í síma 7751515, jason@betristofan.is kynna: Efstihjalli 7 efsta hæð. Snyrtileg 4ra herbergja íbúð á frábærum stað í grónu hverfi í Kópavogi. Suðursvalir. Eignin er skráð 93,9 fm og er vel skipulögð. Eignin skiptist í anddyri, hol, eldhús, baðherbergi, 3 svefnherbergi, borðstofu, stofu og sér geymslu. Að utan hefur húseignin fengið mikla endurnýjun. Rennur og þakjárn, glugga hafa verið endurnýjaðir, vatnslangir og dren, einnig var húsið múrgert og málað. Fasteignamat um næstu áramót er 66.200.000-
Aðeins 5 mínútna gangur í leikskóla.
Lýsing:
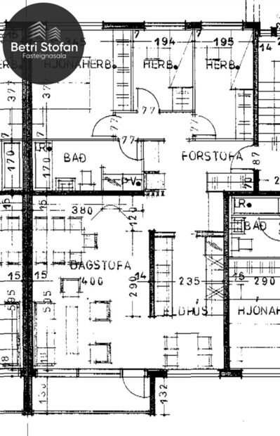
Gengið er inn í rúmgott flísalagt anddyri/hol sem tengir saman eignina. Á vinstri hönd er eldhús og stofa og hægra megin svefnherbergi og baðherbergi. Útsýni til Esju.
Stofa er rúmgóð með nýpússuðu parket á gólfi og útgengt út á rúmgóðar suðursvalir.
Eldhús er með hvítri innréttingu og góðu skápaplássi. Við enda þess er borðkrókur. Pláss fyrir uppþvottavél eða þvottavél.
Baðherbergi er flísalagt í hólf og gólf með eldri flísum. Baðkar. Þvottaaðstaða er inná baðherbergi og einnig í kjallara.
Hjónaherbergi 1 er með rúmgóðum fataskápum. Parketdúkur á gólfum herbergja.
Svefnherbergi 2 er með fataskáp.
Svefnherbergi 3 er minnsta herbergið á milli hinna tveggja.
Geymsla er í kjallara sem er skráð 6,8 fm.
Í kjallara er einnig þvottahús, hjólageymsla og vagnageymsla.
Staðsetning eignarinnar er góð og stutt er í skóla, verslanir og þjónustu.
Sunnan megin við húsið er sameiginlegur garður og fjöldi bílastæða fyrir framan hús.
Nánari upplýsingar: Jason Kristinn Ólafsson s. 775 1515 löggiltur fasteignasali, jason@betristofan.is
Guðbjörg Guðmundsdóttir s.899 5533 löggiltur fasteignasali, gudbjorg@betristofan.is
Aðeins 5 mínútna gangur í leikskóla.
Lýsing:
Gengið er inn í rúmgott flísalagt anddyri/hol sem tengir saman eignina. Á vinstri hönd er eldhús og stofa og hægra megin svefnherbergi og baðherbergi. Útsýni til Esju.
Stofa er rúmgóð með nýpússuðu parket á gólfi og útgengt út á rúmgóðar suðursvalir.
Eldhús er með hvítri innréttingu og góðu skápaplássi. Við enda þess er borðkrókur. Pláss fyrir uppþvottavél eða þvottavél.
Baðherbergi er flísalagt í hólf og gólf með eldri flísum. Baðkar. Þvottaaðstaða er inná baðherbergi og einnig í kjallara.
Hjónaherbergi 1 er með rúmgóðum fataskápum. Parketdúkur á gólfum herbergja.
Svefnherbergi 2 er með fataskáp.
Svefnherbergi 3 er minnsta herbergið á milli hinna tveggja.
Geymsla er í kjallara sem er skráð 6,8 fm.
Í kjallara er einnig þvottahús, hjólageymsla og vagnageymsla.
Staðsetning eignarinnar er góð og stutt er í skóla, verslanir og þjónustu.
Sunnan megin við húsið er sameiginlegur garður og fjöldi bílastæða fyrir framan hús.
Nánari upplýsingar: Jason Kristinn Ólafsson s. 775 1515 löggiltur fasteignasali, jason@betristofan.is
Guðbjörg Guðmundsdóttir s.899 5533 löggiltur fasteignasali, gudbjorg@betristofan.is
Gjöld sem kaupandi þarf að standa straum af ef að kaupum verður:
1. Stimpilgjald af fasteignamati fasteignar er 0.8%, en 0,4% fyrir fyrstu kaup og 1,6% fyrir lögaðila.
2. Þinglýsingargjald: kaupsamningi, skuldabréfi, veðleyfi, afsali o.s.frv. er kr. 3.800 af hverju skjali.
3. Lántökukostnaður samkvæmt verðskrá viðkomandi lánastofnunar.
4. Umsýslugjald til fasteignasölu skv. gjaldskrá.