Upplýsingar
Verðsaga
Byggt 2008
118,2 m²
4 herb.
1 baðherb.
3 svefnh.
Útsýni
Sérinngangur
Hjólastólaaðgengi
Laus strax
Lýsing
VALBORG fasteignasala kynnir í einkasölu Smyrlaheiði 42, 810 Hveragerði.
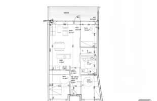
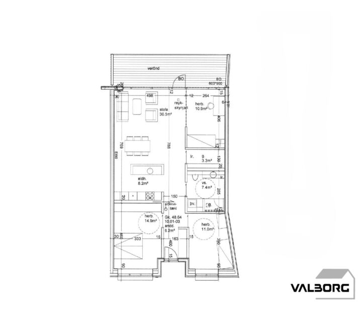
Um er að ræða fjögurra herbergja raðhúsaíbúð á einni hæð, með sólpalli, stæði í bílakjallara og aðgengi að hverfishúsi/samkomuhúsi.
Íbúðin er 110,8 m² og geymsla í bílakjallara er 7,4 m², samtals 118,2 m² samkvæmt skráningu Þjóðskrár Íslands.
Eignin skiptist í anddyri, forstofugang, þrjú svefnherbergi, geymslu, baðherbergi og alrými með stofu og eldhúsi, auk annarrar geymslu við sérmerkt bílastæði í bílakjallara.
Fasteignamat eignarinnar er kr. 74.050.000
Sjá staðsetningu hér:
Nánari upplýsingar veita:
Gunnar Biering Agnarsson, löggiltur fasteignasali, í síma 823-3300, tölvupóstur gunnar@valborgfs.is.
Elínborg María Ólafsdóttir, löggiltur fasteignasali, í síma 861-6866, tölvupóstur elinborg@valborgfs.is.
Nánari lýsing:
Anddyri er með fjórföldum fataskáp og skúffum. Þar er flísalagt.
Hjónaherbergið er til vinstri við inngang, stórt og bjart með áttföldum fataskáp og glugga til austurs..
Svefnherbergi II er til hægri við inngang, er með fataskáp og glugga til austurs.
Svefnherbergi III er við stofu, með fataskáp og gólfsíðum glugga til vesturs.
Alrými með stofu og eldhúsi. Í alrými er hátt til lofts og gólfsíðir gluggar. Frá stofu er gengið inn í þriðja svefnherbergið. Eldhúsið er opið og rúmgott með góðu skúffu- og skápaplássi, bakarofni, helluborði og gert er ráð fyrir ísskáp og uppþvottavél.
Baðherbergið er með stórri walk in sturtu, góðri innréttingu með þreföldum efri og neðri skápum, handklæðaofn er til staðar, aðstaða fyrir þvottavél og þurrkara.
Geymslur eru tvær, önnur er innan íbúðar en hin er við bílastæði íbúðarinnar í kjallara.
Parket er á öllu rýminu nema baðherbergi og anddyri en þar eru flísar. Gólfhiti er í allri eigninni.
Eigninni fylgir stæði í bílakjallara, merkt B24 á teikningu, en þar er einnig 7,4 m² geymsla og sameiginleg aðstaða til bílaþrifa.
Eignin er staðsett í litlu og snyrtilegu raðhúsahverfi þar sem lögð er áhersla á vistvæna hönnun.
Gott aðgengi er fyrir hjólastóla í öllum íbúðum samstæðunnar. Gott aðgengi er að húsinu og snjóbræðsla í hellulögn.
Raðhúsið er staðsett í íbúðakjarna en í miðju hans er hverfishús/samkomuhús. Þar hafa eigendur aðgang að vel búnum veislusal, kaffistofu og samverustað.
Stofnlögn fyrir rafbíla er komin í bílakjallara hússins.
Nánari upplýsingar veita:
Gunnar Biering Agnarsson, lgf, í síma 823-3300, tölvupóstur gunnar@valborgfs.is.
Elínborg María Ólafsdóttir, lgf, í síma 861-6866, tölvupóstur elinborg@valborgfs.is.
Forsendur söluyfirlits:
Söluyfirlit er samið af fasteignasala í samræmi við ákvæði laga nr. 70/2015. Þær upplýsingar sem fram koma í söluyfirliti þessu eru sóttar í opinberar skrár, til seljanda sjálfs og eftir atvikum til húsfélags. Seljandi veitir upplýsingar um eign í samræmi við upplýsingaskyldu laga um fasteignakaup nr. 40/2002. Fasteignasali sannreynir að þær upplýsingar séu réttar með sjónskoðun á eigninni. Fasteignasali getur ekki fullyrt um ástand og eiginleika þeirra hluta fasteigna sem ekki eru aðgengilegir og sjást ekki berum augum, t.d. lagnir, dren, skólp og þak.
Um skoðunar- og aðgæsluskyldu:
Í lögum um fasteignakaup nr. 40/2002 er kveðið á um ríka skoðunarskyldu kaupenda á fasteignum. Valborg ehf. fasteignasala bendir væntanlegum kaupendum á að kynna sér vel ástand fasteigna við skoðun og fyrir tilboðsgerð og ef þurfa þykir að leita til sérfræðinga um nánari ástandsskoðun.
Gjöld sem kaupandi þarf að standa straum af vegna kaupanna:
1. Stimpilgjald af kaupsamningi sem er hlutfall af fasteignamati. Stimpilgjald er 0,8% fyrir einstaklinga (0,4% við fyrstu kaup) og 1,6% fyrir lögaðila.
2. Þinglýsingargjald af kaupsamningi, veðskuldabréfum, veðleyfum o.fl. Þinglýsingargjald er kr. 2.700,- fyrir hvert skjal.
3. Lántökugjald lánastofnunar. Um lántökugjald vísast í gjaldskrá viðkomandi lánveitanda.
4. Umsýsluþóknun fasteignasölu skv. gjaldskrá.
5. Ef um nýbyggingu er að ræða greiðir kaupandi skipulagsgjald, 0,3% af brunabótamáti, þegar það er lagt á.
Um er að ræða fjögurra herbergja raðhúsaíbúð á einni hæð, með sólpalli, stæði í bílakjallara og aðgengi að hverfishúsi/samkomuhúsi.
Íbúðin er 110,8 m² og geymsla í bílakjallara er 7,4 m², samtals 118,2 m² samkvæmt skráningu Þjóðskrár Íslands.
Eignin skiptist í anddyri, forstofugang, þrjú svefnherbergi, geymslu, baðherbergi og alrými með stofu og eldhúsi, auk annarrar geymslu við sérmerkt bílastæði í bílakjallara.
Fasteignamat eignarinnar er kr. 74.050.000
Sjá staðsetningu hér:
Nánari upplýsingar veita:
Gunnar Biering Agnarsson, löggiltur fasteignasali, í síma 823-3300, tölvupóstur gunnar@valborgfs.is.
Elínborg María Ólafsdóttir, löggiltur fasteignasali, í síma 861-6866, tölvupóstur elinborg@valborgfs.is.
Nánari lýsing:
Anddyri er með fjórföldum fataskáp og skúffum. Þar er flísalagt.
Hjónaherbergið er til vinstri við inngang, stórt og bjart með áttföldum fataskáp og glugga til austurs..
Svefnherbergi II er til hægri við inngang, er með fataskáp og glugga til austurs.
Svefnherbergi III er við stofu, með fataskáp og gólfsíðum glugga til vesturs.
Alrými með stofu og eldhúsi. Í alrými er hátt til lofts og gólfsíðir gluggar. Frá stofu er gengið inn í þriðja svefnherbergið. Eldhúsið er opið og rúmgott með góðu skúffu- og skápaplássi, bakarofni, helluborði og gert er ráð fyrir ísskáp og uppþvottavél.
Baðherbergið er með stórri walk in sturtu, góðri innréttingu með þreföldum efri og neðri skápum, handklæðaofn er til staðar, aðstaða fyrir þvottavél og þurrkara.
Geymslur eru tvær, önnur er innan íbúðar en hin er við bílastæði íbúðarinnar í kjallara.
Parket er á öllu rýminu nema baðherbergi og anddyri en þar eru flísar. Gólfhiti er í allri eigninni.
Eigninni fylgir stæði í bílakjallara, merkt B24 á teikningu, en þar er einnig 7,4 m² geymsla og sameiginleg aðstaða til bílaþrifa.
Eignin er staðsett í litlu og snyrtilegu raðhúsahverfi þar sem lögð er áhersla á vistvæna hönnun.
Gott aðgengi er fyrir hjólastóla í öllum íbúðum samstæðunnar. Gott aðgengi er að húsinu og snjóbræðsla í hellulögn.
Raðhúsið er staðsett í íbúðakjarna en í miðju hans er hverfishús/samkomuhús. Þar hafa eigendur aðgang að vel búnum veislusal, kaffistofu og samverustað.
Stofnlögn fyrir rafbíla er komin í bílakjallara hússins.
Nánari upplýsingar veita:
Gunnar Biering Agnarsson, lgf, í síma 823-3300, tölvupóstur gunnar@valborgfs.is.
Elínborg María Ólafsdóttir, lgf, í síma 861-6866, tölvupóstur elinborg@valborgfs.is.
Forsendur söluyfirlits:
Söluyfirlit er samið af fasteignasala í samræmi við ákvæði laga nr. 70/2015. Þær upplýsingar sem fram koma í söluyfirliti þessu eru sóttar í opinberar skrár, til seljanda sjálfs og eftir atvikum til húsfélags. Seljandi veitir upplýsingar um eign í samræmi við upplýsingaskyldu laga um fasteignakaup nr. 40/2002. Fasteignasali sannreynir að þær upplýsingar séu réttar með sjónskoðun á eigninni. Fasteignasali getur ekki fullyrt um ástand og eiginleika þeirra hluta fasteigna sem ekki eru aðgengilegir og sjást ekki berum augum, t.d. lagnir, dren, skólp og þak.
Um skoðunar- og aðgæsluskyldu:
Í lögum um fasteignakaup nr. 40/2002 er kveðið á um ríka skoðunarskyldu kaupenda á fasteignum. Valborg ehf. fasteignasala bendir væntanlegum kaupendum á að kynna sér vel ástand fasteigna við skoðun og fyrir tilboðsgerð og ef þurfa þykir að leita til sérfræðinga um nánari ástandsskoðun.
Gjöld sem kaupandi þarf að standa straum af vegna kaupanna:
1. Stimpilgjald af kaupsamningi sem er hlutfall af fasteignamati. Stimpilgjald er 0,8% fyrir einstaklinga (0,4% við fyrstu kaup) og 1,6% fyrir lögaðila.
2. Þinglýsingargjald af kaupsamningi, veðskuldabréfum, veðleyfum o.fl. Þinglýsingargjald er kr. 2.700,- fyrir hvert skjal.
3. Lántökugjald lánastofnunar. Um lántökugjald vísast í gjaldskrá viðkomandi lánveitanda.
4. Umsýsluþóknun fasteignasölu skv. gjaldskrá.
5. Ef um nýbyggingu er að ræða greiðir kaupandi skipulagsgjald, 0,3% af brunabótamáti, þegar það er lagt á.
Ár
Fasteignamat
Kaupverð
Stærð
Fermetraverð
14. mar. 2016
20.950.000 kr.
25.750.000 kr.
118.2 m²
217.851 kr.
Byggt á upplýsingum úr Þjóðskrá Íslands frá 2006-2026