Upplýsingar
Verðsaga
Byggt 2008
114,1 m²
4 herb.
1 baðherb.
3 svefnh.
Þvottahús
Útsýni
Sérinngangur
Hjólastólaaðgengi
Lyfta
Laus strax
Lýsing
Hreiðar Levý, lögg. fasteignasali og Betri Stofan fasteignasala kynna fallegt og vel hannað 114,1fm, 4ja herbergja raðhús á einni hæð með aflokaðari viðarverönd og sérmerktu bílastæði í lokuðum og upphituðum bílakjallara að Smyrlaheiði 43, 810 Hveragerði. Eignin og hverfið er teikna af Zeppelin arkitektum þar sem lögð Glæsilegt alrými með samliggjandi eldhúsi og stofu með mikilli lofthæð og afar fallegur gólfsíðum gluggum. Útgengt er út á aflokaðan viðarverönd til vesturs úr stofu. Eignin er staðsett í litlu og snyrtilegu raðhúsahverfi þar sem lögð er áhersla á vistvæna hönnun. Gott aðgengi er að húsinu og snjóbræðsla í hellulögn. Í bílakjallara er sameiginlegt þvottastæði ásamt sameiginlegri dekkjageymslu.
Bókið skoðun hjá Hreiðari Levý, lögg. fasteignasala í síma 661-6021 eða hreidar@betristofan.is
Fasteignamat fyrir árið 2026 skv. HMS er 72.400.000kr.
Gott aðgengi, bæði utan og innandyra er ríkur þáttur í hönnun hverfisins. Allar íbúðirnar eru án þröskulda og sem minnstur hæðamunur er hafður utandyra. Húsin og hverfið eru hönnuð af Zeppelin Arkitektum og byggð af Eðalhúsum. Hönnun hverfisins tekur að nokkru leyti mið af gömlu gróðurhúsunum sem lengi hafa verið eitt helsta kennileiti Hveragerðis. Einstaklega fallegur, vel skipulagður og metnaðarfullur byggðarkjarni í rólegu og fallegu hverfi í Hveragerði. Gott aðgengi er fyrir hjólastóla í öllum íbúðum samstæðunnar.
Á lóðinni stendur tveggja hæõa samkomuhús sem er í sameign allra raðhúsanna á lóðinni. Þar hafa eigendur aðgang að vel búnum veislusal, kaffistofu og samverustað. Á lóðinni eru 54 sameiginleg bílastæði, þar af 24 í vistgötum og 30 gestastæði.
Nánari lýsing:
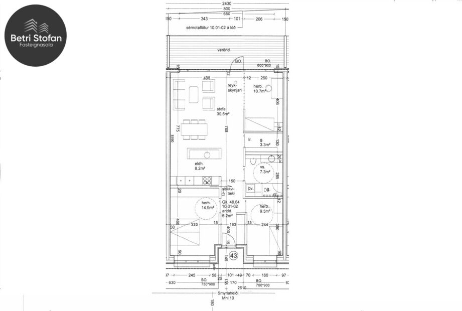
Anddyri: Komið inn í flísalagt anddyri með fjórföldum fataskáp.
Svefnherbergi I: Rúmgott með tvöföldum fataskáp. Gluggakista er djúp og getur nýst sem hugguleg setu-, lestrar- eða slökunaraðstaða.
Svefnherbergi II: Rúmgott með mjög góðu skápaplássi. Gluggakista er djúp og getur nýst sem hugguleg setu-, lestrar- eða slökunaraðstaða.
Alrými: Opið, bjart og fallegt alrými með samliggjandi stofu, borðstofu og eldhúsi. Einstaklega fallegt rými með mikilli lofthæð og stórum gólfsíðum gluggum.
Eldhús: Eikar innrétting með eyju. Gott skápa og vinnupláss. Ofn í vinnuhæð, innbyggt helluborð og háfur. Aðstaða fyrir ísskáp og uppþvottavél í innréttingu. Opið við borðstofu og stofu.
Stofa: Opin, björt og falleg með mikilli lofthæð og í góðri tengingu við eldhús. Útgengt út á vestur viðarverönd þar sem sólin kemur inn á pall um kl. 13 og er fram á kvöld.
Sérafnotaflötur: Aflokuð viðarverönd til vesturs. Útgengt út á sérafnotaflöt úr stofu.
Svefnherbergi III: Innaf stofu. Rúmgott með fataskáp. Möguleiki á að taka niður vegg og stækka þannig stofurými. Auðvelt í framkvæmd fyrir fagmenn.
Baðherbergi: Stórt baðherbergi með aðstöðu fyrir þvottavél og þurrkara sem hægt er að loka af með rennihurð. Rúmgóð þröskuldalaus sturta með sturtuhengi, upphengt salerni, handklæðaofn ásamt baðinnréttingu með efri og neðri skápum, innfeldum vask í neðri innréttingu og spegli fyrir ofan vask.
Geymsla I: Innaf íbúð, 3,3fm nettó. Rafmagnstafla ásamt gólhitakerfi í lokuðum skápum í geymslu innan íbúðar.
Bílastæði: Eigninni fylgir stæði í bílakjallara. Búið er að leggja fyrir uppsetningu á rafmagnshleðslustöð hjá bílastæði. Sameiginleg aðstaða til bílaþrifa. Sér geymsla innaf bílastæði
Geymsla II: 7,3 fm geymsla innaf bílastæði í bílakjallara.
Gólfefni: Parket er á öllu rýminu nema baðherbergi og anddyri en þar eru flísar. Gólfhiti er í allri eigninni.
Samkomuhús: Tveggja hæõa samkomuhús sem er í sameign allra raðhúsanna á lóðinni. Þar hafa eigendur aðgang að vel búnum veislusal, kaffistofu og samverustað.
Hver íbúð á reitnum hefur sérmerkt bílastæði bílakjallara auk sameiginlegs þjónustusvæðis. 54 bílastæði eru á lóð, þar af 24 í vistgötum og 30 gestastæði. Kostnaður við gerð, viõhald og rekstur sameignilegra óskiptra bilastæða, svo og slíkur kostnaður við sameiginlegar aðkeyrslu skiptist og greiðist að jöfnu milli eiganda eigna á reitnum. Hveragerðisbær mun þó sinna nauðsynlegum snjómokstri sem tryggir aðkomu sjúkra- og slökkvibifreiða.
Bílakjallari er niðurgrafinn og liggur undir miðri lóðinni. Í bílakjallara eru 43 sérmerkt bílastæði, eitt fyrir hvern séreignarhluta auk þjónustusvæðis þeim tengdum. Í bílakjallara er sameiginlegt þvottastæði
Hitakostnaður: Sér mælir er fyrir hverja íbúð í matshlutunum og greiðir hver séreign af sínum mæli.
Rafmagnskostnaður: Sér rafmagnsmælir er fyrir hverja íbúð í matshlutunum og greiðir hver séreign af sínum mæli.
Afar fallegt og vel skipulagt 4ja herbergja raðhús með sérmerkt bílastæði í upphituðum bílakjallara ásamt fríu og frjálsu aðgengi að sameiginlegu samkomuhúsi. Einstakleg vel heppnað og fallegt hverfi með einstök sameignargæði sem finnast ekki víða. Frábær staðsetning í rólegu og fallegu hverfi í Hveragerði. Hveragerði hefur upp á að bjóða alla helstu þjónustu, fjölbreytta verslun ásamt rómuðum veitingastöðum og mathöll. Þá má ekki gleyma gróðurhúsunum á staðnum, sundlaug Hveragerðis ásamt fjölbreyttu og góðu íþrótta- og tómstundarstarfi. Einungis um hálftíma keyrsla til Reykjavíkur.
Nánari upplýsingar veitir Hreiðar Levý Guðmundsson löggiltur fasteignasali, í síma 661- 6021, tölvupóstur hreidar@betristofan.is.
Bókið skoðun hjá Hreiðari Levý, lögg. fasteignasala í síma 661-6021 eða hreidar@betristofan.is
Fasteignamat fyrir árið 2026 skv. HMS er 72.400.000kr.
Gott aðgengi, bæði utan og innandyra er ríkur þáttur í hönnun hverfisins. Allar íbúðirnar eru án þröskulda og sem minnstur hæðamunur er hafður utandyra. Húsin og hverfið eru hönnuð af Zeppelin Arkitektum og byggð af Eðalhúsum. Hönnun hverfisins tekur að nokkru leyti mið af gömlu gróðurhúsunum sem lengi hafa verið eitt helsta kennileiti Hveragerðis. Einstaklega fallegur, vel skipulagður og metnaðarfullur byggðarkjarni í rólegu og fallegu hverfi í Hveragerði. Gott aðgengi er fyrir hjólastóla í öllum íbúðum samstæðunnar.
Á lóðinni stendur tveggja hæõa samkomuhús sem er í sameign allra raðhúsanna á lóðinni. Þar hafa eigendur aðgang að vel búnum veislusal, kaffistofu og samverustað. Á lóðinni eru 54 sameiginleg bílastæði, þar af 24 í vistgötum og 30 gestastæði.
Nánari lýsing:
Anddyri: Komið inn í flísalagt anddyri með fjórföldum fataskáp.
Svefnherbergi I: Rúmgott með tvöföldum fataskáp. Gluggakista er djúp og getur nýst sem hugguleg setu-, lestrar- eða slökunaraðstaða.
Svefnherbergi II: Rúmgott með mjög góðu skápaplássi. Gluggakista er djúp og getur nýst sem hugguleg setu-, lestrar- eða slökunaraðstaða.
Alrými: Opið, bjart og fallegt alrými með samliggjandi stofu, borðstofu og eldhúsi. Einstaklega fallegt rými með mikilli lofthæð og stórum gólfsíðum gluggum.
Eldhús: Eikar innrétting með eyju. Gott skápa og vinnupláss. Ofn í vinnuhæð, innbyggt helluborð og háfur. Aðstaða fyrir ísskáp og uppþvottavél í innréttingu. Opið við borðstofu og stofu.
Stofa: Opin, björt og falleg með mikilli lofthæð og í góðri tengingu við eldhús. Útgengt út á vestur viðarverönd þar sem sólin kemur inn á pall um kl. 13 og er fram á kvöld.
Sérafnotaflötur: Aflokuð viðarverönd til vesturs. Útgengt út á sérafnotaflöt úr stofu.
Svefnherbergi III: Innaf stofu. Rúmgott með fataskáp. Möguleiki á að taka niður vegg og stækka þannig stofurými. Auðvelt í framkvæmd fyrir fagmenn.
Baðherbergi: Stórt baðherbergi með aðstöðu fyrir þvottavél og þurrkara sem hægt er að loka af með rennihurð. Rúmgóð þröskuldalaus sturta með sturtuhengi, upphengt salerni, handklæðaofn ásamt baðinnréttingu með efri og neðri skápum, innfeldum vask í neðri innréttingu og spegli fyrir ofan vask.
Geymsla I: Innaf íbúð, 3,3fm nettó. Rafmagnstafla ásamt gólhitakerfi í lokuðum skápum í geymslu innan íbúðar.
Bílastæði: Eigninni fylgir stæði í bílakjallara. Búið er að leggja fyrir uppsetningu á rafmagnshleðslustöð hjá bílastæði. Sameiginleg aðstaða til bílaþrifa. Sér geymsla innaf bílastæði
Geymsla II: 7,3 fm geymsla innaf bílastæði í bílakjallara.
Gólfefni: Parket er á öllu rýminu nema baðherbergi og anddyri en þar eru flísar. Gólfhiti er í allri eigninni.
Samkomuhús: Tveggja hæõa samkomuhús sem er í sameign allra raðhúsanna á lóðinni. Þar hafa eigendur aðgang að vel búnum veislusal, kaffistofu og samverustað.
Hver íbúð á reitnum hefur sérmerkt bílastæði bílakjallara auk sameiginlegs þjónustusvæðis. 54 bílastæði eru á lóð, þar af 24 í vistgötum og 30 gestastæði. Kostnaður við gerð, viõhald og rekstur sameignilegra óskiptra bilastæða, svo og slíkur kostnaður við sameiginlegar aðkeyrslu skiptist og greiðist að jöfnu milli eiganda eigna á reitnum. Hveragerðisbær mun þó sinna nauðsynlegum snjómokstri sem tryggir aðkomu sjúkra- og slökkvibifreiða.
Bílakjallari er niðurgrafinn og liggur undir miðri lóðinni. Í bílakjallara eru 43 sérmerkt bílastæði, eitt fyrir hvern séreignarhluta auk þjónustusvæðis þeim tengdum. Í bílakjallara er sameiginlegt þvottastæði
Hitakostnaður: Sér mælir er fyrir hverja íbúð í matshlutunum og greiðir hver séreign af sínum mæli.
Rafmagnskostnaður: Sér rafmagnsmælir er fyrir hverja íbúð í matshlutunum og greiðir hver séreign af sínum mæli.
Afar fallegt og vel skipulagt 4ja herbergja raðhús með sérmerkt bílastæði í upphituðum bílakjallara ásamt fríu og frjálsu aðgengi að sameiginlegu samkomuhúsi. Einstakleg vel heppnað og fallegt hverfi með einstök sameignargæði sem finnast ekki víða. Frábær staðsetning í rólegu og fallegu hverfi í Hveragerði. Hveragerði hefur upp á að bjóða alla helstu þjónustu, fjölbreytta verslun ásamt rómuðum veitingastöðum og mathöll. Þá má ekki gleyma gróðurhúsunum á staðnum, sundlaug Hveragerðis ásamt fjölbreyttu og góðu íþrótta- og tómstundarstarfi. Einungis um hálftíma keyrsla til Reykjavíkur.
Nánari upplýsingar veitir Hreiðar Levý Guðmundsson löggiltur fasteignasali, í síma 661- 6021, tölvupóstur hreidar@betristofan.is.
Gjöld sem kaupandi þarf að standa straum af ef að kaupum verður:
1. Stimpilgjald af fasteignamati fasteignar er 0.8%, en 0,4% fyrir fyrstu kaup og 1,6% fyrir lögaðila.
2. Þinglýsingargjald: kaupsamningi, skuldabréfi, veðleyfi, afsali o.s.frv. er kr. 3.800 af hverju skjali.
3. Lántökukostnaður samkvæmt verðskrá viðkomandi lánastofnunar.
4. Umsýslugjald til fasteignasölu skv. gjaldskrá.
Ár
Fasteignamat
Kaupverð
Stærð
Fermetraverð
28. mar. 2023
59.100.000 kr.
62.900.000 kr.
114.1 m²
551.271 kr.
21. ágú. 2015
19.350.000 kr.
24.000.000 kr.
114.1 m²
210.342 kr.
Byggt á upplýsingum úr Þjóðskrá Íslands frá 2006-2026