Löggiltir fasteignasalar innan Félags fasteignasala:
Hannes Steindórsson
Bogi Molby Pétursson
Guðrún Antonsdóttir
Heimir Hallgrímsson
Hrafnkell P. H. Pálmason
Viðar Marinósson
Elías Haraldsson
Kristján Þórir Hauksson
Albert Bjarni Úlfarsson
Ragnar Þorsteinsson
Þórey Ólafsdóttir
Andri Freyr Halldórsson
Upplýsingar
Verðsaga
Byggt 1987
314,7 m²
8 herb.
3 baðherb.
5 svefnh.
Þvottahús
Útsýni
Sérinngangur
Lýsing
LIND fasteignasala og Helga Pálsdóttir löggiltur fasteignasali kynnir vandaða eign á útsýnisstað í suðurhlíðum Kópavogs með 2.herbergja íbúð á sér fastanr á jarðhæð með sérinngangi sem er í útleigu.
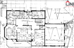
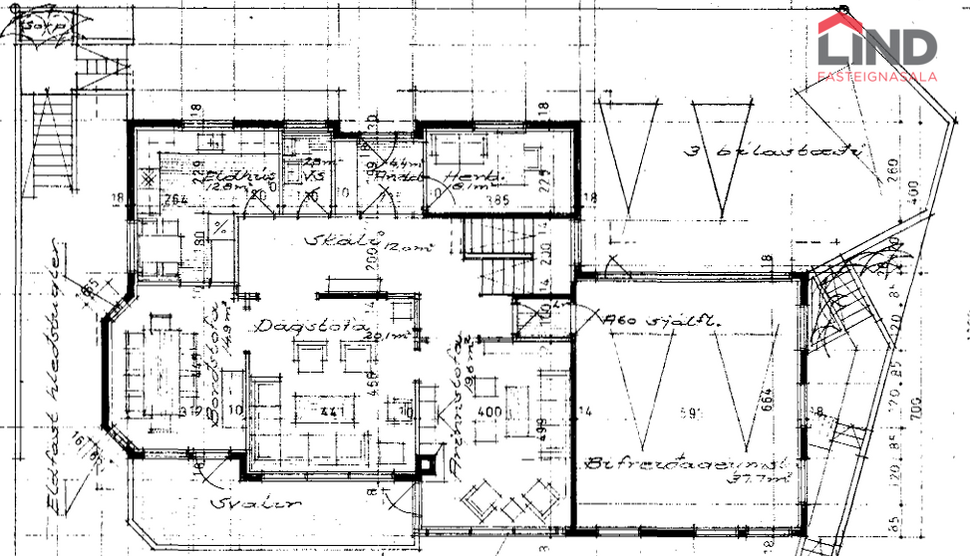
Húsið sem var byggt árið 1987 er skráð 252,6 m2 skv. Fasteignaskrá Þjóðskrár en um er að ræða fjölskylduvæna eign með tvöföldum bílskúr. Íbúðarhluti er 209,4 m2 og tvöfaldan vandaðan bílskúr er 43,4 m2. Íbúðin á neðri hæð sem er með sérinngangi er 62,1 m2. Samtals er eignin 314,7 m2. Snjóbræðsla er á bílaplani framan við bílskúrshurðar, undir hellulögðum stéttum framan við húsið, í tröppum vestan meginvið húsið sem liggja niður í garðinn og að íbúðinni niðri.
Nánari lýsing; Húsið er staðsteypt, á tveimur hæðum – aðkoma að efri hæð með miklu útsýni.
Forstofan er flisalögð með gólfhita (endurgert 2016).
Stofur eru opnar, rúmgóðar og bjartar með stórum gluggum og stórum sólríkum svölum móti suðri. Útsýni úr stofum yfir Kópavoginn, til Bláfjalla í austri og til suðurnesja í suðri, setustofa með arni liggur samhliða borðstofunni en frá henni er gengið út á svalirnar.
Eldhús með eikarinnréttingu með gott skápa- og borðplássi, þar er tengi fyrir uppþvottavél, tveir ofnar og span-helluborð, gluggar er á tvo vegu og borðkrókur. Innrétting/ skápur í hálfa hæð aðskilur eldhús/borðstofu og skapar opið flæði milli rýmanna.
Tvö svefnherbergi eru á hæðinni, stórt herbergi með góðum gluggum mótti suðri annarsvegar og herbergi inn af forstofu hinsvegar.
Baðherbergi var endurnýjað árið 2016 en þar er sturtuklefi, innrétting með skáp og handlaug og upphengt salerni, gluggi með opnalegu fagi, hiti í gólfi.
Gegnheilt eikarparket með fiskibeinamunstri er á stofum, holi og stærra herberginu, fljótandi parket er á minna herberginu, flísar á eldhúsi.
Innangegnt er um gang með eldvarnarhurð inní tvöfaldan bílskúr með góðum gluggum með fram austur og suðurhlið, bekk með vaski og góðri vinnuaðstöðu og heitu og köldu vatni. Epoxi á gólfi.
Neðri hæð
Rúmgott sjónvarpsstofa/hol sem er notalegt fjölskyldurými . Rýmið býður upp á að þar sé fjórða svefnherbergið. Gluggar snúa í suður og hurð út á pall/verönd og afgirtan suðurgarð sem er mjög gróinn og fallegur og bíður upp á mikla möguleika.
Hjónasvíta er sér rými með gangi með miklu skápaplássi, herbergið er stórt með fataherbergi með lokuðum skápum, góðum gluggum sem snúa út í garðinn.
Baðherbergi er rúmgott flísalagt með sturtuklefa, baðkari, innréttingu með tveimur handlaugum og góðum skápum, glugga með opnanlegu fagi og hurð út á pallinn en þar er tilvalið að vera með heitan pott.
Þvottahús og geymsla eru á neðri hæðinni, þar er innrétting fyrir vélar í vinnuhæð, bekkur með vaski og góðri vinnuaðstöðu.
Geymslan er með miklu hilluplássi og nú tengi fyrir frystiskáp.
Íbúðin á vestur hlið með sér fastanr
Forstofa með flísum gólfi og þaðan er gengið inn í hol/stofu. Hiti er í stéttinni úti, fyrir framan forstofuna.
Stofan er opin og björt, með stórum gluggum til suðurs og útsýni inn í garðinn, en einnig er gluggi til vesturs. Stofan rennur saman við miðrými/hol sem er með stórum skápum, en úr holinu er gengið inn í önnur rými íbúðarinnar.
Svefnherbergið er rúmgot herbergi með fataskápum og glugga til suðurs inn í garðinn.
Baðherbergið var endurnýjað 2018. Það er flísalagt, með innréttingu, sturtuklefa, upphengdu salerni og tengi fyrir þvottavél.
Eldhús með glugga á endavegg til vesturs, eikarinnréttingu og eldavél með innbyggðum bakaraofni. Há borðplata sem hægt er að sitja við.
Stofa, svefnherbergi og eldhús eru með samfljótandi harðparketi.
Lítil útigeymsla fyrir hjól eða annað smálegt er við tröppur að inngangi íbúðarinnar.
Garðurinn er gróinn og afgirtur bæði austur/vestur hlið og því afar skjólsæll. Verönd meðfram húsinu til suðurs er hellulögð/ timbur en garðurinn er gróinn og fallegur. Stór útigeymsla sem tilheyrir efri íbúðinni er í garðinum en hún rúmar vel garðhúsgögn og hjól yfir veturinn. Húsið hefur alla tíð fengið gott viðhald, verið málað reglulega og virðist í góðu ástandi
Viðhald/endurnýjun
* Gler í stofu (efri hæð) var endurnýjað 2012 með einangrunargleri
* Skipt hefur verið um gler í flestum opnanlegum fögum á suðurhlið
* Skipt var um gler í gluggum hjónaherbergis og svefnherbergis mót suðri á efri hæð.
* Baðherbergi og forstofa endurnýjað 2016 (gólfhiti)
* Flísar í eldhúsi 2010
* Þak var pússað upp og málað 2017
* 2020 var parket á allri efri hæðinni pússað, litað og lakkað
*· 2021 var borðið á alla skjólveggi á lóðarmörkum og geymsluskúr í garði með lituðum Kjörvara.
* 2023 var skipt um flest blöndunartæki á baðherbergjum og eldhúsi (í báðum íbúðum).
* Húsið var málað allt að utan 2025, þ.e. steinveggir með Steinvara 2000, allir gluggakarmar , hurðar, og þakkantur með glærum lituðum Kjörvara, ( austurgafl er eftir).
* 2025 var borðið á alla skjólveggi á lóðarmörkum og geymsluskúr í garði með lituðum Kjörvara.
* 2025 voru tröppur við vesturhlið hússins voru lagaðar með múr og fílteraðar . Að því loknu borið á sílan til að vatnsverja og loka yfirborði.
Húsið stendur innst í botnlanga, við opið svæði, með gróinn Kópavogsdalinn, grænt svæði og fallegar gönguleiðir í næsta nágrenni en ekkert hús stendur fyrir innan það við götuna. Allar upplýsingar um eignina veitir Helga Pálsdóttir fasteignasali í síma 822 2123 eða helga@fastlind.is
Húsið sem var byggt árið 1987 er skráð 252,6 m2 skv. Fasteignaskrá Þjóðskrár en um er að ræða fjölskylduvæna eign með tvöföldum bílskúr. Íbúðarhluti er 209,4 m2 og tvöfaldan vandaðan bílskúr er 43,4 m2. Íbúðin á neðri hæð sem er með sérinngangi er 62,1 m2. Samtals er eignin 314,7 m2. Snjóbræðsla er á bílaplani framan við bílskúrshurðar, undir hellulögðum stéttum framan við húsið, í tröppum vestan meginvið húsið sem liggja niður í garðinn og að íbúðinni niðri.
Nánari lýsing; Húsið er staðsteypt, á tveimur hæðum – aðkoma að efri hæð með miklu útsýni.
Forstofan er flisalögð með gólfhita (endurgert 2016).
Stofur eru opnar, rúmgóðar og bjartar með stórum gluggum og stórum sólríkum svölum móti suðri. Útsýni úr stofum yfir Kópavoginn, til Bláfjalla í austri og til suðurnesja í suðri, setustofa með arni liggur samhliða borðstofunni en frá henni er gengið út á svalirnar.
Eldhús með eikarinnréttingu með gott skápa- og borðplássi, þar er tengi fyrir uppþvottavél, tveir ofnar og span-helluborð, gluggar er á tvo vegu og borðkrókur. Innrétting/ skápur í hálfa hæð aðskilur eldhús/borðstofu og skapar opið flæði milli rýmanna.
Tvö svefnherbergi eru á hæðinni, stórt herbergi með góðum gluggum mótti suðri annarsvegar og herbergi inn af forstofu hinsvegar.
Baðherbergi var endurnýjað árið 2016 en þar er sturtuklefi, innrétting með skáp og handlaug og upphengt salerni, gluggi með opnalegu fagi, hiti í gólfi.
Gegnheilt eikarparket með fiskibeinamunstri er á stofum, holi og stærra herberginu, fljótandi parket er á minna herberginu, flísar á eldhúsi.
Innangegnt er um gang með eldvarnarhurð inní tvöfaldan bílskúr með góðum gluggum með fram austur og suðurhlið, bekk með vaski og góðri vinnuaðstöðu og heitu og köldu vatni. Epoxi á gólfi.
Neðri hæð
Rúmgott sjónvarpsstofa/hol sem er notalegt fjölskyldurými . Rýmið býður upp á að þar sé fjórða svefnherbergið. Gluggar snúa í suður og hurð út á pall/verönd og afgirtan suðurgarð sem er mjög gróinn og fallegur og bíður upp á mikla möguleika.
Hjónasvíta er sér rými með gangi með miklu skápaplássi, herbergið er stórt með fataherbergi með lokuðum skápum, góðum gluggum sem snúa út í garðinn.
Baðherbergi er rúmgott flísalagt með sturtuklefa, baðkari, innréttingu með tveimur handlaugum og góðum skápum, glugga með opnanlegu fagi og hurð út á pallinn en þar er tilvalið að vera með heitan pott.
Þvottahús og geymsla eru á neðri hæðinni, þar er innrétting fyrir vélar í vinnuhæð, bekkur með vaski og góðri vinnuaðstöðu.
Geymslan er með miklu hilluplássi og nú tengi fyrir frystiskáp.
Íbúðin á vestur hlið með sér fastanr
Forstofa með flísum gólfi og þaðan er gengið inn í hol/stofu. Hiti er í stéttinni úti, fyrir framan forstofuna.
Stofan er opin og björt, með stórum gluggum til suðurs og útsýni inn í garðinn, en einnig er gluggi til vesturs. Stofan rennur saman við miðrými/hol sem er með stórum skápum, en úr holinu er gengið inn í önnur rými íbúðarinnar.
Svefnherbergið er rúmgot herbergi með fataskápum og glugga til suðurs inn í garðinn.
Baðherbergið var endurnýjað 2018. Það er flísalagt, með innréttingu, sturtuklefa, upphengdu salerni og tengi fyrir þvottavél.
Eldhús með glugga á endavegg til vesturs, eikarinnréttingu og eldavél með innbyggðum bakaraofni. Há borðplata sem hægt er að sitja við.
Stofa, svefnherbergi og eldhús eru með samfljótandi harðparketi.
Lítil útigeymsla fyrir hjól eða annað smálegt er við tröppur að inngangi íbúðarinnar.
Garðurinn er gróinn og afgirtur bæði austur/vestur hlið og því afar skjólsæll. Verönd meðfram húsinu til suðurs er hellulögð/ timbur en garðurinn er gróinn og fallegur. Stór útigeymsla sem tilheyrir efri íbúðinni er í garðinum en hún rúmar vel garðhúsgögn og hjól yfir veturinn. Húsið hefur alla tíð fengið gott viðhald, verið málað reglulega og virðist í góðu ástandi
Viðhald/endurnýjun
* Gler í stofu (efri hæð) var endurnýjað 2012 með einangrunargleri
* Skipt hefur verið um gler í flestum opnanlegum fögum á suðurhlið
* Skipt var um gler í gluggum hjónaherbergis og svefnherbergis mót suðri á efri hæð.
* Baðherbergi og forstofa endurnýjað 2016 (gólfhiti)
* Flísar í eldhúsi 2010
* Þak var pússað upp og málað 2017
* 2020 var parket á allri efri hæðinni pússað, litað og lakkað
*· 2021 var borðið á alla skjólveggi á lóðarmörkum og geymsluskúr í garði með lituðum Kjörvara.
* 2023 var skipt um flest blöndunartæki á baðherbergjum og eldhúsi (í báðum íbúðum).
* Húsið var málað allt að utan 2025, þ.e. steinveggir með Steinvara 2000, allir gluggakarmar , hurðar, og þakkantur með glærum lituðum Kjörvara, ( austurgafl er eftir).
* 2025 var borðið á alla skjólveggi á lóðarmörkum og geymsluskúr í garði með lituðum Kjörvara.
* 2025 voru tröppur við vesturhlið hússins voru lagaðar með múr og fílteraðar . Að því loknu borið á sílan til að vatnsverja og loka yfirborði.
Húsið stendur innst í botnlanga, við opið svæði, með gróinn Kópavogsdalinn, grænt svæði og fallegar gönguleiðir í næsta nágrenni en ekkert hús stendur fyrir innan það við götuna. Allar upplýsingar um eignina veitir Helga Pálsdóttir fasteignasali í síma 822 2123 eða helga@fastlind.is
Ár
Fasteignamat
Kaupverð
Stærð
Fermetraverð
7. apr. 2020
80.000.000 kr.
89.900.000 kr.
252.6 m²
355.899 kr.
20. okt. 2010
40.550.000 kr.
37.150.000 kr.
252.6 m²
147.070 kr.
Byggt á upplýsingum úr Þjóðskrá Íslands frá 2006-2026