Upplýsingar
Byggt 2025
82,6 m²
3 herb.
1 baðherb.
2 svefnh.
Útsýni
Bílastæði
Lyfta
Laus strax
Lýsing
BÓKIÐ SKOÐUN - Einar s. 888-7979 Helgi s. 893-2233 Glódís s. 659-0510 Hlynur s. 698-2603
Hraunhamar kynnir: Glæsilega þriggja herbergja íbúð á 3. hæð með svölum í nýju vönduðu lyftuhúsi á frábærum stað í Hamraneshverfinu í Hafnarfirði, þar sem stutt er í alla helstu þjónustu. Íbúðirnar afhendast fullbúnar með gólfefnum, innbyggðum ísskáp og uppþvottavél. Afhending við kaupsamning.
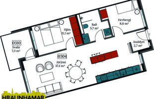
Íbúð 304 er þriggja herbergja, skráð 82,6 fermetrar með geymslu. Auk þess fylgir stæði með í lokaðri bílageymslu.
Sjá nánar um íbúðina hér. Sjá söluvef hér.
Húsið er klætt að utan með álklæðningu, og ál/timbur gluggar.
Nánari lýsing skv. teikningu:
Forstofa.
Gott opið rými, þar sem eldhús og stofa eru samliggjandi.
Eldhús með smekklegri innréttingu frá HTH og vönduðum eldunartækjum.
Björt stofa og borðstofa og þaðan er útgengt á svalir sem snúa til suð-vesturs.
Rúmgott hjónaherbergi með fataskápum.
Svefnherbergi með fataskáp.
Flísalagt baðherbergi með innréttingu, upphengdu salerni og sturtu, þar er þvottaaðstaða.
Sér geymsla í sameign.
Sér stæði í bílageymslu.
Áshamar 22 verður byggt eftir ströngum eftirlitsstaðli Svansins.
Sjá frekari upplýsingar um Svansvottun nýbygginga með því að smella hér.
Áshamar 22 er hluti af klasabyggingu þar sem skemmtilegur garður mun tengja húsin saman.
Eykt ehf er byggingaraðili hússins sem er reynslumikið og traust byggingarfyrirtæki með áratuga reynslu.
Kaupandi borgar skipulagsgjald þegar þess verður krafist sem er 0,3 % af væntu brunabótamati eignarinnar.
Bókið skoðun hjá fasteignasölum Hraunhamars:
Einar Örn Ágústsson, löggiltur fasteignasali, s. 888-7979, einar@hraunhamar.is
Hlynur Halldórsson, löggiltur fasteignasali, s. 698-2603, hlynur@hraunhamar.is
Helgi Jón Harðarson, sölustjóri, s. 893-2233,helgi@hraunhamar.is
Glódís Helgadóttir, löggiltur fasteignasali, s. 659-0510, glodis@hraunhamar.is
Skoðunarskylda:
Í lögum um fasteignakaup nr. 40/2002 er kveðið á um ríka skoðunarskyldu kaupenda á fasteignum. Hraunhamar fasteignasala vill benda væntanlegum kaupendum á að kynna sér vel ástand fasteigna fyrir kauptilboðsgerð og ef þurfa þykir að leita til sérfræðinga fyrir nánari ástandsskoðun.
Gjöld sem kaupandi þarf að standa straum af vegna kaupanna:
1. Stimpilgjald af kaupsamningi, fyrstu kaup (0,4%), almenn kaup (0,8%), lögaðilar (1,6%) af heildarfasteignamati.
2. Þinglýsingargjald af kaupsamningi, veðskuldabréfi, mögulegu veðleyfi o.fl. – kr. 3,800 kr. af hverju skjali.
3. Lántökugjald lánastofnunar er skv. verðskrá viðkomandi lánastofnunar.
4. Umsýslugjald til fasteignasölu skv. þjónustusamningi
Hraunhamar er elsta fasteignasala Hafnarfjarðar, stofnuð 1983.
Hraunhamar, í farabroddi í rúm 40 ár ! – Hraunhamar.is
Hraunhamar kynnir: Glæsilega þriggja herbergja íbúð á 3. hæð með svölum í nýju vönduðu lyftuhúsi á frábærum stað í Hamraneshverfinu í Hafnarfirði, þar sem stutt er í alla helstu þjónustu. Íbúðirnar afhendast fullbúnar með gólfefnum, innbyggðum ísskáp og uppþvottavél. Afhending við kaupsamning.
Íbúð 304 er þriggja herbergja, skráð 82,6 fermetrar með geymslu. Auk þess fylgir stæði með í lokaðri bílageymslu.
Sjá nánar um íbúðina hér. Sjá söluvef hér.
Húsið er klætt að utan með álklæðningu, og ál/timbur gluggar.
Nánari lýsing skv. teikningu:
Forstofa.
Gott opið rými, þar sem eldhús og stofa eru samliggjandi.
Eldhús með smekklegri innréttingu frá HTH og vönduðum eldunartækjum.
Björt stofa og borðstofa og þaðan er útgengt á svalir sem snúa til suð-vesturs.
Rúmgott hjónaherbergi með fataskápum.
Svefnherbergi með fataskáp.
Flísalagt baðherbergi með innréttingu, upphengdu salerni og sturtu, þar er þvottaaðstaða.
Sér geymsla í sameign.
Sér stæði í bílageymslu.
Áshamar 22 verður byggt eftir ströngum eftirlitsstaðli Svansins.
Sjá frekari upplýsingar um Svansvottun nýbygginga með því að smella hér.
Áshamar 22 er hluti af klasabyggingu þar sem skemmtilegur garður mun tengja húsin saman.
Eykt ehf er byggingaraðili hússins sem er reynslumikið og traust byggingarfyrirtæki með áratuga reynslu.
Kaupandi borgar skipulagsgjald þegar þess verður krafist sem er 0,3 % af væntu brunabótamati eignarinnar.
Bókið skoðun hjá fasteignasölum Hraunhamars:
Einar Örn Ágústsson, löggiltur fasteignasali, s. 888-7979, einar@hraunhamar.is
Hlynur Halldórsson, löggiltur fasteignasali, s. 698-2603, hlynur@hraunhamar.is
Helgi Jón Harðarson, sölustjóri, s. 893-2233,helgi@hraunhamar.is
Glódís Helgadóttir, löggiltur fasteignasali, s. 659-0510, glodis@hraunhamar.is
Skoðunarskylda:
Í lögum um fasteignakaup nr. 40/2002 er kveðið á um ríka skoðunarskyldu kaupenda á fasteignum. Hraunhamar fasteignasala vill benda væntanlegum kaupendum á að kynna sér vel ástand fasteigna fyrir kauptilboðsgerð og ef þurfa þykir að leita til sérfræðinga fyrir nánari ástandsskoðun.
Gjöld sem kaupandi þarf að standa straum af vegna kaupanna:
1. Stimpilgjald af kaupsamningi, fyrstu kaup (0,4%), almenn kaup (0,8%), lögaðilar (1,6%) af heildarfasteignamati.
2. Þinglýsingargjald af kaupsamningi, veðskuldabréfi, mögulegu veðleyfi o.fl. – kr. 3,800 kr. af hverju skjali.
3. Lántökugjald lánastofnunar er skv. verðskrá viðkomandi lánastofnunar.
4. Umsýslugjald til fasteignasölu skv. þjónustusamningi
Hraunhamar er elsta fasteignasala Hafnarfjarðar, stofnuð 1983.
Hraunhamar, í farabroddi í rúm 40 ár ! – Hraunhamar.is