Löggiltir fasteignasalar innan Félags fasteignasala:
Páll Þórólfsson
Guðbjörg Guðmundsdóttir
Jason Kristinn Ólafsson
Sverrir Pálmason
Vista
fjölbýlishús

Ásakór 13

203 Kópavogur

94.900.000 kr.

662.709 þ.kr./m2
Fasteignanúmer

F2286961

Fasteignamat

83.350.000 kr.

Brunabótamat

71.100.000 kr.

Áhvílandi

0 kr.

Arion banki – Reikna lán
Upplýsingar
Verðsaga
svg
Byggt 2007
svg
143,2 m²
svg
4 herb.
svg
1 baðherb.
svg
3 svefnh.
svg
Þvottahús
svg
Sameiginl. inngangur
svg
Lyfta

Lýsing

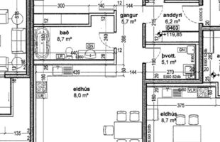
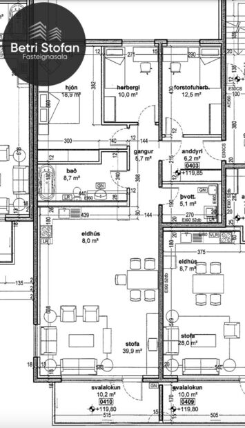
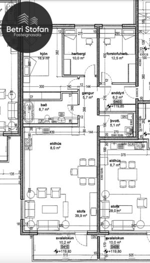
Betri Stofan og Jason Kristinn  jason@betristofan.is í síma 775 1515 kynnir: Rúmgóð 143 fm, 4ra herbergja íbúð á fjórðu hæð (nr. 403) í lyftuhúsi við Ásakór 13. Eignin skiptist í þrjú svefnherbergi, baðherbergi, þvottahús, opna stofu og eldhús, sjónvarpshorn og svalir til suðurs. Þetta er rúmgóð eign með fallegu útsýni.
Nýlega hefur húsið verið endurbætt að utan. 

Nánari lýsing :
Komið er inn í forstofu með góðum fataskáp.
Stofan er mjög rúmgóð og björt með parketi á gólfi, útgengt er út á stórar svalir með fallegu útsýni.
Eldhúsið sem er opið inn í stofurýmið er með góðri innréttingu.
Svefnherbergin þrjú eru öll rúmgóð með parketi á gólfi og fataskápum.
Baðherbergið er flísalagt, þar er góð innrétting og baðkar með sturtuaðstöðu.
Þvottahús er flísalagt innan íbúðar með innréttingu og skolvask.
Eigninni fylgir rúmgóð sérgeymsla í sameign sem og sameiginleg hjóla og vagnageymsla.

Skólar í göngufæri, grunn- og leikskólar.
Þetta er sérstaklega rúmgóð eign með fallegu útsýni.

Allar nánari upplýsingar: Jason Kristinn Ólafsson, sími 775 1515 jason@betristofan.is löggiltur fasteignasali


Gjöld sem kaupandi þarf að standa straum af ef að kaupum verður:
1. Stimpilgjald af fasteignamati fasteignar er 0.8%, en 0,4% fyrir fyrstu kaup og 1,6% fyrir lögaðila.  
2. Þinglýsingargjald: kaupsamningi, skuldabréfi, veðleyfi, afsali o.s.frv. er kr. 3.800 af hverju skjali.
3. Lántökukostnaður samkvæmt verðskrá viðkomandi lánastofnunar.
4. Umsýslugjald til fasteignasölu skv. gjaldskrá.

img
Jason Kristinn Ólafsson
Lögg.fasteignasali innan félags fasteignasala
Betri Stofan Fasteignasala
Borgartúni 30, 105 Reykjavík
Betri Stofan Fasteignasala

Betri Stofan Fasteignasala

Borgartúni 30, 105 Reykjavík
phone
img

Jason Kristinn Ólafsson

Borgartúni 30, 105 Reykjavík
Ár
Fasteignamat
Kaupverð
Stærð
Fermetraverð
18. nóv. 2011
24.400.000 kr.
26.000.000 kr.
143.2 m²
181.564 kr.
Byggt á upplýsingum úr Þjóðskrá Íslands frá 2006-2026
Betri Stofan Fasteignasala

Betri Stofan Fasteignasala

Borgartúni 30, 105 Reykjavík
phone

Jason Kristinn Ólafsson

Borgartúni 30, 105 Reykjavík