Löggiltir fasteignasalar innan Félags fasteignasala:
Hannes Steindórsson
Bogi Molby Pétursson
Guðrún Antonsdóttir
Heimir Hallgrímsson
Hrafnkell P. H. Pálmason
Viðar Marinósson
Elías Haraldsson
Kristján Þórir Hauksson
Albert Bjarni Úlfarsson
Ragnar Þorsteinsson
Þórey Ólafsdóttir
Andri Freyr Halldórsson
Upplýsingar
Verðsaga
Byggt 2008
127,2 m²
4 herb.
1 baðherb.
3 svefnh.
Þvottahús
Útsýni
Sérinngangur
Opið hús: 17. janúar 2026
kl. 14:00
til 14:30
Opið hús: Gulaþing 8, 203 Kópavogur, Íbúð merkt: 03 01 02. Eignin verður sýnd laugardaginn 17. janúar 2026 milli kl. 14:00 og kl. 14:30.
Lýsing
LIND fasteignasala og Helga Pálsdóttir löggiltur fasteignasali kynnir 4ra. herb. sérhæð á jarðhæð við Gulaþing 8 með sér inngangi, tvennum veröndum og fallegu útsýni. Mjög barnvænt hverfi þar sem örstutt er í leikskóla, skóla og verslun. Íþróttamiðstöðin Kórinn er stutt frá ásamt fallegum útivistarperlum.
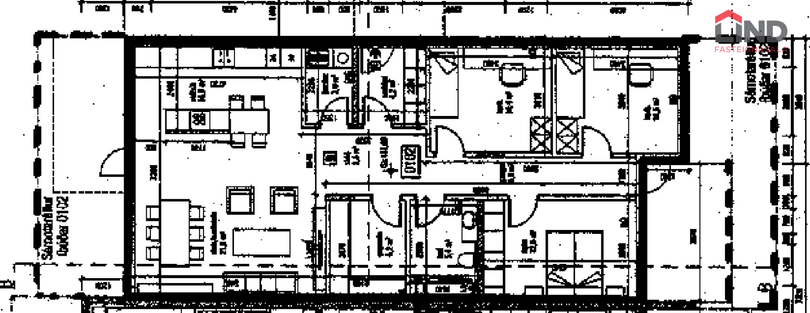
Eignin skiptist í forstofu, gang, stofu, eldhús, þrjú svefnherbergi, þvottahús og geymslu. Gólfhiti er í íbúðinni.
Tvennar verandir í suður og norður . Fallegt útsýni er úr stofu, eldhúsi yfir Elliðavatn, til Esjunnar og víðar.
Nánari lýsing:
Forstofa með með flísum á gólfi og góðum fataskápum sem ná uppí loft.
Stofa/borðstofa eru samliggjandi, bjartar og opnar með parketi á gólfi og útgengt er út verönd með skjólveggjum og útigeymslu. Frábært útsýni, Opið er inn í eldhús frá stofum.
Eldhúsið er vel útbúið með innréttingu sem nær uppí loft. Flísar eru á milli efri og neðri skápa, ofninn er í vinnuhæð. Gert er ráð fyrir tvöföldum ísskáp og uppþvottavél í innréttingu, eyja er í eldhúsinu með helluborði og viftuháf yfir, parket á gólfi.
Svefnherbergi: herbergin eru 3, öll rúmgóð með parketi á gólfi og fataskápum sem ná uppí loft.
Útgengt er út á rúmgóða verönd frá svefnherbergisgangi. Óbyggt svæði er við bakhlið hússins og falleg náttúra.
Baðherbergi með flísalögðu gólfi og veggjum , innrétting með efri og neðri skápum, upphengt salerni, handklæðaofn og baðkar með sturtuaðstöðu.
Þvottaherbergi er innaf eldhúsi með flísum á gólfi, innréttingu, vaski og glugga.
Geymsla er innan íbúðar með parketi á gólfi og hillum.
Sameiginleg hjóla og vagnageymsla er á jarðhæð.
Húsið var hreinsað, sprungufyllt og sílanborið 2025.
Niðurlag: þetta er virkilega vel skipulögð og góð fjölskylduíbúð á frábærum útsýnisstað í Kópavoginum þar sem stutt er í skóla, leikskóla, fallegar útivistarperlur og einnig er stutt í íþróttamiðstöðina Kórinn. Búið er að setja upp tengi fyrir hleðslustöð á sameiginlegu bílaplani húsanna. Lóð er frágengin og aðkoma góð með fjölda bílastæða.
Allar upplýsingar um eignina veitir Helga Pálsdóttir fasteignasali í síma 822 2123 eða helga@fastlind.is
Eignin skiptist í forstofu, gang, stofu, eldhús, þrjú svefnherbergi, þvottahús og geymslu. Gólfhiti er í íbúðinni.
Tvennar verandir í suður og norður . Fallegt útsýni er úr stofu, eldhúsi yfir Elliðavatn, til Esjunnar og víðar.
Nánari lýsing:
Forstofa með með flísum á gólfi og góðum fataskápum sem ná uppí loft.
Stofa/borðstofa eru samliggjandi, bjartar og opnar með parketi á gólfi og útgengt er út verönd með skjólveggjum og útigeymslu. Frábært útsýni, Opið er inn í eldhús frá stofum.
Eldhúsið er vel útbúið með innréttingu sem nær uppí loft. Flísar eru á milli efri og neðri skápa, ofninn er í vinnuhæð. Gert er ráð fyrir tvöföldum ísskáp og uppþvottavél í innréttingu, eyja er í eldhúsinu með helluborði og viftuháf yfir, parket á gólfi.
Svefnherbergi: herbergin eru 3, öll rúmgóð með parketi á gólfi og fataskápum sem ná uppí loft.
Útgengt er út á rúmgóða verönd frá svefnherbergisgangi. Óbyggt svæði er við bakhlið hússins og falleg náttúra.
Baðherbergi með flísalögðu gólfi og veggjum , innrétting með efri og neðri skápum, upphengt salerni, handklæðaofn og baðkar með sturtuaðstöðu.
Þvottaherbergi er innaf eldhúsi með flísum á gólfi, innréttingu, vaski og glugga.
Geymsla er innan íbúðar með parketi á gólfi og hillum.
Sameiginleg hjóla og vagnageymsla er á jarðhæð.
Húsið var hreinsað, sprungufyllt og sílanborið 2025.
Niðurlag: þetta er virkilega vel skipulögð og góð fjölskylduíbúð á frábærum útsýnisstað í Kópavoginum þar sem stutt er í skóla, leikskóla, fallegar útivistarperlur og einnig er stutt í íþróttamiðstöðina Kórinn. Búið er að setja upp tengi fyrir hleðslustöð á sameiginlegu bílaplani húsanna. Lóð er frágengin og aðkoma góð með fjölda bílastæða.
Allar upplýsingar um eignina veitir Helga Pálsdóttir fasteignasali í síma 822 2123 eða helga@fastlind.is
Ár
Fasteignamat
Kaupverð
Stærð
Fermetraverð
24. feb. 2022
59.500.000 kr.
79.900.000 kr.
127.2 m²
628.145 kr.
Byggt á upplýsingum úr Þjóðskrá Íslands frá 2006-2026