Upplýsingar
Verðsaga
Byggt 2017
111,8 m²
5 herb.
1 baðherb.
4 svefnh.
Útsýni
Sameiginl. inngangur
Lyfta
Lýsing
Fasteignasalan Hvammur – 466-1600
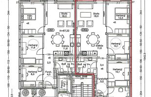
Kjarnagata 37 íbúð 302 – Vel skipulögð og falleg 5 herbergja íbúð á 3. hæð, vestur endi í fjölbýli með lyftu í Naustahverfi – stærð 111,8 m²
Eignin skiptist í forstofu, gang, eldhús, stofu, baðherbergi með þvottaaðstöðu, fjögur svefnherbergi og sérgeymslu á jarðhæðinni.
Í forstofu eru flísar á gólfi. Gangurinn er með harð parketi á gólfi og hvítum fataskáp.
Eldhús, vönduð sprautulökkuð innrétting með flísum á milli skápa og ljósri bekkplötu. Þar er innfelldur ísskápur og uppþvottavél sem fylgja með við sölu eignar ásamt helluborði og ofni frá AEG.
Stofa og eldhús eru í opnu alrými þar sem harð parket er á gólfum. Úr stofunni er gengið út á steyptar suður svalir, skráðar 10,3 m² að stærð.
Baðherbergið er með dökkum flísum á gólfi og ljósum flísum á veggjum. Hvít sprautulökkuð innrétting og speglaskápur auk stæðis fyrir þvottavél og þurrkara. Á baðherberginu er sturta og vegghengt salerni.
Svefnherbergin eru fjögur talsins, öll með harð parketi á gólfi og hvítum sprautulökkuðum fataskápum. Stærð herbergja er skv. teikningum 9,9 , 10,1 , 10,1 og 13,5 m².
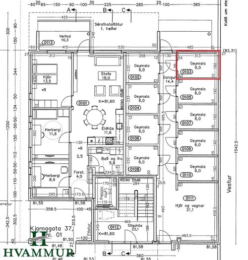
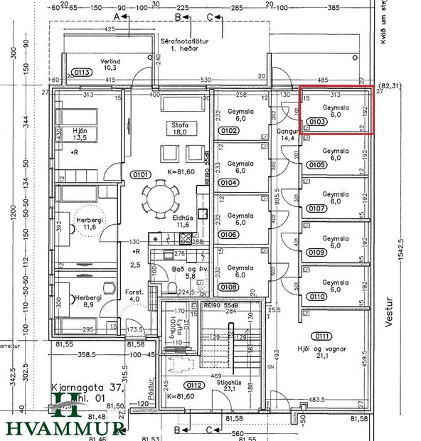
Sérgeymsla er á jarðhæð, skráð 6,0 m².
Annað:
- Sumarið 2025 fóru fram múrviðgerðir á húsinu, auk þess sem það var málað að utan.
- Harð parket er á öllum gólfum fyrir utan forstofu og baðherbergi, þar eru dökkar flísar.
- Hiti er í öllum gólfum.
- Sameiginleg hjóla- og vagnageymsla á jarðhæðinni.
- Snyrtileg sameign.
- Stutt í leik- og grunnskóla.
- Fyrirhugað fasteignamat eignar fyrir árið 2026 er kr. 72.050.000.-
Um skoðunar- og aðgæsluskyldu:
Í lögum um fasteignakaup nr. 40/2002 er kveðið á um ríka skoðunarskyldu kaupenda á fasteignum. Fasteignasalan Hvammur skorar því á væntanlega kaupendur að kynna sér vel ástand fasteigna fyrir kauptilboðsgerð og leita til þar til bærra sérfræðinga um nánari skoðun ef með þarf.
Forsendur söluyfirlits:
Söluyfirlit er samið af fasteignasala í samræmi við ákvæði laga nr. 70/2015. Þær upplýsingar sem fram koma í söluyfirliti þessu eru sóttar í opinberar skrár, til seljanda sjálfs og eftir atvikum til húsfélags. Seljandi veitir upplýsingar um eign í samræmi við upplýsingaskyldu laga um fasteignakaup nr. 40/2002. Fasteignasali sannreynir að þær upplýsingar séu réttar með sjónskoðun á eigninni. Fasteignasali getur ekki fullyrt um ástand og eiginleika þeirra hluta fasteigna sem ekki eru aðgengilegir og sjást ekki berum augum, t.d. lagnir, dren, skólp og þak.
Kjarnagata 37 íbúð 302 – Vel skipulögð og falleg 5 herbergja íbúð á 3. hæð, vestur endi í fjölbýli með lyftu í Naustahverfi – stærð 111,8 m²
Eignin skiptist í forstofu, gang, eldhús, stofu, baðherbergi með þvottaaðstöðu, fjögur svefnherbergi og sérgeymslu á jarðhæðinni.
Í forstofu eru flísar á gólfi. Gangurinn er með harð parketi á gólfi og hvítum fataskáp.
Eldhús, vönduð sprautulökkuð innrétting með flísum á milli skápa og ljósri bekkplötu. Þar er innfelldur ísskápur og uppþvottavél sem fylgja með við sölu eignar ásamt helluborði og ofni frá AEG.
Stofa og eldhús eru í opnu alrými þar sem harð parket er á gólfum. Úr stofunni er gengið út á steyptar suður svalir, skráðar 10,3 m² að stærð.
Baðherbergið er með dökkum flísum á gólfi og ljósum flísum á veggjum. Hvít sprautulökkuð innrétting og speglaskápur auk stæðis fyrir þvottavél og þurrkara. Á baðherberginu er sturta og vegghengt salerni.
Svefnherbergin eru fjögur talsins, öll með harð parketi á gólfi og hvítum sprautulökkuðum fataskápum. Stærð herbergja er skv. teikningum 9,9 , 10,1 , 10,1 og 13,5 m².
Sérgeymsla er á jarðhæð, skráð 6,0 m².
Annað:
- Sumarið 2025 fóru fram múrviðgerðir á húsinu, auk þess sem það var málað að utan.
- Harð parket er á öllum gólfum fyrir utan forstofu og baðherbergi, þar eru dökkar flísar.
- Hiti er í öllum gólfum.
- Sameiginleg hjóla- og vagnageymsla á jarðhæðinni.
- Snyrtileg sameign.
- Stutt í leik- og grunnskóla.
- Fyrirhugað fasteignamat eignar fyrir árið 2026 er kr. 72.050.000.-
Um skoðunar- og aðgæsluskyldu:
Í lögum um fasteignakaup nr. 40/2002 er kveðið á um ríka skoðunarskyldu kaupenda á fasteignum. Fasteignasalan Hvammur skorar því á væntanlega kaupendur að kynna sér vel ástand fasteigna fyrir kauptilboðsgerð og leita til þar til bærra sérfræðinga um nánari skoðun ef með þarf.
Forsendur söluyfirlits:
Söluyfirlit er samið af fasteignasala í samræmi við ákvæði laga nr. 70/2015. Þær upplýsingar sem fram koma í söluyfirliti þessu eru sóttar í opinberar skrár, til seljanda sjálfs og eftir atvikum til húsfélags. Seljandi veitir upplýsingar um eign í samræmi við upplýsingaskyldu laga um fasteignakaup nr. 40/2002. Fasteignasali sannreynir að þær upplýsingar séu réttar með sjónskoðun á eigninni. Fasteignasali getur ekki fullyrt um ástand og eiginleika þeirra hluta fasteigna sem ekki eru aðgengilegir og sjást ekki berum augum, t.d. lagnir, dren, skólp og þak.
Ár
Fasteignamat
Kaupverð
Stærð
Fermetraverð
15. maí. 2024
61.100.000 kr.
68.000.000 kr.
10302 m²
6.601 kr.
5. mar. 2019
41.400.000 kr.
40.500.000 kr.
111.8 m²
362.254 kr.
15. mar. 2017
14.100.000 kr.
37.110.000 kr.
111.8 m²
331.932 kr.
8. jan. 2015
1.450.000 kr.
23.000.000 kr.
1830.4 m²
12.566 kr.
Byggt á upplýsingum úr Þjóðskrá Íslands frá 2006-2026